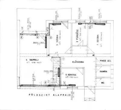
49.5
millió Ft
773 438 Ft/m²
Zalaegerszeg
Alapterület
61m2
Szobák
2
Erkély
6m2