Szeged

65 millió Ft
1 056 911 Ft/m²
Alapterület
60m2
Szobák
2
Erkély
3m2

Prémium hitelajánlat

Önrész
info
13 000 000 Ft
+
Hitelösszeg
info
52 000 000 Ft
=
Havi törlesztő
info
403 869 Ft/hó

Eladó lakás (panel)

Alapterület
60 m²
Erkély terület
3 m²
Tartozik hozzá kert
Nincs
Szobák száma
2
Fűtés
Gázkonvektor
Ingatlan állapota
Közepes állapotú
Építés éve
1970
Épület szintjei
5 szintes
Emelet
3. emelet
Pince
Nincs
Lift
Nincs
Napelem
Nincs
Szigetelés
Van
Parkolóhely
Önálló garázs
Kilátás
Kertre néző
Légkondicionált
Nem
Tájolás
Déli
Panelprogramos
Igen

Leírás

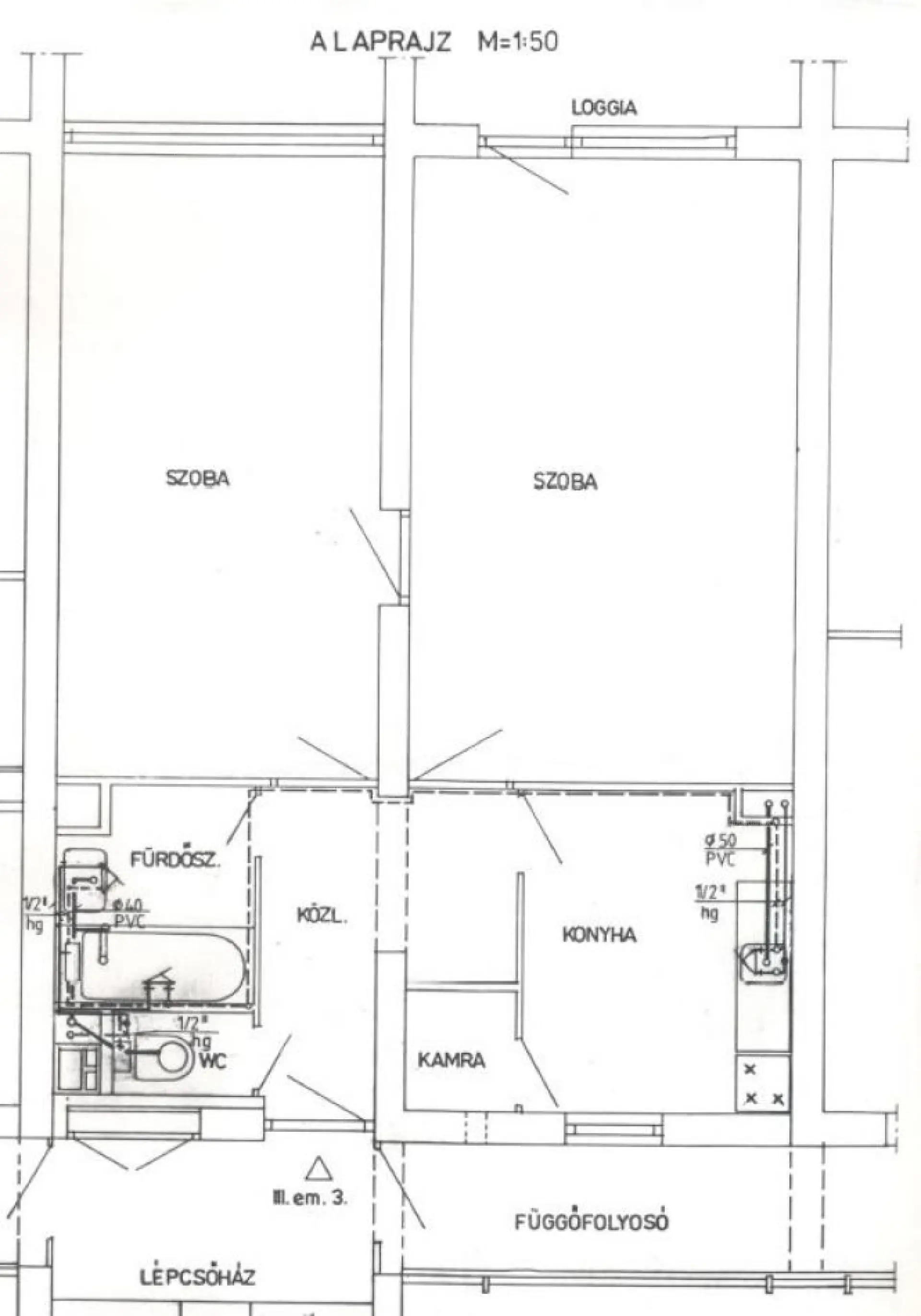
Szeged, Hóbiárt Basa utcában 2 szobás tégla lakás eladó.

Csendes, zöld környezetben lévő téglablokkos társasház 3. emeletén helyezkedik el a 60 m2-es lakás. A 2 szobán kívül előszoba-közlekedő, konyha, kamra, fürdőszoba és külön WC alkotja. Az egyik szobát jól kihasználható loggia egészíti ki.

A ház külső hőszigetelést kapott, mely jelentősen javította a fűtési költségeket, mely egyedi gáz konvektorokkal.

A lakáshoz tartozik egy saját tulajdonú garázs, amely igény esetén külön megvásárolható. A társasház körül saját, elkerített parkolók állnak rendelkezésre.

A közeli Brüsszeli körúton és József Attila sugárúton villamos, troli és buszjáratok megállóhelyei, de a Tisza-part, Széchenyi tér 10-15 perc alatt gyalogosan is elérhető.

Az ingatlan tehermentes. Költözés hamar lehetséges, de jelenleg megbízható bérlők lakják, akik szívesen maradnánk is, ha befektetési céllal vásárolják.

Ügyfeleimnek térítésmentes konzultáció lehetőséget biztosítok hitelszakértővel, CSOK és hitel ügyben.

Térkép

Szeged

Bűnügyi térkép

Náfrádi Antal Referens
Telefonszám +3630931
abcd