Szeged

Minősített Ingatlan
58.9 millió Ft
1 369 767 Ft/m²
Alapterület
43m2
Szobák
2

Prémium hitelajánlat

Önrész
info
11 780 000 Ft
+
Hitelösszeg
info
47 120 000 Ft
=
Havi törlesztő
info
365 968 Ft/hó

Eladó lakás (tégla építésű)

Alapterület
43 m²
Tartozik hozzá kert
Nincs
Szobák száma
2
Fűtés
Távfűtés egyedi méréssel
Energetikai tanúsítvány
C
Ingatlan állapota
Felújított
Építés éve
1970
Épület szintjei
5 szintes
Emelet
3. emelet
Pince
Nincs
Lift
Nincs
Napelem
Nincs
Szigetelés
Van
Parkolóhely
Utca, közterület
Kilátás
Utcai
Légkondicionált
Nem
Tájolás
Észak-nyugati
Panelprogramos
Igen

Leírás

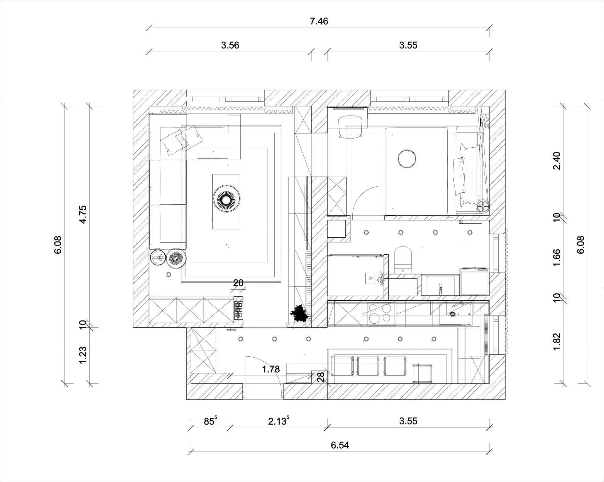
Újszegeden, a Liget mellett eladó ez az igényesen felújított, modern, fiatalos TÉGLA lakás.
A 43 m2 minden négyzetcentimétere egy ügyes tervező munkáját dícséri, teljes helykihasználással.
A konyhabútor rengeteg pakolófelületet rejt, a páraelszívó is kivezetésre került, igényes konyhagépek lettek beépítve (mosogatógép, beépített hűtőszekrény, gránit mosogató, kerámia főzőlap és elektromos sütő).
A tágas nappaliból egy kényelmes hálószoba nyílik, illetve a zuhanyzós fürdőszoba, melyen ablak is van. A fürdőben igényes szaniterek találhatóak.

A világítástechnika nagy hangsúlyt kapott szintén, az egész lakásban egészen a hangulatvilágítástól a komolyabb fényárig, és mindez természetesen igényes kapcsolókkal és lámpákkal, melyek energiatakarékos LED-del működnek.

Kérem tekintse meg a berendezési tervet is, melyet a fotók között talál.
A lakáshoz tartozik egy praktikus saját tároló is a földszinten.
A lakás tehermentes, azonnal költözhető.
További információkért és időpont egyeztetésért keressen bátran!

Térkép

Szeged

Bűnügyi térkép

Matusik Edina Referens
Telefonszám +3670295
abcd