Kecskemét

78 millió Ft
993 631 Ft/m²
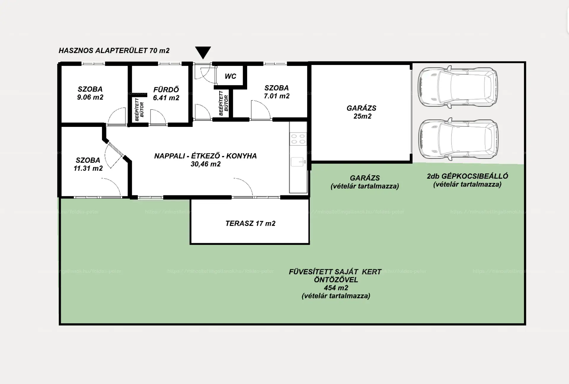
Alapterület
70m2
Telek
454 m²
Szobák
4

Prémium hitelajánlat

Önrész
info
15 600 000 Ft
+
Hitelösszeg
info
62 400 000 Ft
=
Havi törlesztő
info
487 054 Ft/hó

Eladó ház (ikerház)

Alapterület
70 m²
Telekterület
454 m²
Erkély terület
17 m²
Tartozik hozzá kert
Van
Szobák száma
4
Fűtés
Gázkazán
Energetikai tanúsítvány
B
Ingatlan állapota
Új építésű
Építés éve
2026
Épület szintjei
Földszintes
Pince
Nincs
Tetőtér
Nem beépíthető
Lift
Nincs
Napelem
Nincs
Szigetelés
Van
Parkolóhely
Önálló garázs
Kilátás
Kertre néző
Légkondicionált
Igen
Tájolás
Déli
Panelprogramos
Nem

Leírás

Eladó sorházi lakás Kecskemét, Alsószéktó – Újépítésű környezetben (I. ütem)
70 m²-es lakás saját kertkapcsolattal (454 m²).
Képek minta lakásból!
06703815333
Átadás: 2026 vége
Elrendezés: Nappali + 3 szoba, fürdő (mosdó, zuhany, sarokkád)
Műszaki: 30 cm téglafal + 15 cm szigetelés, 3 rétegű nyílászárók redőnnyel, Bosch kazán padlófűtéssel
Ár tartalmazza:
• 2 inverteres klíma
• Gépesített konyhabútor (hűtő, főzőlap, sütő, mosogató)
• Beépített szekrények (előszoba, konyha, fürdő)
• 17 m² emelt terasz
• Parkosított udvar automata öntözővel
• 2 parkoló + 25 m² dupla garázs
• Padlástároló
• Teljes LED világítás
Lakásbeszámítás értékegyeztetéssel
Adatlap megbízóból, pontosságért nem vállalunk felelősséget. Szolgáltatásaink vevőknek ingyenesek.
Hívjon most – ha el kell adnia jelenlegi otthonát, segítünk!

Térkép

Kecskemét

Bűnügyi térkép

Földes Péter Referens
Telefonszám +3670318
abcd