Kecskemét

125 millió Ft
1 041 667 Ft/m²
Alapterület
115m2
Telek
5755 m²
Szobák
4

Prémium hitelajánlat

Önrész
info
25 000 000 Ft
+
Hitelösszeg
info
100 000 000 Ft
=
Havi törlesztő
info
780 535 Ft/hó

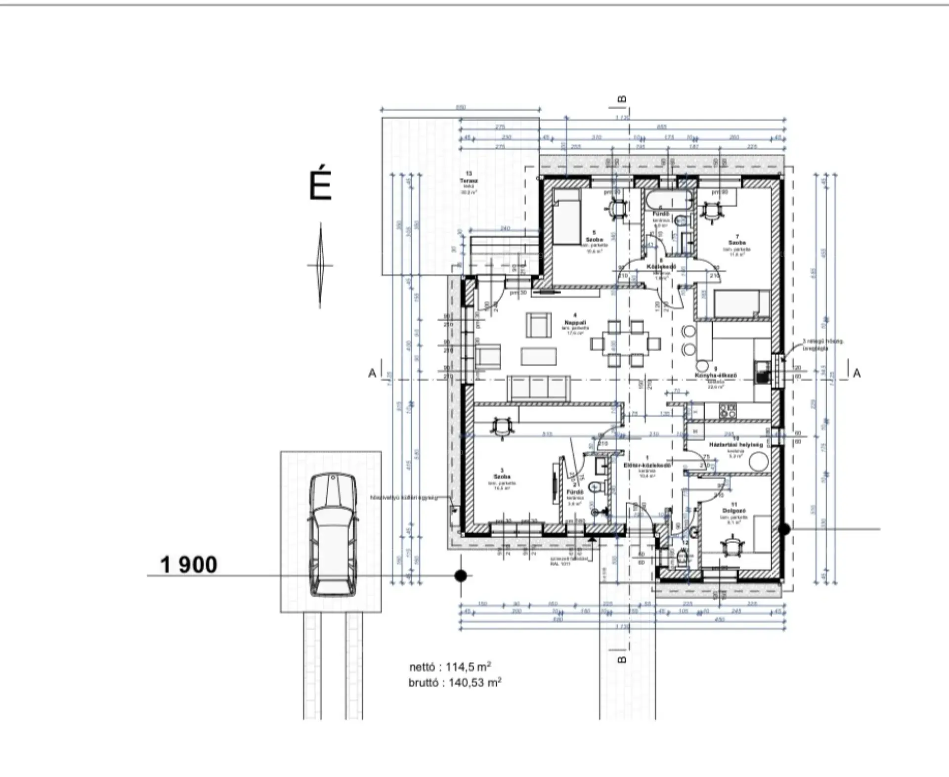
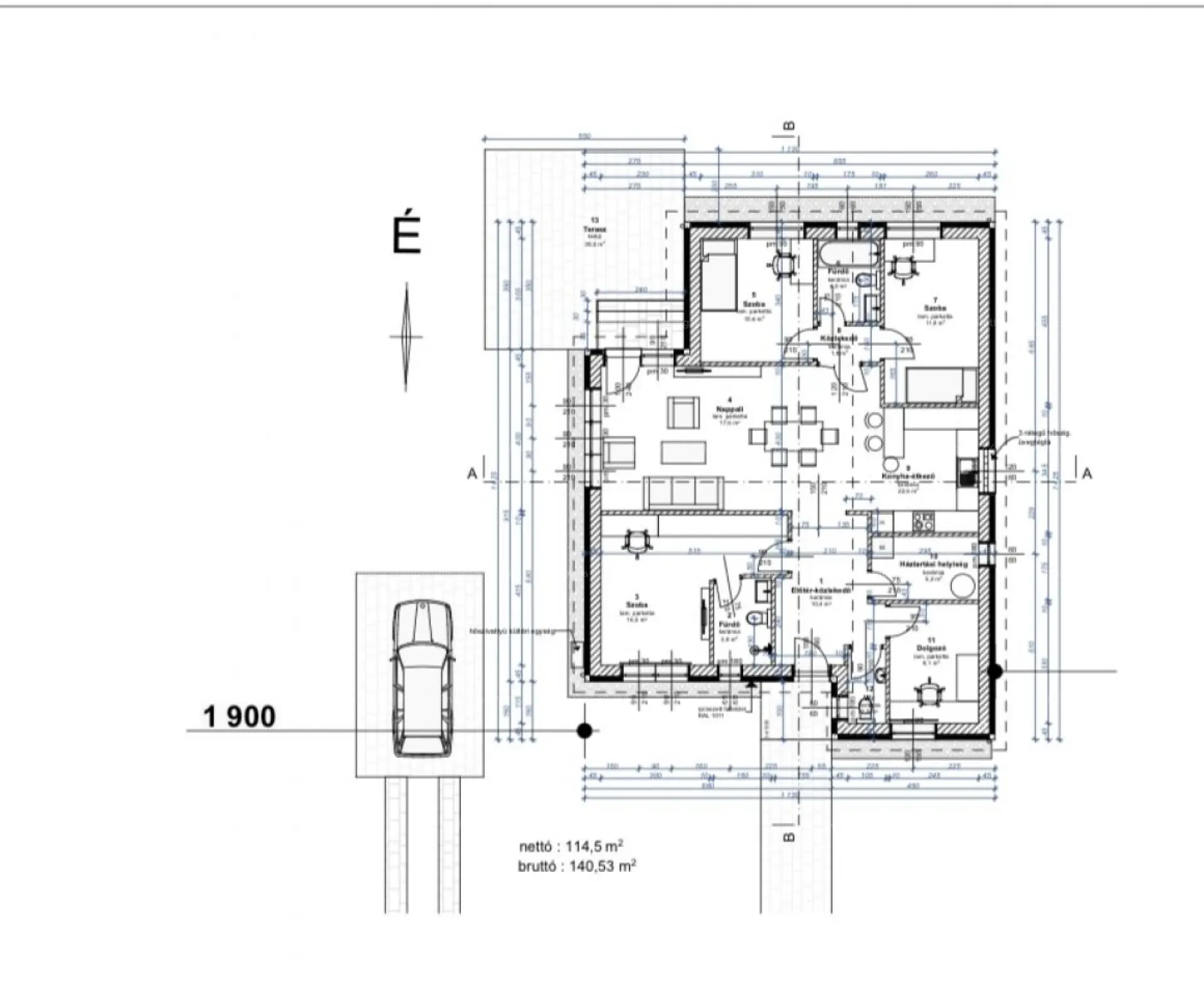
Eladó ház (családi ház)

Alapterület
115 m²
Telekterület
5755 m²
Erkély terület
10 m²
Tartozik hozzá kert
Van
Szobák száma
4
Fűtés
Hőszivattyú
Ingatlan állapota
Új építésű
Építés éve
2026
Épület szintjei
Földszintes
Pince
Nincs
Tetőtér
Beépíthető
Lift
Nincs
Napelem
Nincs
Szigetelés
Van
Parkolóhely
Udvari beálló
Kilátás
Panorámás
Légkondicionált
Igen
Tájolás
Dél-nyugati
Panelprogramos
Nem

Leírás

ÚJÉPÍTÉSŰ, ENERGIATAKARÉKOS CSALÁDI HÁZ HETÉNYEGYHÁZÁN

Kecskemét–Hetényegyháza csendes, erdőközeli részén kínálok megvételre egy látványtervekkel bemutatott, tervezett újépítésű családi ház lehetőséget, nagy méretű, természetközeli telken.

A nappali + 3 hálószoba + dolgozószoba elosztás ideális választás családoknak és otthonról dolgozóknak, akik nyugodt környezetben szeretnének élni, mégis közel maradni a városhoz.

Főbb jellemzők:

5755 m²-es, erdős telek

114,5 m² nettó lakótér

2 fürdőszoba

8,5 m² terasz

fedett gépkocsi-beálló

2026-ban indítható kivitelezés

választható burkolatok, színek

Modern műszaki tartalom:
hőszivattyús fűtés, energiatakarékos gépészet, korszerű szerkezetek, alacsony fenntartási költségek.

📞 Bővebb információ: +36 70 454 1373

Térkép

Kecskemét

Bűnügyi térkép

Boros Julianna Referens
Telefonszám +3670412
abcd