Dunaújváros

40.9 millió Ft
834 694 Ft/m²
Alapterület
49m2
Szobák
2

Prémium hitelajánlat

Önrész
info
8 180 000 Ft
+
Hitelösszeg
info
32 720 000 Ft
=
Havi törlesztő
info
254 127 Ft/hó

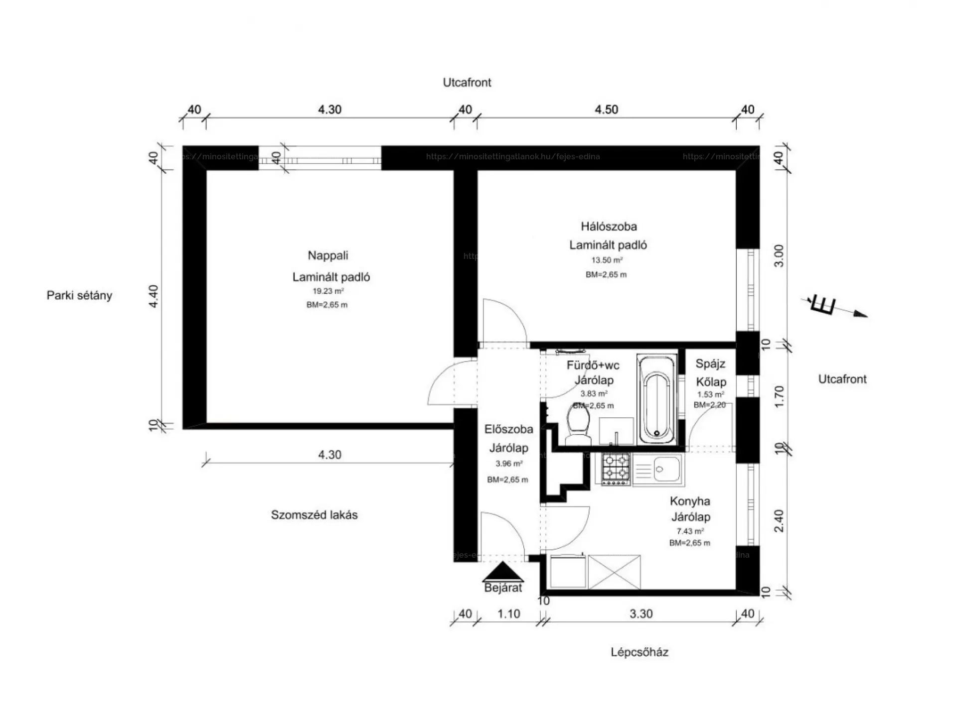
Eladó lakás (tégla építésű)

Alapterület
49 m²
Tartozik hozzá kert
Nincs
Szobák száma
2
Fűtés
Távfűtés egyedi méréssel
Ingatlan állapota
Jó állapotú
Építés éve
1963
Épület szintjei
4 szintes
Emelet
2. emelet
Pince
Nincs
Lift
Nincs
Napelem
Nincs
Szigetelés
Nincs
Parkolóhely
Utca, közterület
Kilátás
Utcai
Légkondicionált
Nem
Tájolás
Nyugati
Panelprogramos
Nem

Leírás

*** KÜLÖNLEGES HARMÓNIA *** FREKVENTÁLT ELHELYEZKEDÉS *** IGÉNYES, ESZTÉTIKUS BERENDEZÉS *** EGYEDÜLÁLLÓ LEHETŐSÉG A BELVÁROS SZÍVÉBEN ***

Dunaújvárosban, a belváros legkedveltebb részén, a Bartók Béla téren, a Bartók színház közvetlen szomszédságában, második emeleti, igényesen berendezett, két külön nyíló szobás, világos, Dél-Nyugati-Észak-Nyugati tájolású 49 m2-es téglaépítésű lakás ELADÓ.

A lakás kiváló lehetőség állandó lakhatásra, a harmonikus mindennapokhoz, akár első lakást keresőknek, összeköltözőknek, fiatal pároknak, egyedülállóknak. Értékálló befektetésre, ingatlanbefektetők számára is ideális.

A LAKÁSRÓL
A lakás AZONNAL KÖLTÖZHETŐ és ÉLVEZHETŐ, funkcionalitásában IGÉNYES, két fő számára ideális OTTHON. Az ÚJ ÉLETRE KELT lakás berendezését a már meglévő, bentmaradó, megújított bútorok és az újonnan beszerzett vadonatúj bútorzat segítségével lakberendező varázsolta újjá. Így, ebben a formájában a lakást nem lakta még senki.

A lakás elosztása funkcionálisan HARMONIKUS, KÉNYELMES és PRAKTIKUS. Helyiségek: előszoba, külön nyíló konyha kamrával, két külön nyíló szoba, egyik nappali-étkező, a másik hálószoba, valamint kádas fürdőszoba Wc-vel.
A lakberendező keze nyomán a konyha elrendezése és bútorzata is új, esztétikus külsőt kapott, ahol két személy kényelmes étkezésére is lehetőség adódik a hétköznapok során.

A lakás két irányba néző ablakaiból minden oldalon rendezett, zöldellő ősfákkal ölelt utcákra, és a mellettük elhaladó gyalogos járdákra van lehetőségünk rálátni.

A lakás újonnan beépített, több ponton záródó acél biztonsági bejárati ajtóval, műanyag nyílászárókkal, redőnnyel, szúnyoghálókkal, reluxákkal rendelkezik. A beltéri ajtók is felújításra kerültek, melynek során az ajtólapok új, design kilincseket kaptak. A szobákban laminált padló, a többi helyiségben hidegburkolat került elhelyezésre. A fűtés távhőszolgáltatón keresztül történik, a radiátorokon hőmennyiségmérők és hőszabályozó termosztátok kerültek felszerelésre. A konyhában szabadon álló gáztűzhely. A fürdőben gázbojler biztosítja a használati melegvizet. A lépcsőházi gázmérő órától a lakásba vezető gázvezeték a gázmérő óra cseréjével együtt két éve felújításra került. A füstgáz elvezetése biztonságos, FURANFLEX technológiával bélelt kéménybe történik. A kéménybélelés társasházi szinten pár évvel ezelőtt történt meg.

A két évvel ezelőtti korszerűsítés során az elektromos rendszer is megújult. Ennek során a lakás jelenlegi, funkcionális berendezéséhez igazítottan kerültek kialakításra az új elektromos dugaljak és az új lámpa kiállások is. A régi lámpatestek minden helyiségben lecserélésre kerültek, helyettük újonnan összeválogatott, megvásárolt lámpatestek kerültek felszerelésre.

Az ingatlan külön mérőórákkal (víz, villany, gáz) rendelkezik, a közös költség összege 12.750 Ft/hónap.

A TÁRSASHÁZRÓL:
A lakás egy tiszta, jogilag is rendezett, eredetileg három emeletes társasházi lépcsőházban található. Évekkel ezelőtt a felső szint fölötti padlástér beépítésre került, ahol két lakás került kialakításra, így mára a ház négy szinttel rendelkezik. A társasházhoz egy lépcsőház tartozik, 13 db lakással. Minden ingatlanhoz külön, pinceszinti tárolóhely áll a lakók rendelkezésére. A lépcsőházi lakóközösség barátságos és összetartó.

A KÖRNYÉKRŐL:
A lakás kiemelten FREKVENTÁLT ELHELYEZKEDÉSŰ, ahol minden karnyújtásnyira megtalálható. A lépcsőházból kilépve akár percek alatt, GYALOGOSAN BÁRMELY szolgáltatás, bevásárlási lehetőség, a Dunaújvárosi Egyetem, a KULTIK Mozicentrum, a Kormányablak, a Bartók Kamaraszínház és Művészetek háza, Járási Hivatal, Kórház, rendelőintézet, gyógyszertár, OTP, piac, a Béke téri buszpályaudvar, uszoda, a Felső Duna-parti sétány, szolgáltatók, éttermek, büfék, stb. elérhetők.
A környéken a közbiztonság KIVÁLÓ, a város közterületein az ingyenes parkolási lehetőség is biztosított!

*** Azt az új TULAJDONOST keressük, aki keresi a KIVÉTELES LEHETŐSÉGEKET, aki értékeli a lakás FREKVENTÁLT ELHELYEZKEDÉSÉT, az ÜDE, IGÉNYES, ESZTÉTIKUS berendezését, a HARMONIKUS tereket, a MAXIMÁLIS kényelmet, és mindezt egy központi elhelyezkedésű ingatlanban. ***

Ha BEFEKTETÉSI CÉLLAL gondolkodik, akkor megtalálta azt az ingatlant, amely akár azonnal bérbe adható és pénzt fial.

A LAKÁS TEHERMENTES, és AZONNAL KÖLTÖZHETŐ, a lehető legjobb ajánlat a környéken.

A lakás tartozéka, s így a vételár részét képezi a beépített, újragondolt konyhabútor, a megújult fürdőszobai beépített szaniterek, valamint a két éve újonnan felszerelt mennyezeti világítótestek is. A komplett bútorzat, valamint dekorációk és lakástextilek külön, egyedi megállapodás alapján MEGSZEREZHETŐK!

Minden fotón a VALÓSÁG tükröződik vissza! JÖJJÖN EL és győződjön meg a SAJÁT SZEMÉVEL, hogy a lakás az életben még vonzóbb, mint a képeken!

Tel: 06 húsz 368 7777

Térkép

Dunaújváros

Bűnügyi térkép

Fejes Edina Referens
Telefonszám +3620368
abcd