Szeged

112.6 millió Ft
1 845 902 Ft/m²
Alapterület
61m2
Szobák
3

Prémium hitelajánlat

Önrész
info
22 520 000 Ft
+
Hitelösszeg
info
90 080 000 Ft
=
Havi törlesztő
info
703 106 Ft/hó

Eladó lakás (tégla építésű)

Alapterület
61 m²
Tartozik hozzá kert
Nincs
Szobák száma
3
Fűtés
Hőszivattyú
Energetikai tanúsítvány
A
Ingatlan állapota
Új építésű
Építés éve
2025
Épület szintjei
2 szintes
Emelet
1. emelet
Pince
Nincs
Lift
Nincs
Napelem
Nincs
Szigetelés
Van
Parkolóhely
Udvari beálló
Kilátás
Udvari
Légkondicionált
Igen
Tájolás
Északi
Panelprogramos
Nem

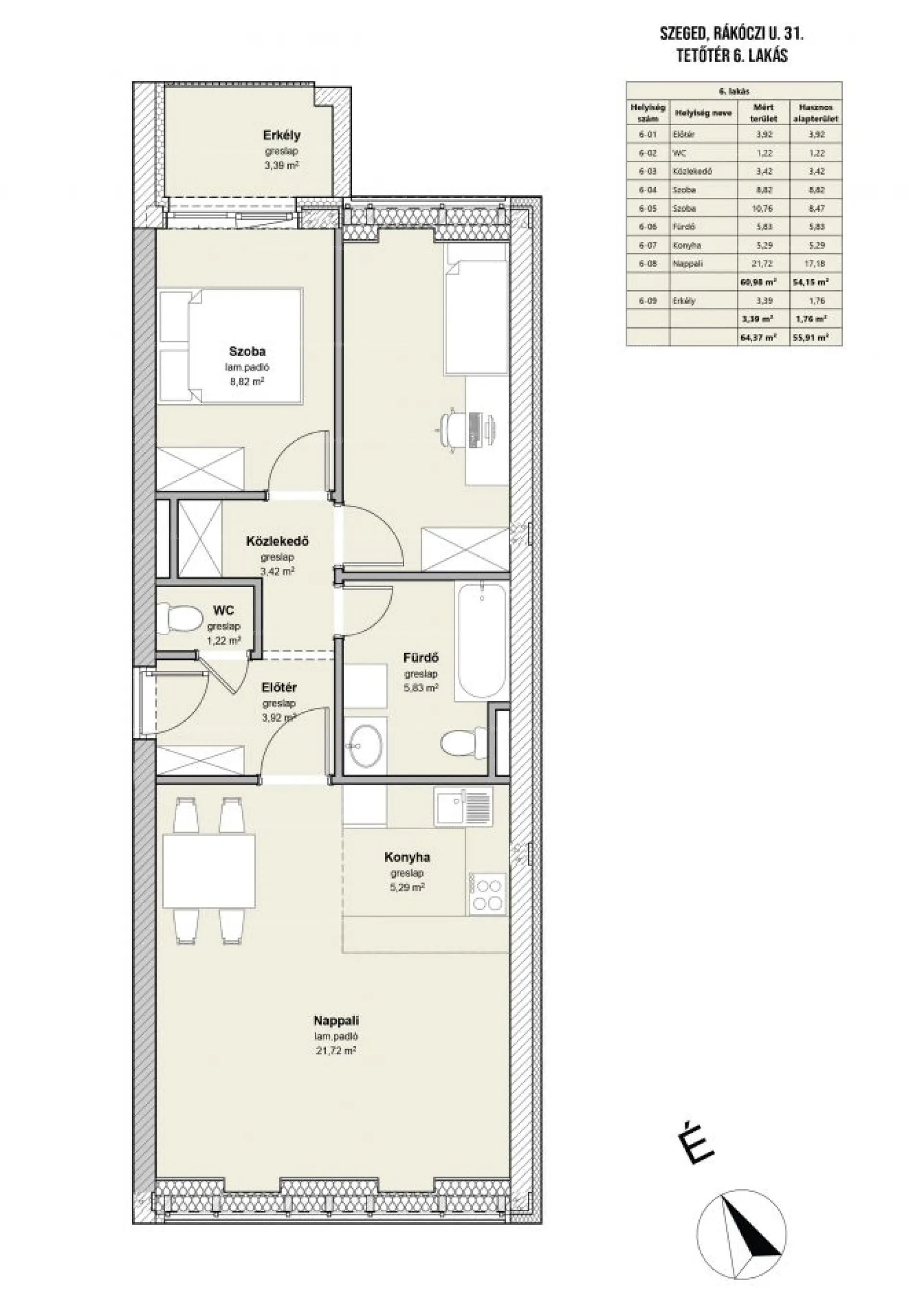
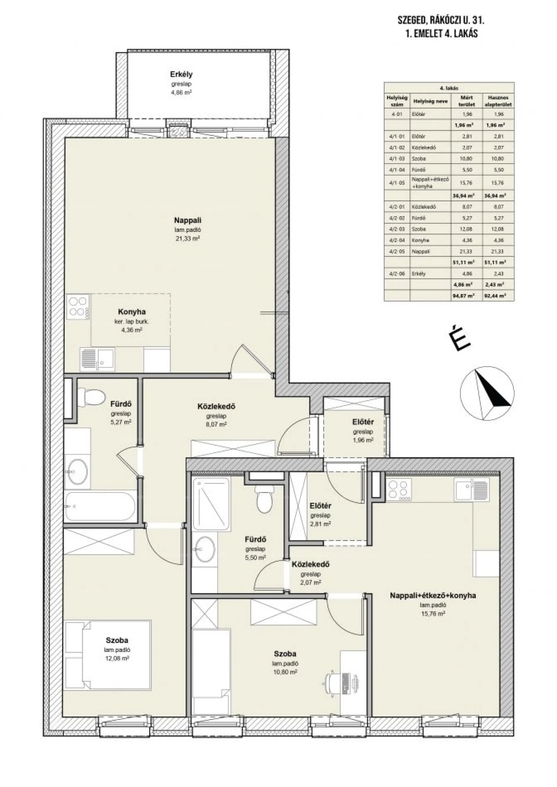
Leírás

Szegeden a Rákóczi u. 31. szám alatt épülő Társasházban, új építésű lakások, garázsok és udvari gépkocsibeállók leköthetők rugalmas fizetési feltételekkel közvetlenül a BERUHÁZÓTÓL.

Igényes tervezés, hasznos helykihasználás és minőségi kivitelezés jellemzi a korszerű technológiára épülő házat.
A lakások kulcsrakész állapotban kerülnek értékesítésre. Pontos műszaki leírást kérésre küldök!

A Társasház várható átadása: 2025. ősz

A Társasház, két szintes melyben:
- a földszinten egy üzlethelyiség mellett lakás
- 1. és 2. emeleten 3-3 lakás kerül kialakításra.
Minden lakás rendelkezik terasszal!

Legfontosabb műszaki paraméterek a teljesség igénye nélkül: hőszivattyús padlófűtés, mennyezethűtés, gépi szellőztetés. A költségmegosztás lakásonkénti mini hőközpontok kialakításával és hőmennyiség mérésével történik. Kialakításra került egy tartalék fűtési rendszer gázkazánnal kiegészítve. Napelem utólagos kialakítási lehetőség előkészítése.

A hirdetésben szereplő lakás 1. emeleten található két hálószobás, amerikai konyhás lakás, mely egy 5m2-es terasszal rendelkezik. A lakás minden részét maximálisan kihasználva, a kényelmes méretű fürdőszoba mellett egy külön mellékhelység is kialakításra került.

Garázs, udvari parkolóhely igény esetén plusz díjazás ellenében vásárolható.

További információ: +36-7o/77-44-1o7 számon

Térkép

Szeged

Bűnügyi térkép

Török Renáta Referens
Telefonszám +3670774
abcd