Szeged

182 millió Ft
1 096 386 Ft/m²
Alapterület
166m2
Telek
601 m²
Szobák
5

Prémium hitelajánlat

Önrész
info
36 400 000 Ft
+
Hitelösszeg
info
145 600 000 Ft
=
Havi törlesztő
info
1 089 845 Ft/hó

Eladó ház (családi ház)

Alapterület
166 m²
Telekterület
601 m²
Tartozik hozzá kert
Van
Szobák száma
5
Fűtés
Gázkazán
Ingatlan állapota
Felújított
Építés éve
1940
Épület szintjei
2 szintes
Pince
Van
Tetőtér
Beépített
Lift
Nincs
Napelem
Van
Szigetelés
Nincs
Parkolóhely
Önálló garázs
Kilátás
Utcai
Légkondicionált
Igen
Tájolás
Észak-keleti
Panelprogramos
Nem

Leírás

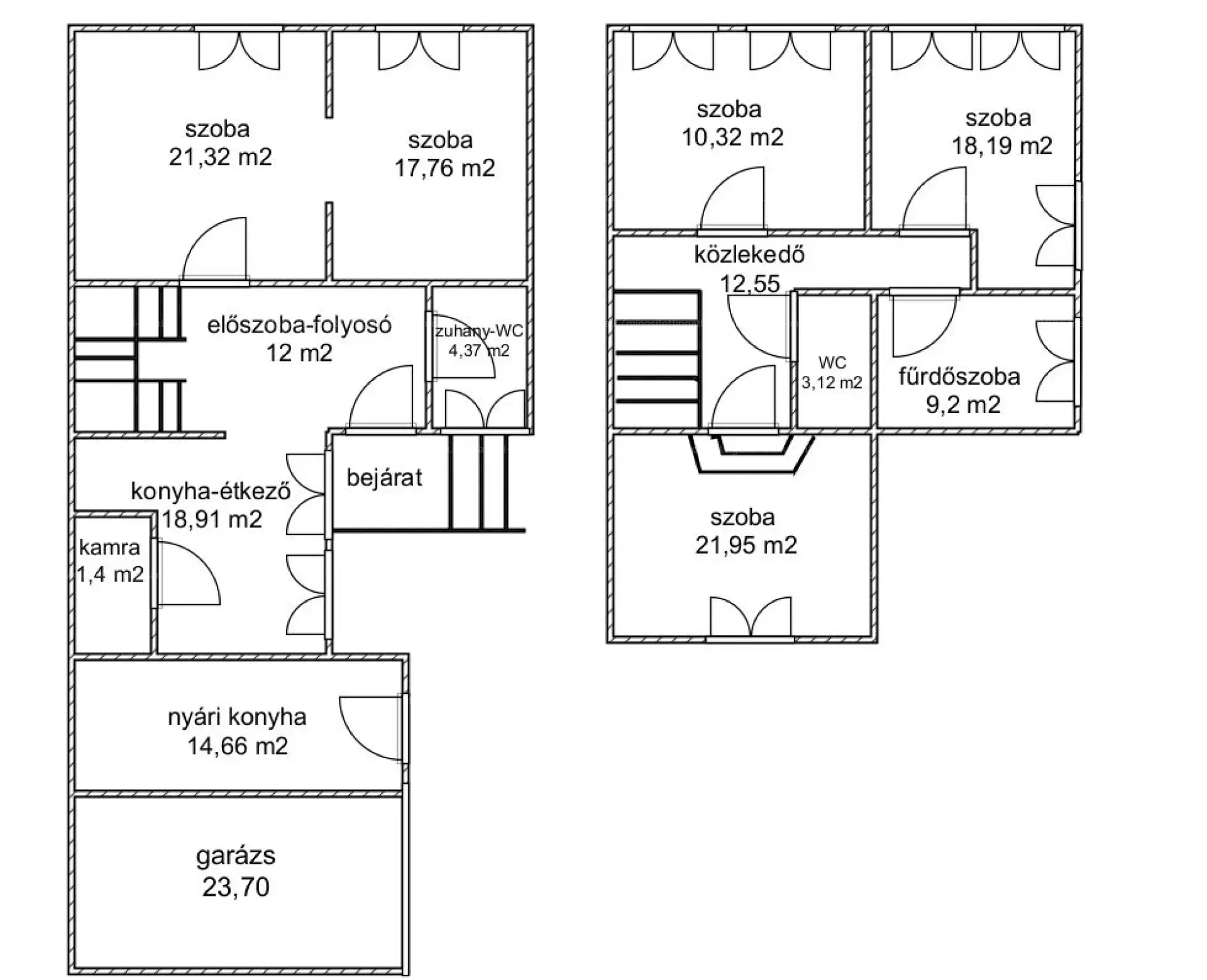
Szeged Alsóvárosban, rendezett, csendes utcában kiváló állapotú önálló, dupla komfortos, belső szintes családi ház eladó.

Az alsó szint 91 m2-es, ahol tágas nappali, 1 szoba, étkezős konyha, kamra, előszoba-folyosó és zuhanyzós fürdőszoba található. Az egybeépített udvari szárnyban nyári konyha és egy 23,7 m2-es garázs lett kialakítva. Az kisebbik alsó szoba könnyedén visszaalakítható az eredeti, előszoba felőli bejáratúra, ezzel külön bejáratúvá téve a 2 szobát.
A felső 75 m2-es szinten 3 hálószoba, közlekedő, kádas fürdőszoba és külön WC kapott helyet.

Az épület egy része alatt kb. 20 m2-es száraz pince is megtalálható.

Pihenés céljára az udvaron igényes kerti kiülő és egy sütögetőhely is ki van alakítva. A 601 m2-es telek nagyrésze szépen gondozott fűvel, virágokkal borított, a kicsibejáró és kiülő környéke térkővel és betonnal burkolt.

A megfelelő hőmérsékletről télen gáz-cirkó fűtés, radiátor hőleadókkal, kondenzációs kazánnal, míg nyáron 3 db. klíma gondoskodik.

Az elmúlt években folyamatos felújítások történtek, 2021-ben ki lett cserélve az elektromos hálózat, megújult a fűtés rendszer, ki lett építve a 4,5 kW –os napelem, mely további 5 kW-al emelhető, ki lettek cserélve az ablakok.

A fotókon látható bútorok megegyezés részét képezik, ezzel jelentősen megkönnyítve a költözés költségeit és fáradalmait.

Az ingatlan tehermentes, minden épület fel van tüntetve a térképen. Költözés megegyezés szerint.

Ügyfeleimnek térítésmentes konzultáció lehetőséget biztosítok hitelszakértővel, CSOK és hitel ügyben.

Térkép

Szeged

Bűnügyi térkép

Náfrádi Antal Referens
Telefonszám +3630931
abcd