Szeged

140 millió Ft
655 738 Ft/m²
Alapterület
197m2
Telek
543 m²
Szobák
6

Prémium hitelajánlat

Önrész
info
28 000 000 Ft
+
Hitelösszeg
info
112 000 000 Ft
=
Havi törlesztő
info
869 872 Ft/hó

Eladó ház (ikerház)

Alapterület
197 m²
Telekterület
543 m²
Erkély terület
33 m²
Tartozik hozzá kert
Van
Szobák száma
6
Ingatlan állapota
Jó állapotú
Építés éve
1991
Épület szintjei
2 szintes
Pince
Nincs
Tetőtér
Beépített
Lift
Nincs
Napelem
Nincs
Szigetelés
Nincs
Parkolóhely
Önálló garázs
Kilátás
Kertre néző
Légkondicionált
Igen
Tájolás
Észak-nyugati
Panelprogramos
Nem

Leírás

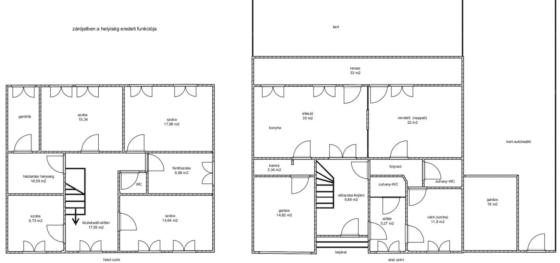
Szegeden, Alsóvárosnak a városközpont felőli részén ikerház eladó. Ideális választás családoknak, olyanoknak is, ahol valaki vállalkozást működtet.

Téglából, 543 m2-es telekre 1991-ben épült, belső 2 szintes, alapterülete 197 m2. Az alsó szint kert felőli része tágas amerikai konyhás nappali beépített mosogatógéppel, sütővel, páraelszívóval. Ezen túl egy további szoba, kamra, előszoba, 2 zuhanyzó-WC és a lakásból is megközelíthető 15 m2-es garázs található itt. Jelenleg az eredeti nappali rész ideiglenes, könnyűszerkezetes leválasztásával a szint utca felőli jobb oldali részén orvosi rendelő van kialakítva, mely könnyedén visszaállítható.
A felső szinten tágas előtérből nyíló 4 külön bejáratú szoba, gardrób, háztartási helyiség és fürdőszoba van. A házban sok beépített szekrény is található, amelyek nagy tárolókapacitást biztosítanak, és jelentősen csökkentik a berendezkedés költségeit.

A nappalit az udvar felőli oldalon tágas, 33 m2-es, privát hangulatú fedett terasz egészíti ki, valamint ápolt pázsittal fedett kert szolgál a kinti időtöltéshez.
Külön épületben 18 m2-es újabb garázs és autóbeálló áll rendelkezésre az autók számára.

Mindenhol gazdaságos padlófűtés van új kondenzációs kazánról, míg nyáron a kellemes hőérzetet több klíma biztosítja.

A Nagyállomás közelsége miatt kiválóak a közlekedési lehetőségek, ahol számos busz és villamos is közlekedik, a környéken sokféle üzlet és szolgáltatás elérhető.

Költözés, bútorzat megegyezés szerint.

Térkép

Szeged

Bűnügyi térkép

Náfrádi Antal Referens
Telefonszám +3630931
abcd