https://minositettingatlanok.hu/hu/ingatlan/1978505
Matusik Edina Referens
36702950042
QR kód

Szeged

58.9 millió Ft

1 369 767 Ft/m²
Alapterület
43m2
Szobák
2

Eladó lakás (tégla építésű)

Alapterület
43 m²
Tartozik hozzá kert
Nincs
Szobák száma
2
Fűtés
Távfűtés egyedi méréssel
Energetikai tanúsítvány
C
Ingatlan állapota
Felújított
Építés éve
1970
Épület szintjei
5 szintes
Emelet
3. emelet
Pince
Nincs
Lift
Nincs
Napelem
Nincs
Szigetelés
Van
Parkolóhely
Utca, közterület
Kilátás
Utcai
Légkondicionált
Nem
Tájolás
Észak-nyugati
Panelprogramos
Igen

Leírás

Újszegeden, a Liget mellett eladó ez az igényesen felújított, modern, fiatalos TÉGLA lakás.
A 43 m2 minden négyzetcentimétere egy ügyes tervező munkáját dícséri, teljes helykihasználással.
A konyhabútor rengeteg pakolófelületet rejt, a páraelszívó is kivezetésre került, igényes konyhagépek lettek beépítve (mosogatógép, beépített hűtőszekrény, gránit mosogató, kerámia főzőlap és elektromos sütő).
A tágas nappaliból egy kényelmes hálószoba nyílik, illetve a zuhanyzós fürdőszoba, melyen ablak is van. A fürdőben igényes szaniterek találhatóak.

A világítástechnika nagy hangsúlyt kapott szintén, az egész lakásban egészen a hangulatvilágítástól a komolyabb fényárig, és mindez természetesen igényes kapcsolókkal és lámpákkal, melyek energiatakarékos LED-del működnek.

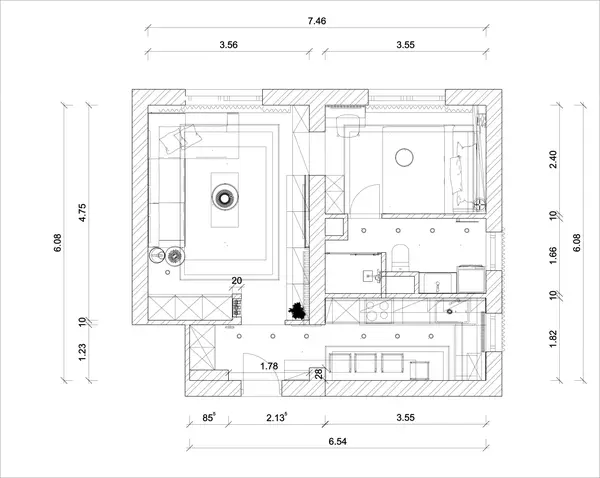
Kérem tekintse meg a berendezési tervet is, melyet a fotók között talál.
A lakáshoz tartozik egy praktikus saját tároló is a földszinten.
A lakás tehermentes, azonnal költözhető.
További információkért és időpont egyeztetésért keressen bátran!

Tulajdoni lap adatok

2023.07.17
Belterület 1800/12/A/13 helyrajzi szám
3. bejegyzõ határozat: 30218/1991.01.07 törlõ határozat: 30128/1991.01.07 - Az alapító okirat szerinti eszmei há nyaddal.

Alapadatok

Cím
társasház különlap 6726 SZEGED I KERÜLET
Típus
lakás
Alapterület
42 m²
Szobák száma
1
Félszobák száma
1

Tulajdonosok

Tulajdoni hányad
1/2
Jogállás
tulajdonos
Tulajdoni hányad
1/2
Jogállás
tulajdonos