Budapest, XXII. kerület

Minősített Ingatlan
85 millió Ft
739 130 Ft/m²
Alapterület
115m2
Szobák
4

Prémium hitelajánlat

Önrész
info
17 000 000 Ft
+
Hitelösszeg
info
68 000 000 Ft
=
Havi törlesztő
info
528 137 Ft/hó

Eladó lakás (tégla építésű)

Alapterület
115 m²
Tartozik hozzá kert
Nincs
Szobák száma
4
Fűtés
Gázkazán
Ingatlan állapota
Felújított
Építés éve
2005
Épület szintjei
2 szintes
Emelet
Földszint
Pince
Nincs
Lift
Nincs
Napelem
Nincs
Szigetelés
Van
Parkolóhely
Utca, közterület
Kilátás
Utcai
Légkondicionált
Nem
Tájolás
Nyugati
Panelprogramos
Nem

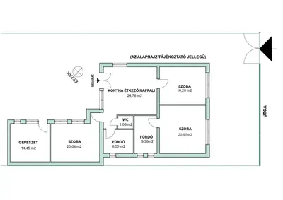
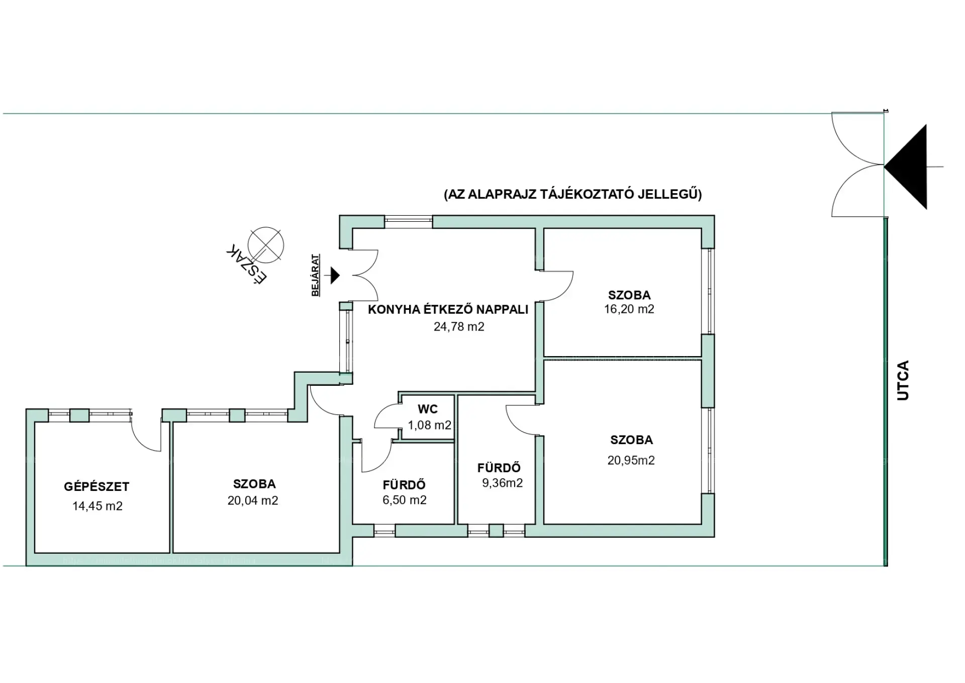
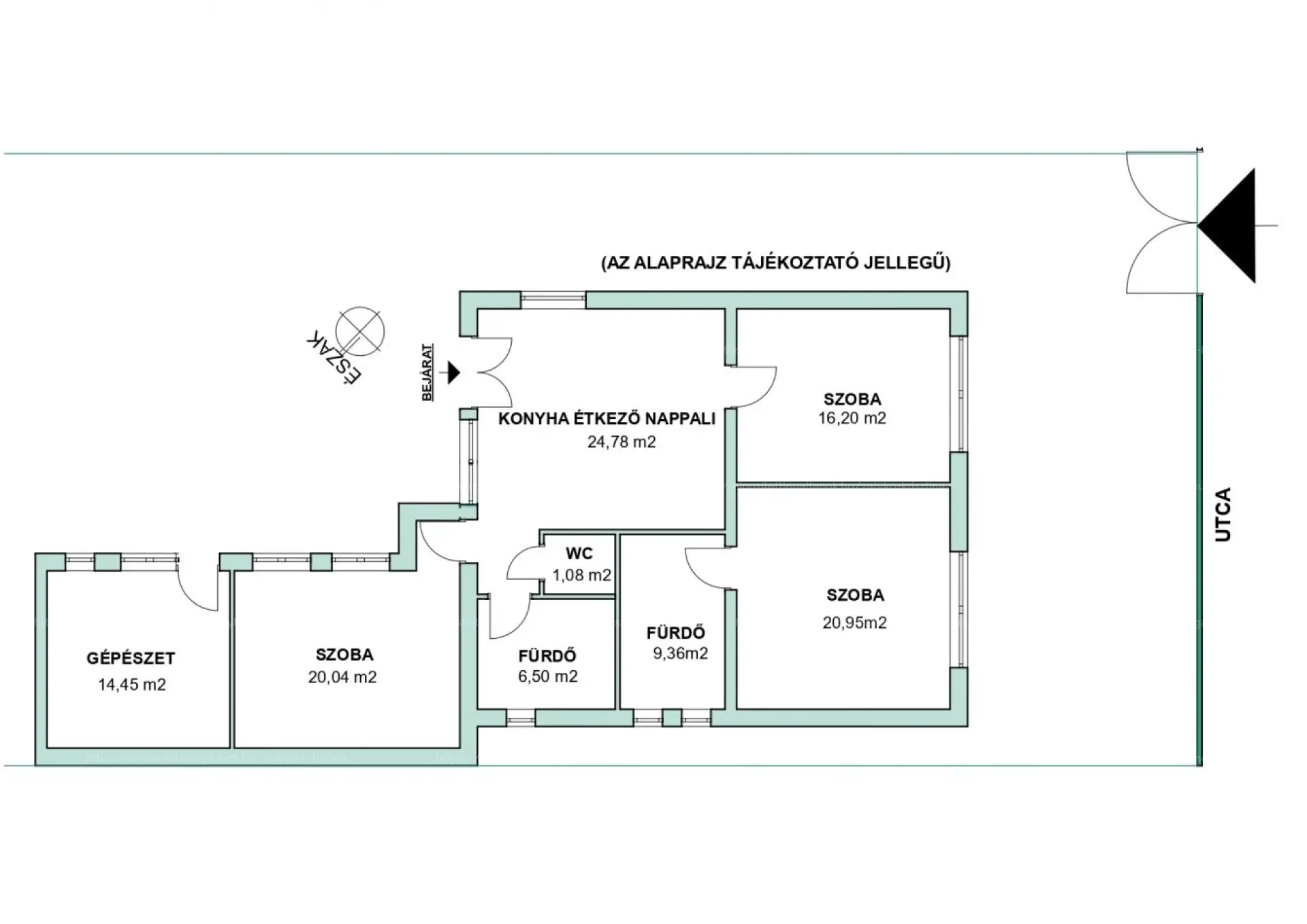
Leírás

DUNAPARTTÓL SÉTATÁVOLSÁGBAN
.
KERTESHÁZI FELÚJíTOTT LAKÁS
.
NAGYON KEDVEZŐ ÁRON

Eladásra kínálunk egy 115 m2-es amerikai konyhás nappali + három teljes értékű szobás, két fürdőszobás, külön wc-vel ellátott földszinti lakást.
A fűtést automata váltókapcsolóval ellátott gáz cirko-, vagy vegyestüzelésű kazán biztosítja egy külön helyiségben, mely háztartási helyiségként is használható.

Az épület szigetelt, a lakást 2005-ben teljeskörűen felújították, azóta is folyamatosan karbantartják.

A kert a három lakás közös használatában áll. Találunk benne kerti sütögetőt kemencével, bringa tárolót, kertibútor tárolót, fedett kiülőt, kis játszóteret mászókával. Igény szerint saját használatú kertrész is kialakítható, ez megegyezés kérdése. A használati megosztási szerződés elkészítése még folyamatban van, alakítható.
A parkolás a telken belül, és az utcán is lehetséges.

Az utca végén Duna part, Kis-Háros sziget, természetvédelmi terület.

A közelben éjszakai és nappali BKV járatok, agglomeráció felé közlekedő távolsági buszok megállói, és vasútállomás is található, a part mentén kerékpárút vezet, melyen szintén elérhetjük a belvárost.

Igény szerint hitelügyintézést, ügyvédi közreműködést biztosítunk, és segítséget nyújtunk az adásvétel folyamatának intézéséhez.

Építész, belsőépítész végzettséggel rendelkező ingatlanos vagyok, keressen bizalommal

Referencia szám: M303738

Térkép

Budapest, XXII. kerület

Bűnügyi térkép

Zatykó Krisztina Referens
Telefonszám +3670237
abcd