Budapest, XXII. kerület

Minősített Ingatlan
64.9 millió Ft
1 158 929 Ft/m²
Alapterület
56m2
Szobák
1

Prémium hitelajánlat

Önrész
info
12 980 000 Ft
+
Hitelösszeg
info
51 920 000 Ft
=
Havi törlesztő
info
403 248 Ft/hó

Eladó lakás (tégla építésű)

Alapterület
56 m²
Tartozik hozzá kert
Van
Szobák száma
1
Fűtés
Gázkazán
Ingatlan állapota
Jó állapotú
Építés éve
1930
Épület szintjei
Földszintes
Emelet
Földszint
Pince
Nincs
Lift
Nincs
Napelem
Nincs
Szigetelés
Nincs
Parkolóhely
Udvari beálló
Kilátás
Kertre néző
Légkondicionált
Nem
Tájolás
Keleti
Panelprogramos
Nem

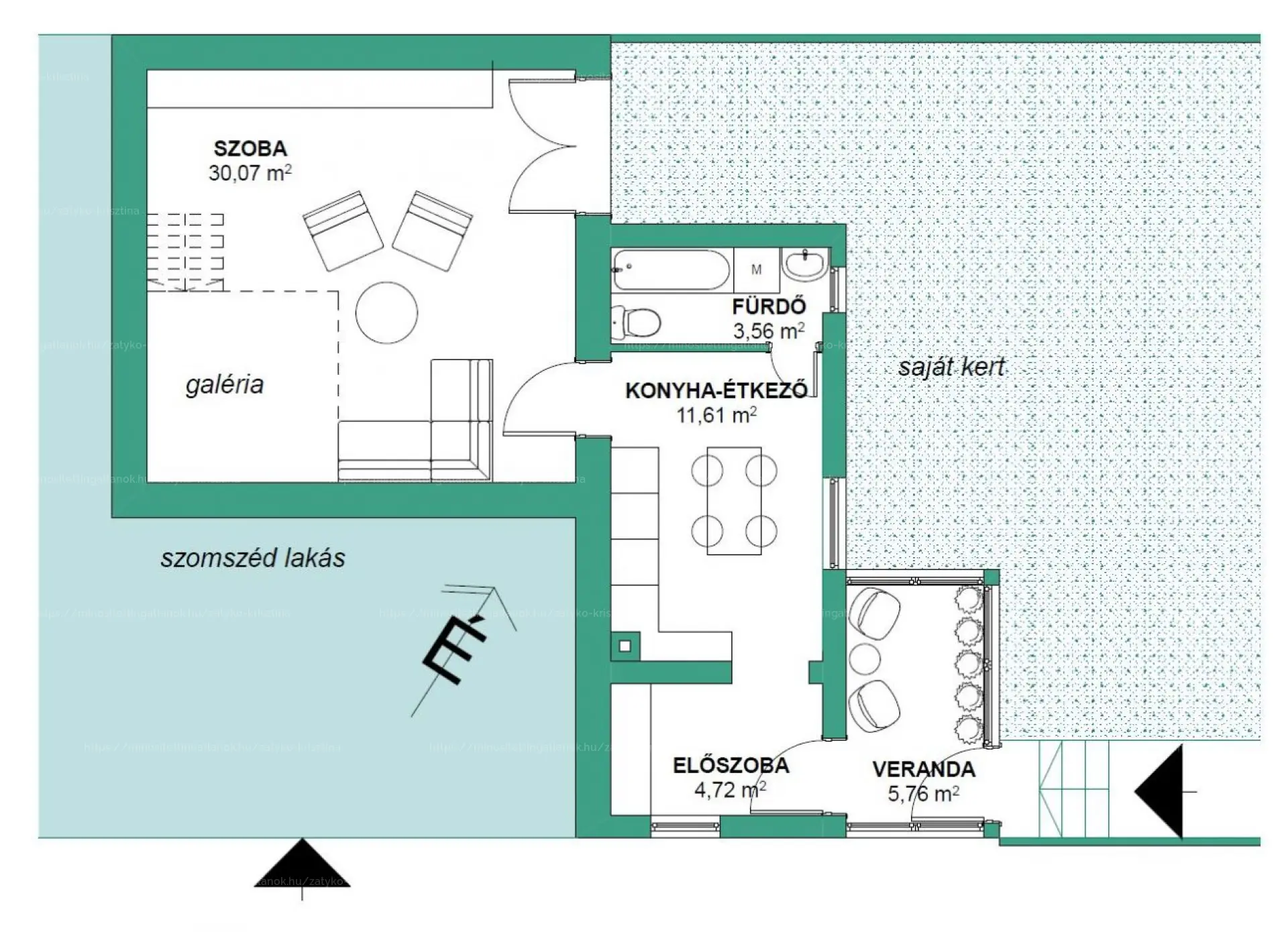
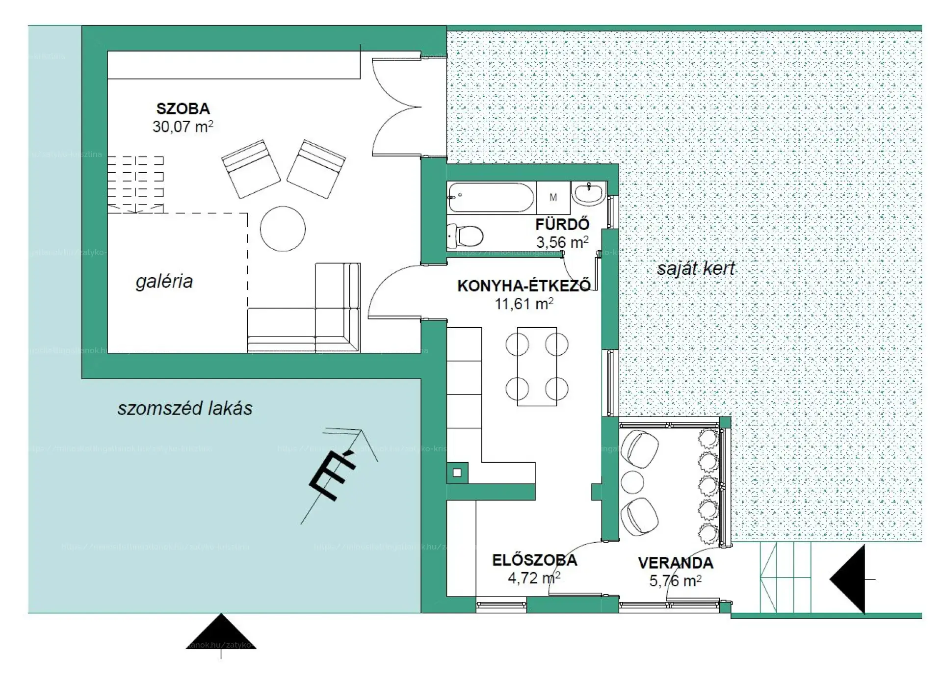
Leírás

A XXII. KERÜLET KERTVÁROSI LAKÓÖVEZETÉBEN KIVÁLÓ LOKÁCIÓBAN SAJÁT, NAGY KERTTEL RENDELKEZŐ HÁZRÉSZ OTTHON START HITELRE IS!

AZ INGATLAN
A 440 m2-es hangulatos kert 11 méteres utcafronttal bír. Egy saját parkolóhely áll rendelkezésre az utcán, a kertben pedig autóbeálló található. Az ingatlan megközelítése és használata független a szomszédoktól. Az utca csendes, kis forgalmú. Az osztatlan közös tulajdonú telek rendelkezik használati megosztási szerződéssel és vázrajzzal, ezért hitelre is megvásárolható.

A lakás részletei

A kert felől érjük el a bejárati verandát, majd az előszobát. A lakásba belépve megtalálható egy jól felszerelt konyha-étkező, egy fürdőszoba, valamint egy nagy méretű, nagy belmagasságú, alvó galériával rendelkező szoba. Innen egy terasz ajtón keresztül a kertbe juthatunk. A fűtést gáz cirko kazán nyújtja, radiátorok segítségével. A falazat kő és tégla. A külső nyílászárók két rétegű hőszigetelt üvegezésű műanyag szerkezetű ablakok. Az ingatlan jó állapotú, költözhető. Ha szükséges, a tetőtér beépíthető.

Részletek a környékről

Budatétény kedvelt kertvárosi övezetében helyezkedik el. Kiváló közlekedés és infrastruktúra szempontjából. 50 méterre a háztól buszmegálló található, óvoda, bölcsőde és boltok pedig 500 méteres körzetben vannak. Egy kilométer távolságban Campona bevásárló központ, Művelődési ház, Tanuszoda, vasútállomás. Az utcákban díjmentes a parkolás.

Igényelhető az Otthon Start Hitelprogram. A lakás megfelel a törvényi kritériumoknak, sőt, az ügyintézésben is szívesen segítek.

Térkép

Budapest, XXII. kerület

Bűnügyi térkép

Zatykó Krisztina Referens
Telefonszám +3670237
abcd