Budapest, VII. kerület

189 millió Ft
1 733 945 Ft/m²
Alapterület
109m2
Szobák
5

Prémium hitelajánlat

Önrész
info
37 800 000 Ft
+
Hitelösszeg
info
151 200 000 Ft
=
Havi törlesztő
info
1 180 434 Ft/hó

Eladó lakás (tégla építésű)

Alapterület
109 m²
Tartozik hozzá kert
Nincs
Szobák száma
5
Fűtés
Házközponti egyedi méréssel
Ingatlan állapota
Felújított
Építés éve
1929
Épület szintjei
6 szintes
Emelet
4. emelet
Pince
Nincs
Lift
Van
Napelem
Nincs
Szigetelés
Nincs
Parkolóhely
Utca, közterület
Kilátás
Utcai
Légkondicionált
Igen
Tájolás
Dél-nyugati
Panelprogramos
Nem

Leírás

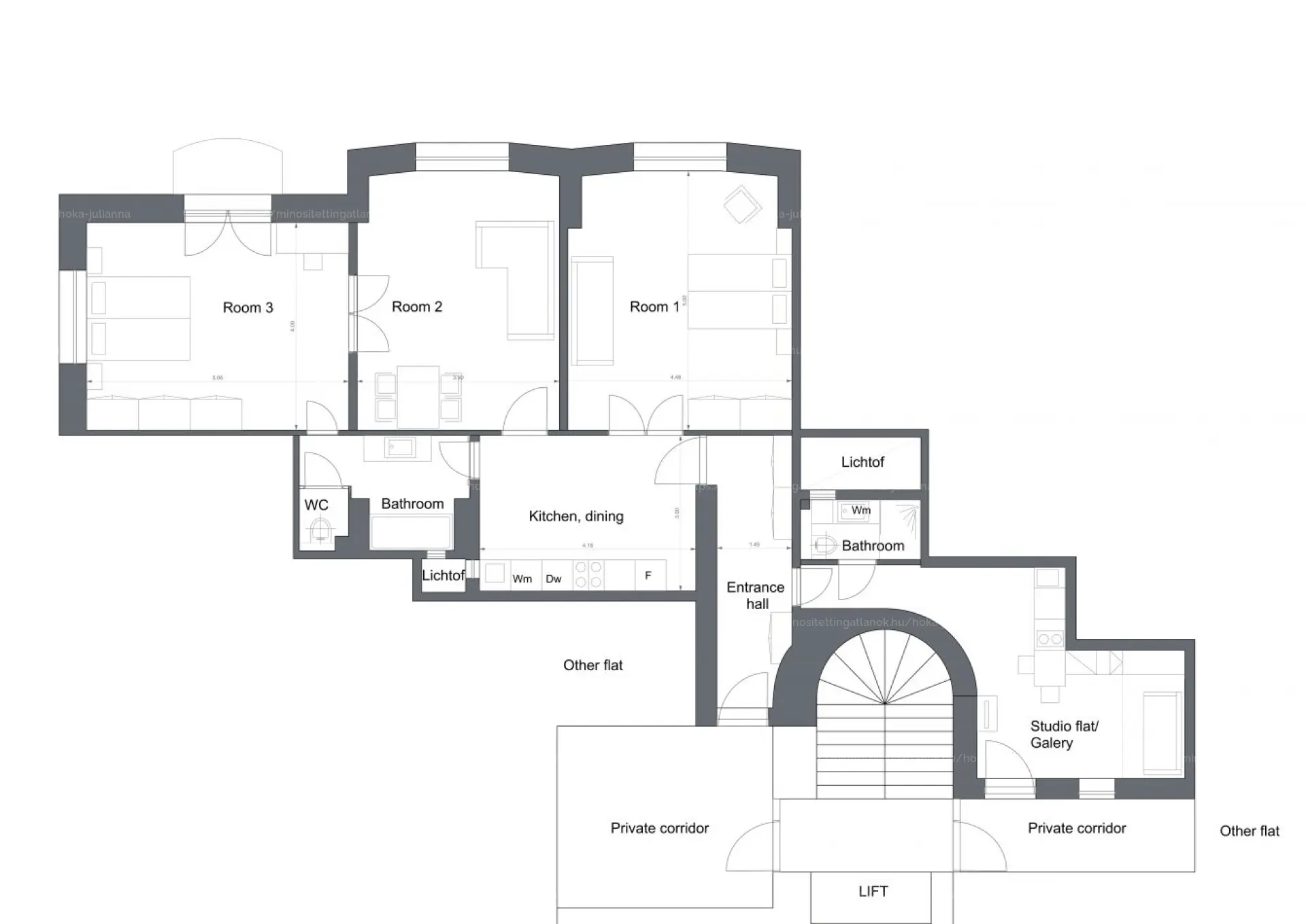
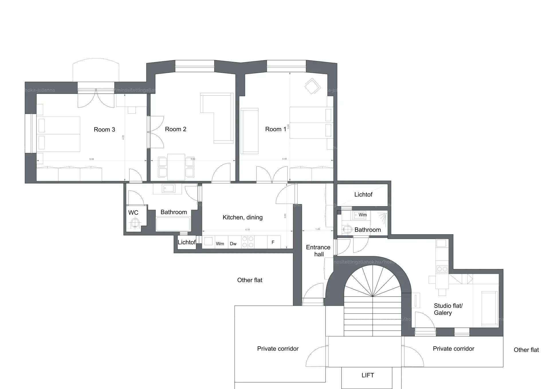
Eladó teljeskörűen felújított, minden igényt kielégítő, két önálló egységből álló ingatlan Wesselényi utcában.

Az nagypolgári lakás erkélyes változatát a Zsinagóga szomszédságában, a Nagy Diófa és a Wesselényi utca sarkán egy hatemeletes társasházban van amit 1929-ben adtak át. Ez a környék egyik legszebb art-deco épülete. Az erkélyeket és a főbejáratot kovácsoltvas elemek, míg a belső tereket stukkók horzsolják. A társasház lifttel ellátott, amely kiváló műszaki és esztétikai állapotban van és jó anyagi helyzettel rendelkezik. Az ingatlan alapterülete 109 m2, igényesen felújított és bútorozott erkélyes saroklakás, kilátással a Wesselényi illetve a Nagy Diófa utcára.
A felújítás során két szeparált egységből álló lakást alakítottak ki, a kisebb lakás igény szerint bérbe adható és szeparálható de bármikor összenyithatóak.

A nagyobb lakás( 89 m2) elosztása:

-3 szobás elrendezés (2 hálószoba + nappali)
-Külön konyha
-felújított, valódi parketta
-Magas belmagasság

A stúdióegység(19 m2) elosztása:

-Teljesen felszerelt garzon
-Saját konyhával és fürdőszobával
-Tökéletes lakhatási lehetőség vendégeknek vagy bérbeadás esetén

Kiváló helyen van infrastruktúra és tömegközlekedés szempontjából: a Gozsdu Udvar és a történelmi Zsidónegyed látványosságai sétatávon belül vannak, a 4-6 villamos, a 74-es troli és az Astoria-Deák tér megállói is pár percnyi sétával könnyen elérhetőek így a belvárosi életstílus, a kényelem és a magas hozamú befektetési lehetőség kivételes kombinációját kínálja.

A közös költség rendkívül kedvező, 26 000 Ft, Mely tartalmazza a ház központi fűtését és a vizet.

Eladó is a teljeskörűen felújított, teljesen berendezett, két egységű ingatlan on Wesselényi Street.

The erkélyes felső középosztályú lakás is located in a hat emeletes lakóépület on the corner of Nagy Diófa and Wesselényi Streets, next to the Synagogue, in a six-story apartment building that was completed in 1929 and is one of the most beautiful art-deco buildings in this area. The balconies and the main entrance are decorated with wrought iron elements, while the interior spaces are decorated with stucco. The apartment building is lifttel ellátott, amely kitűnő technikai és esztétikai állapotban van and has a jó pénzügyi helyzet. The property has a floor area of ​​109 m2, a tastefully renovated and furnished corner apartment with a balcony, overlooking Wesselényi and Nagy Diófa Streets.

During the renovation, two separate units were created, the smaller apartment can be separated and rented out if needed, but they can be bármikor összekapcsolható.

The layout of the larger apartment (89 m2):

-3-room layout (2 bedrooms + living room)
-Separate kitchen
-Renovated, eredeti parketta
-Nagy belmagasság

The layout of the studio apartment (19 m2):

-Teljesen felszerelt stúdió
-With its own kitchen and bathroom
-Ideális bérbeadásra vagy vendégeknek

It is in an kiváló helyen in terms of public transport and infrastructure: the attractions of Gozsdu Udvar and the historic Jewish Quarter are within walking distance, trams 4-6, trolleybus 74 and Astoria-Deák tér stops are also pár percnyi sétával könnyűszerrel elérhetőek, így kínál an kivételes kombinációt of downtown lifestyle, comfort and high-yield investment potential.

The common cost is rendkívül kedvező, 26,000 HUF, which includes water and central heating.

Térkép

Budapest, VII. kerület

Bűnügyi térkép

Hóka Julianna Referens
Telefonszám +3620559
abcd