Baja

79.9 million HUF
436 612 HUF/m²
Floor Area
175m2
Plot
1830 m²
Rooms
5

Premium Loan Offer

Down Payment
info
15 980 000 HUF
+
Loan Amount
info
63 920 000 HUF
=
Monthly Installment
info
496 449 HUF/month

For sale house (family house)

Floor Area
175 m²
Plot Area
1830 m²
Balcony Area
16 m²
Has Garden
Yes
Number of Rooms
5
Heating
Gas Convector
Property Condition
Good Condition
Year of Construction
2000
Building Floors
Single-story
Has Basement
Yes
Attic
property.house_attic.attic
Convertible Attic
Convertible
Elevator
No
Solar Panel
No
Insulation
Yes
Parking Space
Private Garage
View
Street View
Air Conditioned
No
Orientation
West
Panel Program
No

Description

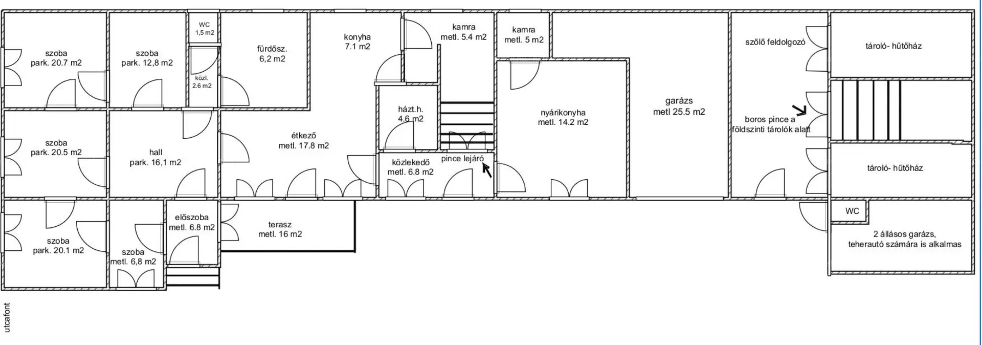
Baja fő útja mentén, közlekedés és a központhoz való távolság tekintetében kiváló helyen jó állapotú családi ház eladó.

Gazdálkodáshoz, vagy vállalkozás számára telephelynek is megfelelő az elhelyezkedése, mérete, valamint a nagy méretű tárolókapacitás miatt.

Széles utcafrontú, 1830 m2-es telekre téglából épült a 175 m2-es ház. Előszoba, 4 egész és 1 fél szoba, hall, tágas étkező-konyha, 2 kamra, fürdőszoba, közlekedő, háztartási helyiség, nyárikonyha és 2 külön WC alkotja. A ház egy része alatt 10 m2-es száraz pince található. A belső tereket jól kihasználható 16 m2-es, kitekerhető napellenzővel épült terasz egészíti ki, valamint nagy, 25.5 m2-es garázs.
A lakóépület folytatásában, összesen 220 m2-en, a korábbi használat szerinti tágas szőlő feldolgozó helyiség, 2 hűtő tároló, valamint a tárolók alatt nagy méretű boros pince lett kialakítva. Továbbá 2 állásos, avagy teherautó beállására is alkalmas garázs.

A ház fűtése egyedi gáz, konvektorokkal, valamint fatüzelésű cserépkályhával. Az ablakokat redőny, szúnyogháló védi.

A nagy méretű kertben gondosan kezelt, termő korú piros és fehér csemegeszőlő van telepítve, valamint gyümölcsfák találhatók.

Az ingatlan tehermentes, költözés megegyezés szerint.

Érd: +36 30 6881401

Map

Baja

Crime Map

Náfrádi Antal Agent
Telefonszám +3630931
abcd