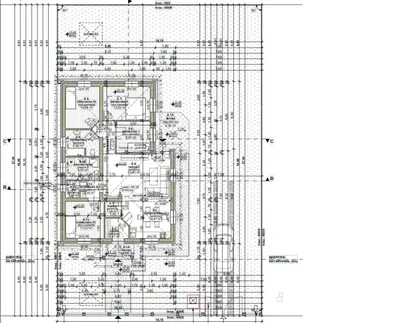
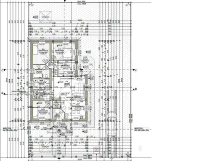
63.9
millió Ft
1 359 574 Ft/m²
Győrújfalu
Alapterület
42m2
Szobák
2
Erkély
10m2