Budapest, VIII. kerület

74.9 millió Ft
1 971 053 Ft/m²
Alapterület
38m2
Szobák
1

Prémium hitelajánlat

Önrész
info
14 980 000 Ft
+
Hitelösszeg
info
59 920 000 Ft
=
Havi törlesztő
info
465 382 Ft/hó

Eladó lakás (tégla építésű)

Alapterület
38 m²
Tartozik hozzá kert
Nincs
Szobák száma
1
Fűtés
Gázkazán
Ingatlan állapota
Felújított
Építés éve
1950
Épület szintjei
3 szintes
Emelet
2. emelet
Pince
Nincs
Lift
Van
Napelem
Nincs
Szigetelés
Van
Parkolóhely
Utca, közterület
Kilátás
Utcai
Légkondicionált
Igen
Tájolás
Keleti
Panelprogramos
Nem

Leírás

Frissen és minőségben felújított
Világos, csendes lakás
Felújított, liftes házban

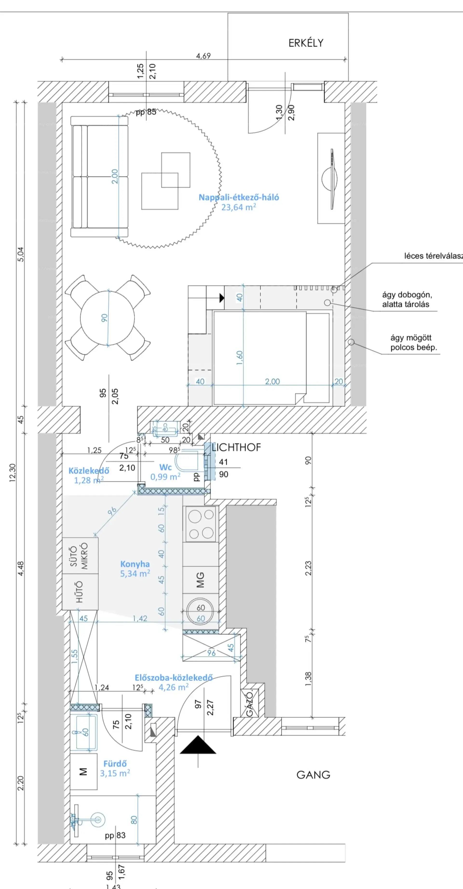
TULAJDONOSTÓL eladó a 8. kerület Kisfaludy utca 13-ban, egy igényesen felújított 38 nm + 3 nm erkélyes, 2.emeleti, 1 szobás lakás.

A lakás egy karbantartott és kifejezetten csendes házban található. A közelmúltban megtörtént a ház homlokzati felújítása, új lift került beépítésre, és az elektromos hálózat is korszerűsítésre került.
A lakásfelújítás során a beltér teljes körűen megújult falon kívül és belül egyaránt.

A felújítás során megtörtént
- az elektromos vezetékek cseréje
- villanyóra szabványosítása, bővítése 32A
- vízvezetékek cseréje
- radiátorok cseréje
- cirkókazán kiépítése, kémény bélelése
- nyílászárók cseréje (ajtók, ablakok)
- az összes ablakon redőny és szúnyogháló található
- parketta cseréje
- hidegburkolatok cseréje (minőségi járólapok, csempék)
- gyönyörű, gépesített konyha került kialakításra (sütő, főzőlap, fagyasztós hűtőszekrény, mosogatógép, páraelszívó, mikró)
- klíma is beszerelésre került

Az ingatlan felújítása során módosítottuk az alaprajzot, így a lakás belső elrendezése kiváló. A legoptimálisabb helykihasználás végett az ágyat megemeltük, alá a ruhák tárolására alkalmas szekrényeket tettünk. A fürdő és a wc külön helyiségben található, a fűtésről kondenzációs cirkókazán gondoskodik. A 3 nm-es erkély a csekély forgalmú, egyirányú utcára néz.

A lakás a liftes társasház második emeletén van, kelet-nyugati tájolású, kifejezetten csendes, világos, besüt a nap. A lakóház tiszta, rendezett, a lakóközösség kulturált. A lokáció zseniális, a Corvin Plázától 200 méterre, a nyüzsgő belvárosban található, mégis egy nyugis kis utcában. Metró, 4-6-os villamos, buszok, éjszakai járatok, minden megtalálható, ami kell.
Abszolút ideális befektetésnek, fiataloknak, egyetemistáknak, egyedülállóknak vagy egy párnak.
Befektetőknek: rövidtávú lakáskiadás jelenleg is megoldható.

Tehermentes ingatlan, azonnal költözhető, 1/1 tulajdonos.

Közös ktg: 17.000.-

A beépített gépek és bútorok a vételár részét képezik, többi bútor és berendezési tárgy, dekoráció külön megállapodás alapján, akár a teljes bútorzattal együtt megvásárolható.

Korábbi referenciákat itt talál: https://ingatlanokfelujitasa.hu/referenciak/

Kedves INGATLANOSOK! Szinte minden ingatlanirodánál van kontaktom, ha nem megy egyedül, meg fogom keresni őket. Addig meg köszönöm, hogy nem hívogatnak :-)

Irányár: 74,9 millió

Érdeklődni: 0630 625-8808

Térkép

Budapest, VIII. kerület

Bűnügyi térkép

erika.vasziljevics@gmail.com Referens
Telefonszám +3630625
abcd