https://minositettingatlanok.hu/hu/ingatlan/9914522
Molnár Dominik Referens
36307409976
QR kód

Budapest, V. kerület

149.9 millió Ft

2 342 188 Ft/m²
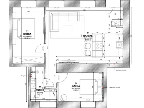
Alapterület
64m2
Szobák
3

Eladó lakás (tégla építésű)

Alapterület
64 m²
Tartozik hozzá kert
Nincs
Szobák száma
3
Ingatlan állapota
Felújított
Építés éve
1910
Épület szintjei
5 szintes
Emelet
1. emelet
Pince
Nincs
Lift
Van
Napelem
Nincs
Szigetelés
Nincs
Parkolóhely
Utca, közterület
Kilátás
Udvari
Légkondicionált
Igen
Tájolás
Nyugati
Panelprogramos
Nem

Leírás

Egy teljesen felújított, 3 szobás lakást keres az 5.kerületben, Belvárosban, csendes környezetben, felújított műemlék épületben?

- Teljes körűen felújított
- 64 nm alapterület
- 1. emelet
- 2 lifttel
- Nappali + 2 hálószoba + fürdő
- Bútorozott és gépesített
- 4 zónás padlófűtés
- 3 db hűtő-fűtő klíma (minden szobában)
- Hő- és hangszigetelt fa nyílászárók elektromos redőnyökkel
- Világos, csendes
- Műemlék épületben

Ajánlanám azoknak, akik egy azonnal költözhető, komplett berendezéssel átadott lakást keresnek a belváros egyik legcsendesebb utcájában.

ELHELYEZKEDÉS
Egy kiváló lokációval bíró ingatlan, amely az V. kerület szívében helyezkedik el egy csendes, csak lakók számára fenntartott utca szakaszán.

- Szolgáltatások: A környéken különféle szolgáltatások elérhetők, beleértve éttermeket, kávézókat, boltokat és bankokat. A közelben több üzleti központ is található.
- Tömegközlekedés: A helyszín könnyen megközelíthető a budapesti tömegközlekedési hálózattal.
Számos busz- és villamosmegálló található a közelben, valamint a metróvonalak is gyors hozzáférést biztosítanak a város többi részéhez.

LAKÁS
A lakás teljes körű műszaki és esztétikai felújítása most fejeződött be, így várja új, első lakóját.
A fotókon látható minőség és gondosság minden részletében megmutatkozik.
64 nm alapterületű, melyben 1 nappali és 2 hálószoba kapott helyet.
A lakás udvarra néz, így csendes és nyugodt.

- Fűtés: 4 zónás padlófűtés-rendszer a maximális komfort érdekében.
- Klimatizálás: Minden szobában hűtő-fűtő klíma található (összesen 3 darab), így évszaktól függetlenül kellemes hőmérséklet biztosított.
- Nyílászárók: Hő- és hangszigetelt fa nyílászárók elektromos redőnyökkel, melyek kiváló szigetelést és kényelmet nyújtanak.

A lakás teljes mértékben bútorozott és gépesített, az áron látható berendezéssel kerül átadásra.

TÁRSASHÁZ
A társasház gyönyörű műemlék épület, melyben 2 lift is megtalálható.
A ház jó állapotban van, pénzügyei rendezettek.
Az utca ezen szakasza csak az itt lakók részére fenntartott, így maximális nyugalmat és biztonságot nyújt.

PARKOLÁS
Parkolni az utcában lehetséges, melybe kizárólag engedéllyel rendelkezők tudnak behajtani, így mindig van parkolóhely.

Tökéletes választás mindazok számára, akik egy teljesen felújított, azonnal költözhető lakásra vágynak Budapest egyik legcsendesebb, legbiztonságosabb utcájában.

Az ingatlan per-, teher- és igénymentes, azonnal költözhető.
Az ár a teljes berendezést tartalmazza!
Ha bármilyen kérdése lenne, várom a hívását!