Budapest, VI. kerület

205 millió Ft
619 335 Ft/m²
Alapterület
331m2

Prémium hitelajánlat

Önrész
info
41 000 000 Ft
+
Hitelösszeg
info
164 000 000 Ft
=
Havi törlesztő
info
1 280 365 Ft/hó

Eladó Üzlet (egyéb üzlethelyiség)

Alapterület
331 m²
Tartozik hozzá kert
Nincs
Fűtés
Gázkazán
Ingatlan állapota
Közepes állapotú
Építés éve
1920
Épület szintjei
4 szintes
Emelet
Földszint
Pince
Nincs
Lift
Nincs
Napelem
Nincs
Szigetelés
Nincs
Légkondicionált
Nem
Panelprogramos
Nem

Leírás

✅Két utcai bejáratos, Sokfunkciós üzleti ingatlan, iroda-, kereskedelmi vagy szolgáltató célokra, nagy raktárral!

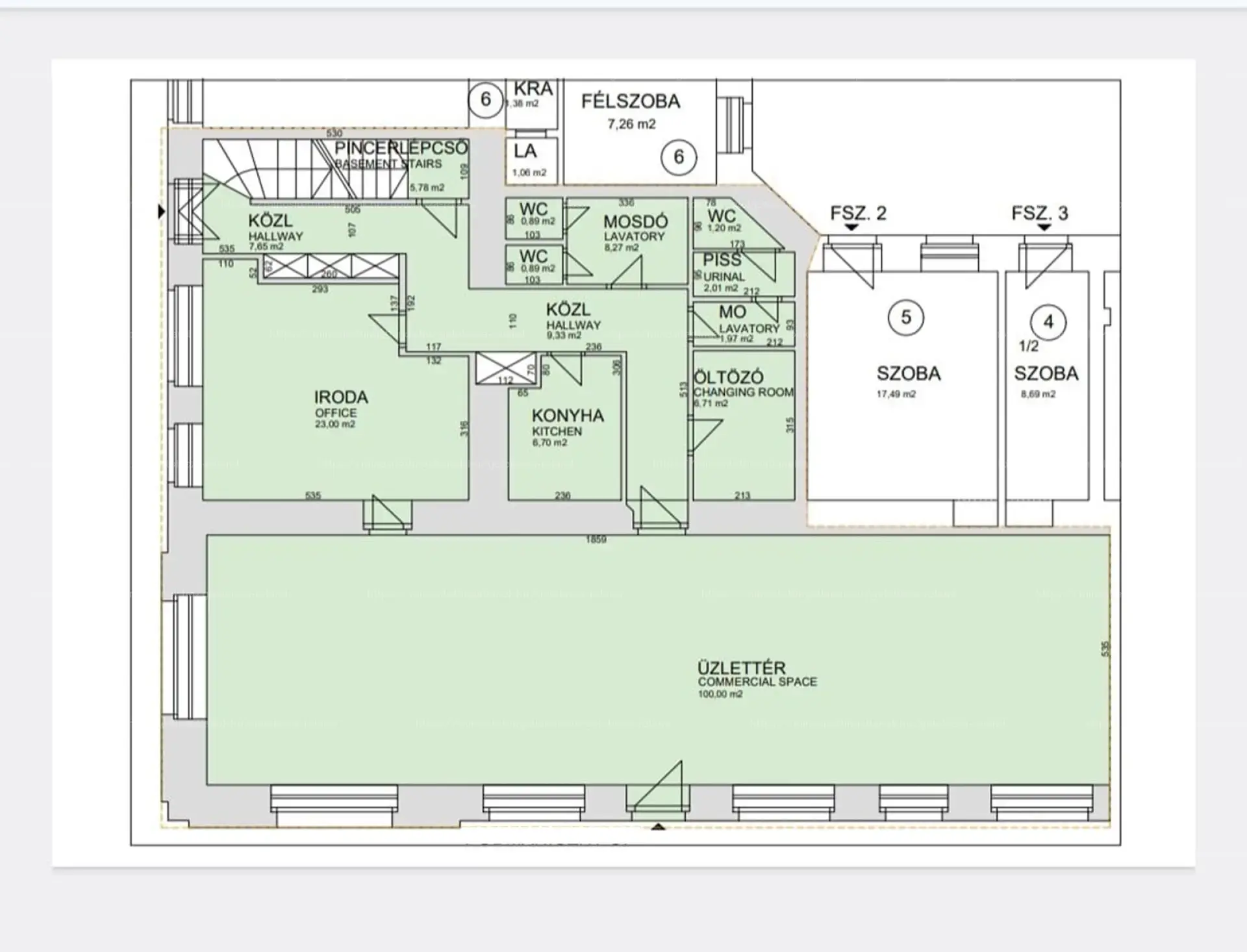
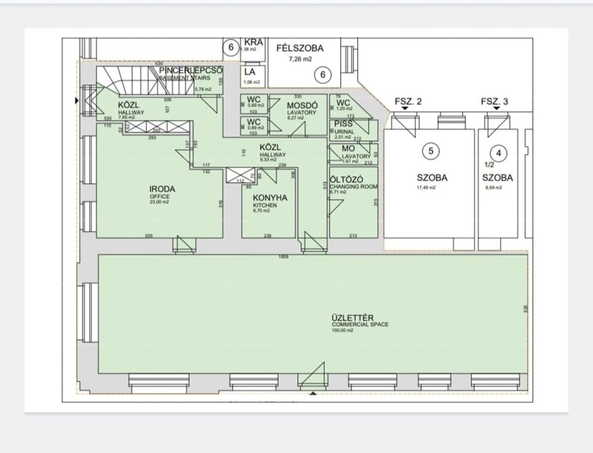
Eladó egy 331 m²-es, sokoldalúan használható, sarki üzlethelyiség, két utcai bejárattal és 7 nagy kirakati 🏬portállal. Kiválóan tagolható, több üzlet, iroda vagy szolgáltató egység is kialakítható.

🚩Helyiségek és terek:
• Földszint – 175 m²: nagy, jól alakítható eladótér/irodatér + további kiszolgáló helyiségek
• Belső félemelet – 41 m²: teljes értékű galéria (2,2 m belmagasság), akár önálló tárgyaló vagy iroda
• Alagsor – 115 m²: irattár/raktárblokk, utcai árucsúszdával
Az ingatlan részben klimatizált, riasztóval és kamerarendszerrel felszerelt. A társasház rendezett, a homlokzat jó állapotú.
A környék folyamatosan fejlődik, így befektetési célra is erős választás.

🚩FŐB JELLEMZŐK:
• Sarki elhelyezkedés – maximális láthatóság, átlag feletti forgalom
• Két utcafronti bejárat – több tevékenység vagy funkció párhuzamosan működtethető
• 7 nagy kirakati portál – kiváló brandmegjelenés
• 331 m² összterület, három külön szint – üzlet, iroda, szolgáltatás vagy kombinált működés
• Kialakítható több üzlethelyiség vagy iroregység
• Belső galéria/tárgyaló, teljes értékű tér
• Alagsori raktár blokk utcai árubeszállással
• Kamera- és riasztórendszer kiépítve
• Erős lokáció, növekvő befektetési érték

🚩AKINEK AJÁNLOM:
• Kereskedőknek, akik nagy kirakattal és állandó gyalogosforgalommal számolnak
• Szolgáltató cégeknek, akiknek fontos az ügyfélbarát belvárosi elérés
• Irodai funkcióra, cégképviselet, bankfiók, orvosi központ számára
• Befektetőknek, akik értéknövekedési potenciált és stabil bérbeadhatóságot keresnek
• Olyan vállalkozásoknak, amelyek számára kulcsfontosságú a láthatóság és a presztízs

Térkép

Budapest, VI. kerület

Bűnügyi térkép

Golobicza Roland Referens
Telefonszám +3630945
abcd