https://minositettingatlanok.hu/hu/ingatlan/9697030
Newex Ingatlaniroda 1 Referens
36301233311
QR kód

Miskolc

54.9 millió Ft

631 034 Ft/m²
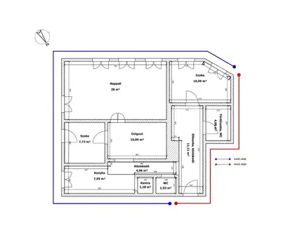
Alapterület
87m2
Szobák
4

Eladó lakás (panel)

Alapterület
87 m²
Tartozik hozzá kert
Nincs
Szobák száma
4
Fűtés
Gázkazán
Ingatlan állapota
Jó állapotú
Építés éve
1993
Épület szintjei
4 szintes
Emelet
3. emelet
Pince
Nincs
Lift
Nincs
Napelem
Nincs
Szigetelés
Nincs
Parkolóhely
Önálló garázs
Kilátás
Panorámás
Légkondicionált
Nem
Tájolás
Déli
Panelprogramos
Nem

Leírás

Eladóvá vált egy 87 m²-es, csúszózsalus építésű lakás 3 szobával és nappalival Miskolc egyik legjobb részén, a Perczel Mór utcában. A harmadik emeleti, de nem legfelső szinten található ingatlan panorámás és ideális választás családoknak.

A lakás kényelmes konyhai térrel, jó elosztású lakóterekkel és kedves szomszédokkal várja új tulajdonosát. A környék elegáns, és hosszú távon is kiváló lakhatást kínál.

Az ingatlan garázsvásárlással is egybeköthető, ami értékes lehetőség a környéken. A lakás akár bútorozottan is átvehető.

Hitelügyintézés esetén ingyenesen vállaljuk az ügyintézést. Ne maradjon le erről a lehetőségről!

Hívja most Jeszenszki Zoltánt
Elérhető a +36 30 676 1004-es számon
E-mail: jeszenszki.zoltan@newex.hu

Facebook Messenger üzenetben korlátozottan elérhetőek vagyunk!