Budapest, II. kerület

99.9 millió Ft
1 427 143 Ft/m²
Alapterület
65m2
Szobák
2
Erkély
10m2

Prémium hitelajánlat

Önrész
info
19 980 000 Ft
+
Hitelösszeg
info
79 920 000 Ft
=
Havi törlesztő
info
620 716 Ft/hó

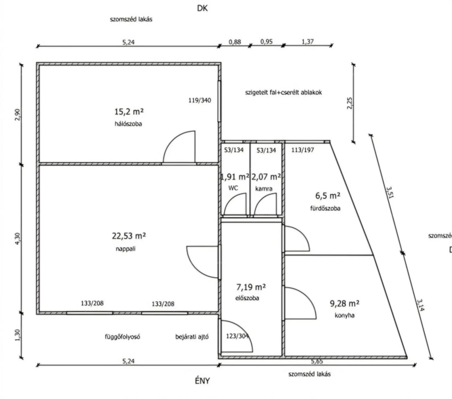
Eladó lakás (tégla építésű)

Alapterület
65 m²
Erkély terület
10 m²
Tartozik hozzá kert
Van
Szobák száma
2
Fűtés
Gázkonvektor
Energetikai tanúsítvány
D
Ingatlan állapota
Jó állapotú
Építés éve
1950
Épület szintjei
3 szintes
Emelet
1. emelet
Pince
Nincs
Lift
Nincs
Napelem
Nincs
Szigetelés
Nincs
Parkolóhely
Utca, közterület
Kilátás
Udvari
Légkondicionált
Nem
Tájolás
Keleti
Panelprogramos
Nem

Leírás

OTTHON STARTRA ALKALMAS INGATLAN !

KIVÁLÓ BUDAI LOKÁCIÓ !

II. Török utcában kínáljuk megvételre ezt a 65 nm-es, 2 szobás, SAJÁT UDVARRAL rendelkező, jó állapotú , 1 emeleti tégla lakást.
Az ingatlan igen tágas terekkel rendelkezik, könnyen 3 szobássá is alakítható.

A nyílászárók nagy részét már kicserélték.
Fűtése gáz konvektoros.
A villanyvezetékeket áthúzták, firelé, éjszakai áramos villanyóra is van.

Közös költség 19.500 Ft a felújítási alappal együtt.

Udvari nézetű, igen csendes, a lakás előtt nem jár el senki.
Csak a lakásból megközelíthető saját használatú udvar kb.10 nm , ami le lett burkolva.

A ház felső bejárata a Mecset utcáról nyílik, ahol gyönyörű zöld park található.

Azonnal költözhető!

A környék remek ellátottságú, busz villamos, nem messze a Margit híd, bevásárló központok...

Megvásárlásához hitel, támogatás igényelhető, bankfüggetlen tanácsadónk díjmentesen áll rendelkezésére, valamint ingatlan szakjogászunk segítségét is ajánljuk figyelmébe, aki kedvező díjszabással vállalja az adásvétel lebonyolítását.

Térkép

Budapest, II. kerület

Bűnügyi térkép

Sándor Zsolt Referens
Telefonszám +3670515
abcd