https://minositettingatlanok.hu/hu/ingatlan/9161735
Tamás József Referens
+36302355450
QR kód

Budapest, XVIII. kerület, Mátyás király utca 14 (Liptáktelep)

98 millió Ft

907 407 Ft/m²
Alapterület
108m2
Telek
327 m²
Szobák
3

Eladó ház (családi ház)

Rezsiköltség
10 ezer Ft/hó
Alapterület
108 m²
Telekterület
327 m²
Tartozik hozzá kert
Nincs
Szobák száma
3
Fűtés
Hőszivattyú, Fan-coil
Energetikai tanúsítvány
B
Ingatlan állapota
Jó állapotú
Építés éve
1950-1980
Épület szintjei
Földszintes
Pince
Nincs
Komfort
Dupla komfortos
Akadálymentesített
Részben
Napelem
Nincs
Szigetelés
Van
Szigetelés vastagsága
15 cm
Parkolóhely
Udvari beálló
Parkoló használata
Az ár tartalmazza
Kilátás
Kertre néző
Fürdő és WC
Egyben
Belmagasság
3 méternél alacsonyabb
Légkondicionált
Nem

Leírás

Panellakás áráért, kis kertes családi ház!
Rezsi védett ingatlan! Hőszivattyús Fűtés! Azonnal költözhető, csendes utcában, barátságos szomszédok társaságában.
Kizárólagos megbízás, ezért is van pontos címmel hirdetve. „Ingatlanost megkerülők” kérem ne fáradjanak!
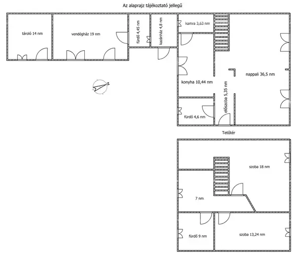
Budapest 18-dik kerületében, a Liptáktelep csendes részén, a Mátyás Király utca 14 szám alatt eladó egy 84 nm-es 3 szobás, jó állapotú családi ház 327 nm-es telken és az udvarról megközelíthető 1 szobás vendégház/garzon (24 nm) összkomfortos lakórész.
-Földszint nettó 60 nm: előszoba, óriás nappali családi összejövetelekre, konyha, kamra, fürdőszoba káddal és zuhanyzókabinnal, WC-vel.
A téli estéken kellemes hangulatot teremt a nappaliban lévő cserépkályha.
A nappaliból fa lépcső vezet a tetőtérbe. Tetőtér beépítve 48 nm (50%) -a 24 nm. Két kis hálószoba, az egyik gardrób rész kialakítással. Fürdőszoba káddal, WC-vel a közlekedő részben kis dolgozósarokkal.
Méreteket lásd az alaprajzon. 11 évvel ezelőtt lett felújítva a tetőtér akkor kapott 20 cm-es szigetelést, valamint alulról szigetelést kapott a földszint is. 2024-ben minőségi parketta csere történt. A ház falazata tégla 40 cm-es amin van 15 cm szigetelés. Fűtése Hőszivattyús Fan-coil. 3 x 20 amper a háztartási áram, és 3 x 20 amper B Geo tarifa.
-2020-ban teljes körű felújításon esett át a külön bejáratú 24 nm-es összkomfortos vendég ház, ami alkalmas a fő háztól független lakócélú elhelyezésre. Fűtése padlófűtés, akadálymentesített.
-Telken van még tűzifa és egyéb tároló, kazánház. Pergola a szabadtéri grillételek elfogyasztásához, és az autója is jó helyen lesz a fedett gépkocsibeálló alatt.
A közelben több üzlet (Aldi, Lidl), óvoda, iskola található. Vonattal a Nyugati pályaudvar kb. fél óra alatt elérhető.
Ára: 98 millió forint.
Hívjon nehogy lemaradjon!