Érd, Riminyáki út

129.9 millió Ft
586 456 Ft/m²
Alapterület
215m2
Telek
721 m²
Szobák
50

Prémium hitelajánlat

Önrész
info
25 980 000 Ft
+
Hitelösszeg
info
103 920 000 Ft
=
Havi törlesztő
info
807 117 Ft/hó

Eladó ház (családi ház)

Rezsiköltség
60000 ezer Ft/hó
Alapterület
215 m²
Telekterület
721 m²
Erkély terület
13 m²
Tartozik hozzá kert
Nincs
Szobák száma
5
Fűtés
Elektromos fűtőpanel, Vegyestüzelésű kazán, Fan-coil
Energetikai tanúsítvány
C
Ingatlan állapota
Jó állapotú
Építés éve
2001-2010
Épület szintjei
2 szintes
Pince
Nincs
Komfort
Dupla komfortos
Akadálymentesített
Részben
Napelem
Nincs
Szigetelés
Van
Szigetelés vastagsága
15 cm
Parkolóhely
Udvari beálló
Parkoló használata
Az ár tartalmazza
Kilátás
Udvari
Fürdő és WC
Külön
Belmagasság
3 méternél alacsonyabb
Légkondicionált
Igen

Leírás

Eladó családi ház Érd központjában – Riminyáki úton!

Érd központi, forgalmas részén, a Riminyáki úton kínálunk megvételre egy 215 m²-es, kétszintes, körbe-napozott családi házat tágas, 722 m²-es telken.

Földszint (praktikus elrendezéssel):

Társalgó: 39,6 m²
Nappali: 28 m²
Két külön nyíló szoba (12 m² és 12,2 m²)
Étkező: 12,4 m²
Konyha: 7,5 m²
Zuhanyzó + 2 db WC
Háztartási helyiség, előszoba, közlekedő
Fedett terasz (13 m²)

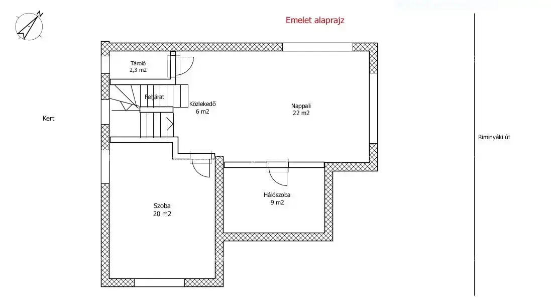
Emelet:

Nappali: 22 m²
Hálószoba: 9 m²
Szoba: 20 m²
Tároló + közlekedő

Felszereltség és állapot:
Burkolatok: laminált parketta, járólap, csempe

Fűtés: vegyes tüzelésű kazán, radiátorok, elektromos hőpanelek + inverteres klíma

Nyílászárók: műanyag, redőnnyel és szúnyoghálóval ellátva

Külső adottságok:

Oldalsó bejárón 1–3 gépkocsi beállására alkalmas hely
Ápolt, füvesített kert gyümölcsfákkal, dísznövényekkel
Szaletli és grillező a baráti összejövetelekhez
Ásott kút biztosítja az öntözést

A kert napos, D–Ny-i tájolású, az utca felőli helyiségek É–K-i fekvésűek – így a ház egész nap világos és kellemes

Elhelyezkedés:

A ház a Riminyáki úton, közvetlen buszmegálló mellett található – Budapest 20–25 perc alatt elérhető.
A szomszédságban orvosi rendelők és gyógyszertár, a közelben pedig üzletek, szervizek, bevásárlási és szolgáltatási lehetőségek sora áll rendelkezésre.
A kert hátsó, leggyakrabban használt része mégis csendes és nyugodt, tökéletes pihenésre.
Az ingatlan tehermentes, így gyorsan birtokba vehető!

Az ingatlan vállalkozás létesítésére is alkalmas!

Igény esetén bankfüggetlen hitelügyintézőként is állok rendelkezésére.

Érdeklődjön most, és nézze meg személyesen ezt a tágas, napfényes családi házat!

Saját Otthon Ingatlan és Hiteliroda

Bemutató videó

Virtuális séta

Térkép

Érd, Riminyáki út

Bűnügyi térkép

Tóth Róbert
Tóth Róbert Referens
Telefonszám +3670611
abcd