https://minositettingatlanok.hu/hu/ingatlan/9021844
Fekete Sándorné Referens
36703163964
QR kód

Mezőtúr

60 millió Ft

1 142 857 Ft/m²
Alapterület
45m2
Telek
810 m²
Szobák
2

Eladó Üdülő (Üdülőházas nyaraló)

Alapterület
45 m²
Telekterület
810 m²
Erkély terület
15 m²
Tartozik hozzá kert
Van
Szobák száma
2
Fűtés
Hűtő-fűtő klíma
Ingatlan állapota
Jó állapotú
Építés éve
1986
Épület szintjei
2 szintes
Pince
Nincs
Lift
Nincs
Napelem
Nincs
Szigetelés
Nincs
Parkolóhely
Udvari beálló
Kilátás
Panorámás
Légkondicionált
Igen
Tájolás
Dél-keleti
Panelprogramos
Nem

Leírás

A Peresi-Holt-Körös partján, Mezőtúron kínálunk eladásra egy páratlan adottságú nyaralót, ahol a vízparti élet minden előnyét élvezheti az új tulajdonos.

A ház közvetlenül a Peresi-Holt-Körös mellett fekszik, saját stéggel, gondozott kerttel és fűthető medencével – ideális hely mindazoknak, akik szeretik a természetet, a csendet és a nyugodt kikapcsolódást.

A 810 m²-es, gondosan karbantartott telken álló, téglából épült, kétszintes, 45 m²-es nyaraló minden kényelmet biztosít, amit egy vízparti otthontól elvárhatunk. A saját stég közvetlen kapcsolatot teremt a Holt-Körössel – legyen szó horgászatról, csónakázásról vagy egyszerűen csak egy délutáni napfürdőzésről. A fedett terasz és az udvari beálló a praktikumot és a kényelmet ötvözi, a térköves járda és beálló pedig igényes megjelenést kölcsönöz az udvarnak.

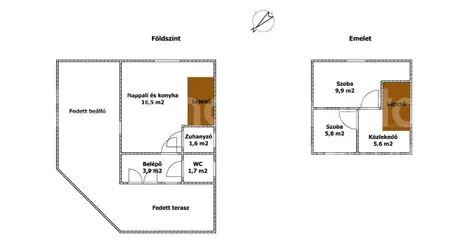
A földszinten egy nappali-konyha, zuhanyzós fürdőszoba és külön toalett kapott helyet, míg az emeleten két félszoba és egy közlekedő várja a pihenni vágyókat. A ház kandallóval és két hűtő-fűtő klímával fűthető, így az év bármely szakában használható. A meleg vizet bojler biztosítja, a vizet fúrt kút szolgáltatja víztisztító rendszeren keresztül, míg az áramellátás 32 amperes csatlakozással történik.

A kert igazi ékköve a fűthető medence, mely a Peres vizével tölthető és szűrőrendszerrel tisztított – ideális a nyári napokra, de akár a hűvösebb estéken is élvezhető. A kerti és medencevilágítás, a zuhanyzó, valamint a nyolc zónában kapcsolható öntözőrendszer tovább növelik a kényelmet és az esztétikumot. A szivattyúház már kialakításra került, így minden technikai részlet a helyén van.

Ez az ingatlan tökéletes választás mindazoknak, akik a természet közelségét, a vízparti élet nyugalmát és a modern kényelmet egyaránt keresik. Ajánlom családoknak, akik szeretnének egy biztos pontot a nyári pihenésekhez, pároknak, akik elvonulnának a város zajától, vagy akár befektetőknek, akik egy hangulatos, jól kiadható vízparti nyaralót keresnek.

Mindez Mezőtúr központjától alig 10 percnyire, Gyomaendrődtől pedig mindössze 20 percnyi autóútra található.

Saját stég, saját medence, saját nyugalom – ez a mezőtúri Peresi-Holt-Körös partján már nem álom, hanem elérhető valóság.

Érdeklődjön még ma, és nézze meg személyesen egy előre egyeztetett időpontban!

Fekete Sándorné Mariann
70/316-3964