https://minositettingatlanok.hu/hu/ingatlan/8933920
Tegzes Ildikó Referens
36302295301
QR kód

Eger

59.8 millió Ft

892 537 Ft/m²
Alapterület
65m2
Szobák
3
Erkély
4m2

Eladó lakás (csúszózsalus)

Alapterület
65 m²
Erkély terület
4 m²
Tartozik hozzá kert
Nincs
Szobák száma
3
Fűtés
Gázkazán
Ingatlan állapota
Felújított
Építés éve
1989
Épület szintjei
4 szintes
Emelet
1. emelet
Pince
Nincs
Lift
Nincs
Napelem
Nincs
Szigetelés
Van
Parkolóhely
Önálló garázs
Kilátás
Udvari
Légkondicionált
Nem
Tájolás
Déli
Panelprogramos
Nem

Leírás

Ár: 59,8 M - garázzsal együtt: 70,0 M Érd: 30/2295-301
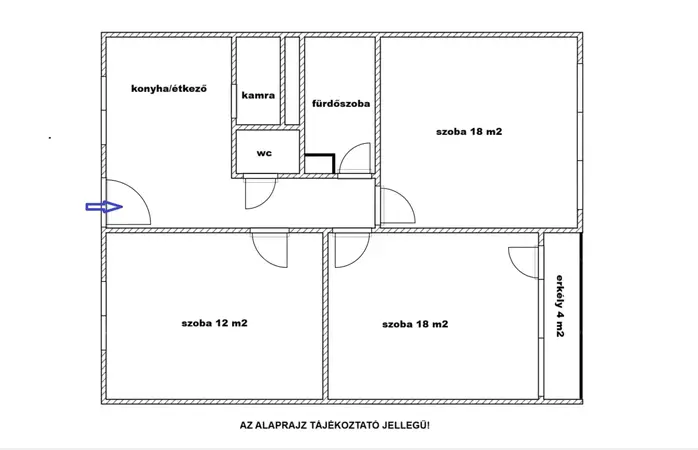
Az ingatlan 65 m2-s, melyben 3 tágas szoba ( 18 m2, 18 m2, 12 m2), konyha-étkező, kamra, tusolós fürdőszoba, külön wc és erkély található.
A felújítás 10 éve történt, minden vezetéket, burkolatot kicseréltek, a konyha, fürdőszoba felújítása is ekkor volt.
- Az ablakok műanyagok, redőnyösek, a belső ajtók is cseréltek.
- Fűtése: GÁZCIRKÓS, Viessmann gázkazánról radiátorokkal. A fűtés átalány: 8500- havonta.
- Az épület csúsztatott zsalus, szigetelt (10 cm). Közös tárolót használhatnak a lakók.
- Parkolni az épület körül ingyenesen lehetséges, de VÁSÁROLHATÓ a lakáshoz egy 15 m2-s, önálló hrsz-n nyilvántartott GARÁZS is, mely az épület alsó szintjén található, így az autónak mindig lesz helye és biztonságban tudhatja az új tulajdonos.
- 55 lakás tartozik a lakóközösséghez. A társasház kiemelt rendezettségű. Folyamatosan karbantartott az épület, rendszeresek az újítások. A tető kiváló állapotú, a stangot, villamos hálózatot az egész épületben cserélték, a lépcsőházi nyílászárók is cseréltek. Mindezt elfogadható közös költségből meg tudják valósítani, havonta 16.500- Ft a lakásra vonatkozóan.
Az ingatlan fiatalos, nagyon barátságos, MINDEN KOROSZTÁLY ideális otthona lehet. BEFEKTETŐK figyelmébe is ajánlom - akár a teljes berendezés is maradhat-, de ez nem befolyásolja az eladási árat.
Tehermentes, gyorsan birtokba vehető ingatlan. Ajánlom megtekintésre, szeressen bele! KULCSOS, rugalmasan tudom mutatni.