Debrecen

130 millió Ft
1 111 111 Ft/m²
Alapterület
117m2
Telek
200 m²
Szobák
4

Prémium hitelajánlat

Önrész
info
26 000 000 Ft
+
Hitelösszeg
info
104 000 000 Ft
=
Havi törlesztő
info
839 751 Ft/hó

Eladó ház (property.house_type.brick)

Alapterület
117 m²
Telekterület
200 m²
Tartozik hozzá kert
Van
Szobák száma
4
Fűtés
Gázkazán
Ingatlan állapota
Új építésű
Építés éve
2023
Épület szintjei
Földszintes
Emelet
Földszint
Pince
Nincs
Tetőtér
Nem beépíthető
Lift
Nincs
Napelem
Nincs
Szigetelés
Van
Parkolóhely
Önálló garázs
Kilátás
Udvari
Légkondicionált
Igen
Tájolás
Déli
Panelprogramos
Nem

Leírás

𝐔́𝐣 𝐞́𝐩𝐢́𝐭𝐞́𝐬𝐮̋ 𝐬𝐨𝐫𝐡𝐚́́𝐳𝐢 𝐥𝐚𝐤𝐚́́𝐬 𝐞𝐥𝐚𝐝𝐨́!🥳
𝐂𝐬𝐞𝐧𝐝𝐞𝐬 𝐤𝐨̈𝐫𝐧𝐲𝐞́𝐤𝐞𝐧 𝐤𝐞𝐫𝐞𝐬𝐞𝐥 𝐢𝐧𝐠𝐚𝐭𝐥𝐚𝐧𝐭? 𝐀𝐤𝐤𝐨𝐫 𝐧𝐞 𝐤𝐞𝐫𝐞𝐬𝐬 𝐭𝐨𝐯𝐚́́𝐛𝐛!

𝐈𝐧𝐠𝐚𝐭𝐥𝐚𝐧 𝐭𝐢́𝐩𝐮𝐬𝐚: Sorház
𝐈𝐧𝐠𝐚𝐭𝐥𝐚𝐧 𝐚́́𝐥𝐥𝐚𝐩𝐨𝐭𝐚: Új
𝐄́𝐩𝐢́𝐭𝐞́𝐬𝐢 𝐦𝐨́𝐝: Tégla🧱
𝐓𝐞𝐥𝐞𝐤 𝐭𝐞𝐫𝐮̈𝐥𝐞𝐭𝐞: 220 m2
𝐋𝐚𝐤𝐨́𝐭𝐞́𝐫 𝐦𝐞́𝐫𝐞𝐭𝐞: 117 m2
𝐅𝐮̋𝐭𝐞́𝐬𝐢 𝐦𝐨́𝐝: Gázfűtés, cirko🔥
𝐒𝐳𝐨𝐛𝐚́́𝐤: 4 db

A sorházi lakás 𝐜𝐬𝐚𝐥𝐚́́𝐝𝐛𝐚𝐫𝐚́́𝐭 𝐤𝐨̈𝐫𝐧𝐲𝐞𝐳𝐞𝐭𝐛𝐞𝐧 épült.
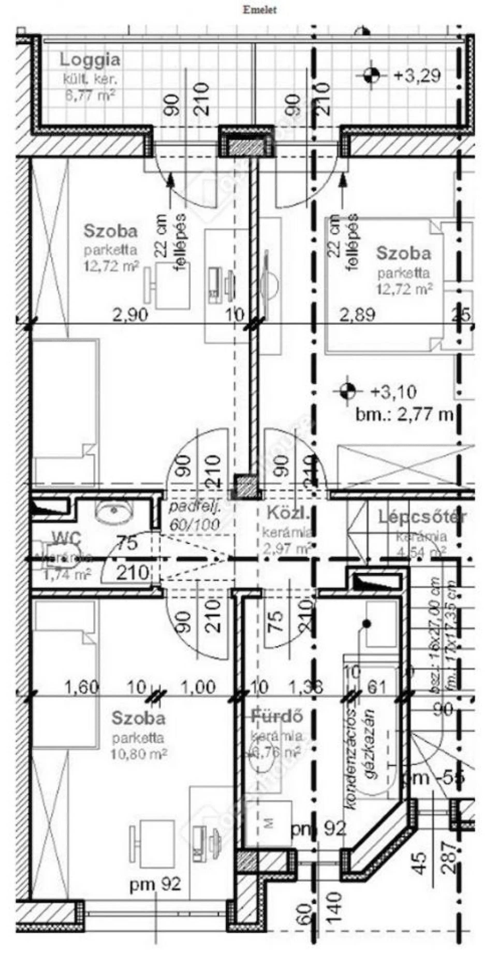
A sorházi lakás 2 𝐬𝐳𝐢𝐧𝐭𝐞𝐬, az alsó szinten van kialakítva a nappali-konyha-étkező egysége, melyhez egy terasz tartozik, illetve innen jutunk az önálló kis kertbe.
Az emeleten 3 𝐡𝐚́́𝐥𝐨́𝐬𝐳𝐨𝐛𝐚, egy igazán nagy 𝐟𝐮̈𝐫𝐝𝐨̋𝐬𝐳𝐨𝐛𝐚 és egy 𝐖𝐂 𝐤𝐞́𝐳𝐦𝐨𝐬𝐨́𝐯𝐚𝐥 kap helyet.
A sorházi lakáshoz saját, elektromos kapuval ellátott 𝐠𝐚𝐫𝐚́́𝐳𝐬 is tartozik.

𝐇𝐚 𝐦𝐞𝐠𝐭𝐞𝐭𝐬𝐳𝐞𝐭𝐭 𝐚 𝐮́𝐣 𝐞́𝐩𝐢́𝐭𝐞́𝐬𝐮̋ 𝐜𝐬𝐚𝐥𝐚́́𝐝𝐢 𝐡𝐚́́𝐳, 𝐡𝐢́𝐯𝐣 𝐛𝐚́́𝐭𝐫𝐚𝐧!🥳
𝐓𝐨𝐯𝐚́́𝐛𝐛𝐢 𝐫𝐞́𝐬𝐳𝐥𝐞𝐭𝐞𝐤𝐞́𝐫𝐭 𝐤𝐚𝐭𝐭𝐢𝐧𝐭𝐬 𝐚 𝐥𝐞𝐧𝐭𝐢 𝐥𝐢𝐧𝐤𝐫𝐞!⬇️

🏡𝐄́𝐫𝐭𝐞́𝐤𝐞𝐬𝐢́𝐭𝐨̋: 𝐊𝐞𝐜𝐬𝐤𝐞́𝐬 𝐉𝐮𝐝𝐢𝐭
☎️𝐓𝐞𝐥𝐞𝐟𝐨𝐧𝐬𝐳𝐚́́𝐦𝐚: +36 70 467 7580
𝐡𝐭𝐭𝐩𝐬://𝐨𝐡.𝐡𝐮/𝐢𝐧𝐠𝐚𝐭𝐥𝐚𝐧𝐨𝐤/𝐫𝐞𝐬𝐳𝐥𝐞𝐭𝐞𝐤/160929-𝐝𝐞𝐛𝐫𝐞𝐜𝐞𝐧-𝐞𝐥𝐚𝐝𝐨-𝐬𝐨𝐫𝐡𝐚𝐳

Térkép

Debrecen

Bűnügyi térkép

Debrecen-Openhouse Rubin Referens
Telefonszám +3620362
abcd