Budapest, VII. kerület

56.9 millió Ft
1 896 667 Ft/m²
Alapterület
30m2
Szobák
1

Prémium hitelajánlat

Önrész
info
11 380 000 Ft
+
Hitelösszeg
info
45 520 000 Ft
=
Havi törlesztő
info
353 541 Ft/hó

Eladó lakás (tégla építésű)

Alapterület
30 m²
Tartozik hozzá kert
Nincs
Szobák száma
1
Fűtés
Gázkonvektor
Ingatlan állapota
Felújított
Építés éve
1897
Épület szintjei
3 szintes
Emelet
2. emelet
Pince
Nincs
Lift
Nincs
Napelem
Nincs
Szigetelés
Nincs
Parkolóhely
Utca, közterület
Kilátás
Udvari
Légkondicionált
Igen
Tájolás
Dél-nyugati
Panelprogramos
Nem

Leírás

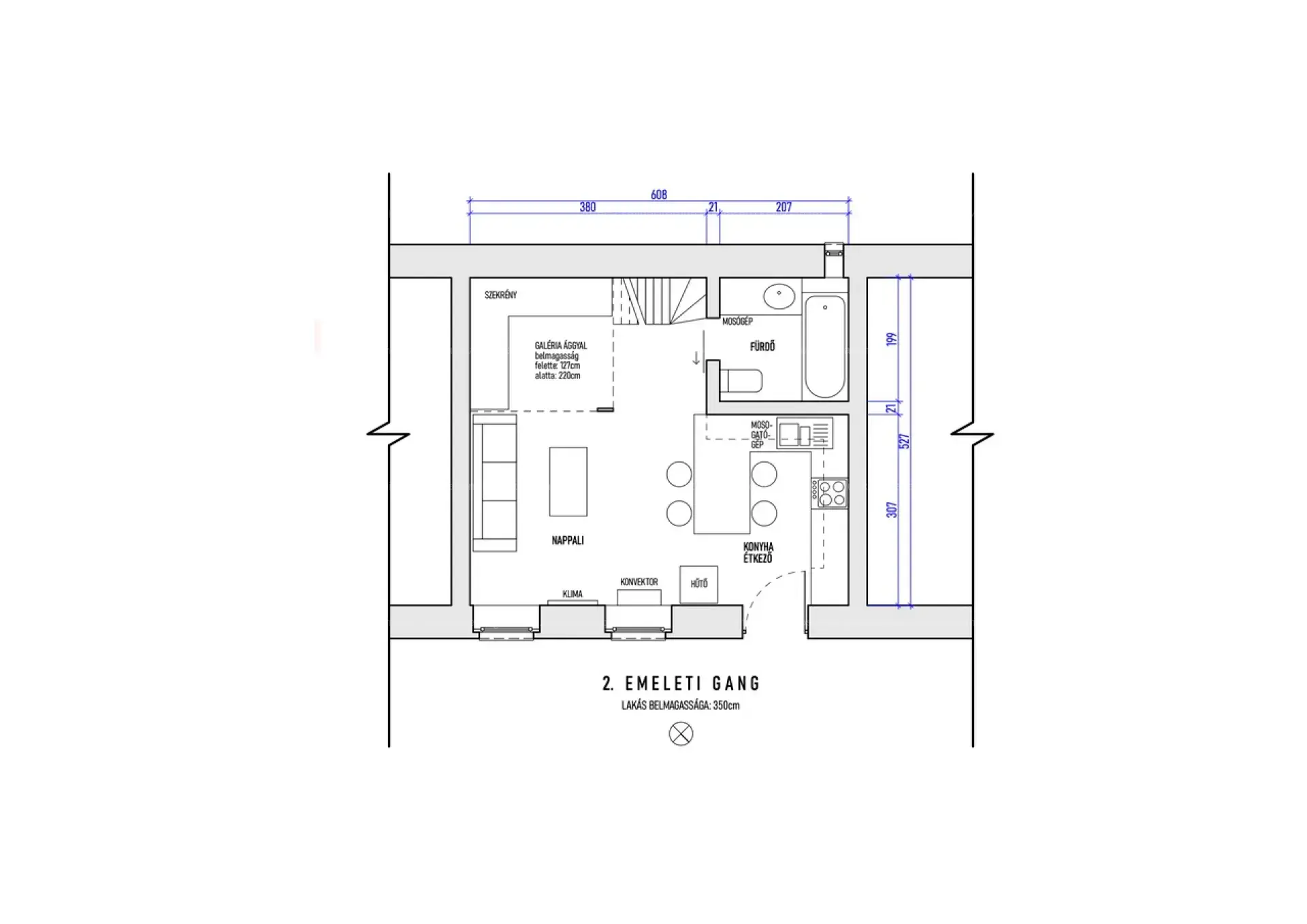
LAKÁS

4 éve mindre kiterjedő modernizáció és felújítás történt. A teljes elektromos és gáz hálózat, ill., a vízvezetékek is cserélve lettek. Minden nyílászáró hő és hangszigetelt műanyag. A konyhai részre optimális helykihasználtsággal nagy méretű beépített konyhabútor került, teljesen gépesítve (főzőlap, sütő, mosogatógép, hűtő). A fürdőszobában is minden új (természetes szellőzés megoldott, így ez a helyiség sem penészesedik). A lakótérben kialakításra került fekvőgalériának köszönhetően a nappali és a háló funkció elkülönül egymástól. Tájolásából adódóan udvari fekvése ellenére világos.

ÉPÜLET

Jól karbantartott, 3 emeletes, körfolyosós társasház. Összességében szép állapotú, műszakilag is megfelel a kor igényeinek.
2026 tavaszára tervezett fejlesztés a külső homlokzat hibáinak javítása és felújítása az első szintig.

FONTOSABB PARAMÉTEREK

Közösköltség: 11.900.- (általános dolgokat tartalmazza)
Belmagasság: 350cm
Fűtés: gázkonvektor és klíma
Hűtés: klíma
Vízóra: 1db
Tájolás: Dny
Parkolás: utcán, fizetős övezet. Lakossági engedéllyel kedvező feltételek mellett lehet használni a közeli mélygarázst a Városligetnél

A vételár a teljes beépített bútorzatot és felszerelést tartalmazza. Külön megállapodás keretén belül van lehetőség a képeken látható teljes bútorzattal együtt is megvásárolni a lakást, így azonnal hasznosítható vagy beköltözhető.

KÖRNYÉK

Jól ellátott környék, közelben több troli és buszmegálló található, de a metró is elérhető 10 perc sétával.
Városliget 60 méterre található, ahol számos kulturális és rekreációs tevékenységre lehetőség van, így a sport kedvelőknek, ill., kisállattartóknak is ideális helyszín.


KINEK AJÁNLOM?

Első lakás vásárlóknak remek kiinduló pont, mivel nem kell a felújításra költeni, közel van a belváros, mégis nyugodt, csendes részen található.

Befektetésre is alkalmas, hiszen a közeli Állatorvosi Egyetem hallgatói folyamatosan keresnek kiadó lakásokat a környéken.

Térkép

Budapest, VII. kerület

Bűnügyi térkép

Klárik Ádám Referens
Telefonszám +3630650
abcd