https://minositettingatlanok.hu/hu/ingatlan/8826979
Ingatlancorner Kft Referens
36703911136
QR kód

Szigethalom

111.9 millió Ft

944 304 Ft/m²
Alapterület
110m2
Telek
342 m²
Szobák
4

Eladó ház (ikerház)

Alapterület
110 m²
Telekterület
342 m²
Erkély terület
17 m²
Tartozik hozzá kert
Van
Szobák száma
4
Fűtés
Gázkonvektor
Energetikai tanúsítvány
A
Ingatlan állapota
Újszerű
Építés éve
2021
Épület szintjei
Földszintes
Pince
Nincs
Tetőtér
Beépíthető
Lift
Nincs
Napelem
Nincs
Szigetelés
Van
Parkolóhely
Udvari beálló
Kilátás
Kertre néző
Légkondicionált
Igen
Tájolás
Dél-nyugati
Panelprogramos
Nem

Leírás

Szigethalom központjához közel, mégis csendes, rendezett utcában kínálunk megvételre egy 2021-ben átadott, újszerű állapotú, tárolókapcsolatos ikerházat, amely kialakításának köszönhetően szinte teljesen önálló családi ház érzetét nyújtja.

Az ingatlan teljesen szeparált, parkosított udvarral rendelkezik, az utcától hátrébb helyezkedik el, így rendkívül nyugodt, csendes lakókörnyezetet biztosít. A szomszéddal kizárólag tárolókapcsolat van, lakófal nem érintkezik.

A ház modern okos otthon csomaggal felszerelt, melynek keretében a fűtés, hűtés, világítás és az automata öntözőrendszer távolról is vezérelhető, így maximális komfortot és energiahatékonyságot kínál.

Műszaki tartalom:

30 cm-es Porotherm tégla falazat

15 cm homlokzati hőszigetelés

20 cm födémszigetelés

Antracit színű betoncserép fedés

Kétrétegű, hőszigetelt műanyag nyílászárók, szúnyoghálóval

Gázcirkó fűtés, radiátoros hőleadással a szobákban, padlófűtéssel a hidegburkolatos helyiségekben

Hőszivattyús hűtő-fűtő klíma

Központi szellőztető rendszer

Automata öntözőrendszer

Gondozásmentes utcafronti kerítés

Kerti tárolók

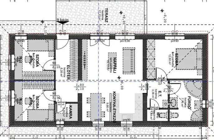
Elrendezés:

Teljesen külön bejáratú, körbekerített, szabályos telek

20 m²-es fedetlen terasz

Nagy méretű, beépített előszoba bútor

Tágas nappali–étkező–konyha, minőségi, gépesített konyhabútorral

3 külön nyíló hálószoba

Kamra / tároló helyiség

Külön WC

Fürdőszoba épített zuhanykabinnal, sarokkáddal és WC-vel

A belső terek világosak, élhetőek, igényes burkolatokkal, minőségi szaniterekkel, modern világítástechnikával és rengeteg beépített bútorral, amelyek akár a teljes berendezéssel és dekorációval együtt is megvásárolhatók.

Lokáció:

Az ingatlan elhelyezkedése kiváló: a központ, tömegközlekedés, napi bevásárlás, orvosi rendelő, patika, állatorvos gyalogosan is elérhető. A Dunapart és a parkerdő autóval vagy kerékpárral néhány perc, gyalogosan kb. 15 perc távolságra található. A környéken túraútvonalak, sétányok, játszóterek, vendéglátóhelyek és vízi sportolási lehetőségek biztosítják az aktív és pihentető kikapcsolódást.

Az ingatlan kiváló ár-érték aránnyal rendelkezik, modern műszaki tartalmának és extráinak köszönhetően ritka lehetőség a piacon. Minden korosztály számára ideális választás.

Vásárlását bankfüggetlen hiteltanácsadással és teljes ügyvédi háttérrel segítjük.
Hívjon bizalommal, szívesen mutatom! +36-70-365-4506
https://www.ingatlancorner.hu/Elado_ikerhaz_Szigethalom/107004174/