Tófű

26.9 millió Ft
134 500 Ft/m²
Alapterület
200m2
Telek
4529 m²
Szobák
6

Prémium hitelajánlat

Önrész
info
5 380 000 Ft
+
Hitelösszeg
info
21 520 000 Ft
=
Havi törlesztő
info
167 140 Ft/hó

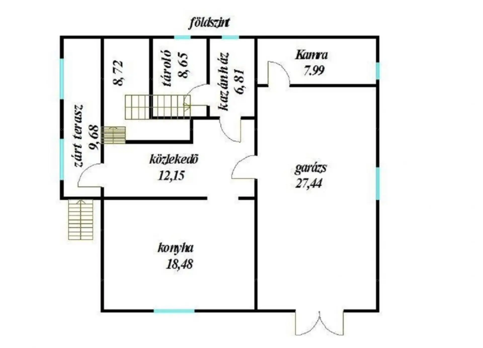
Eladó ház (családi ház)

Alapterület
200 m²
Telekterület
4529 m²
Tartozik hozzá kert
Van
Szobák száma
6
Fűtés
Gázkazán
Ingatlan állapota
Közepes állapotú
Építés éve
1970
Épület szintjei
2 szintes
Pince
Van
Tetőtér
Beépített
Lift
Nincs
Napelem
Nincs
Szigetelés
Nincs
Parkolóhely
Udvari beálló
Kilátás
Udvari
Légkondicionált
Igen
Tájolás
Keleti
Panelprogramos
Nem

Leírás

🏡 NAGY HÁZ – NAGY UDVAR – NAGYCSALÁDNAK! 👨‍👩‍👧‍👦🌳

Eladó Tófűn (Baranya Vármegye) egy 3 szintes, 200 m²-es családi ház, hatalmas 4.529 m²-es telekkel!

🌿 A Mecsek keleti lábánál, csendes, természetközeli faluban található, ahol nyugalom, friss levegő és barátságos közösség vár!
🚗 Komló csak 15 perc, Pécs 25 perc autóval.

✨ Főbb jellemzők:

✅ 6 szoba + pince + garázs + gazdasági épület
✅ Hatalmas kert – tökéletes hobbikertnek, gazdálkodásra 🌱
✅ Fűtés: gáz vagy fatüzelés 🔥
✅ Részben felújítandó – saját igényekre formálható 🛠️

🌟 Kinek ideális?

👨‍👩‍👧‍👦 Nagycsaládosoknak, többgenerációs családoknak
🚜 Vállalkozóknak, gazdálkodóknak
🏡 Falusi CSOK-ra jogosultaknak
💡 Akár otthon + munkahely egy helyen!

👉 Ha vidéki nyugalomra, nagy térre és igazi szabadságra vágysz, ez a ház tökéletes választás!

📞 További infó és megtekintés egyeztetés alapján!

Térkép

Tófű

Bűnügyi térkép

Rajczi Erika
Rajczi Erika Referens
Telefonszám +3630576
abcd