Budapest, VIII. kerület

100 millió Ft
1 063 830 Ft/m²
Alapterület
94m2
Szobák
3

Prémium hitelajánlat

Önrész
info
20 000 000 Ft
+
Hitelösszeg
info
80 000 000 Ft
=
Havi törlesztő
info
621 337 Ft/hó

Eladó lakás (tégla építésű)

Alapterület
94 m²
Tartozik hozzá kert
Nincs
Szobák száma
3
Fűtés
Gázkazán
Energetikai tanúsítvány
E
Ingatlan állapota
Felújítandó
Építés éve
1945
Épület szintjei
3 szintes
Emelet
1. emelet
Pince
Nincs
Lift
Nincs
Napelem
Nincs
Szigetelés
Nincs
Parkolóhely
Utca, közterület
Kilátás
Utcai
Légkondicionált
Nem
Tájolás
Dél-keleti
Panelprogramos
Nem

Leírás

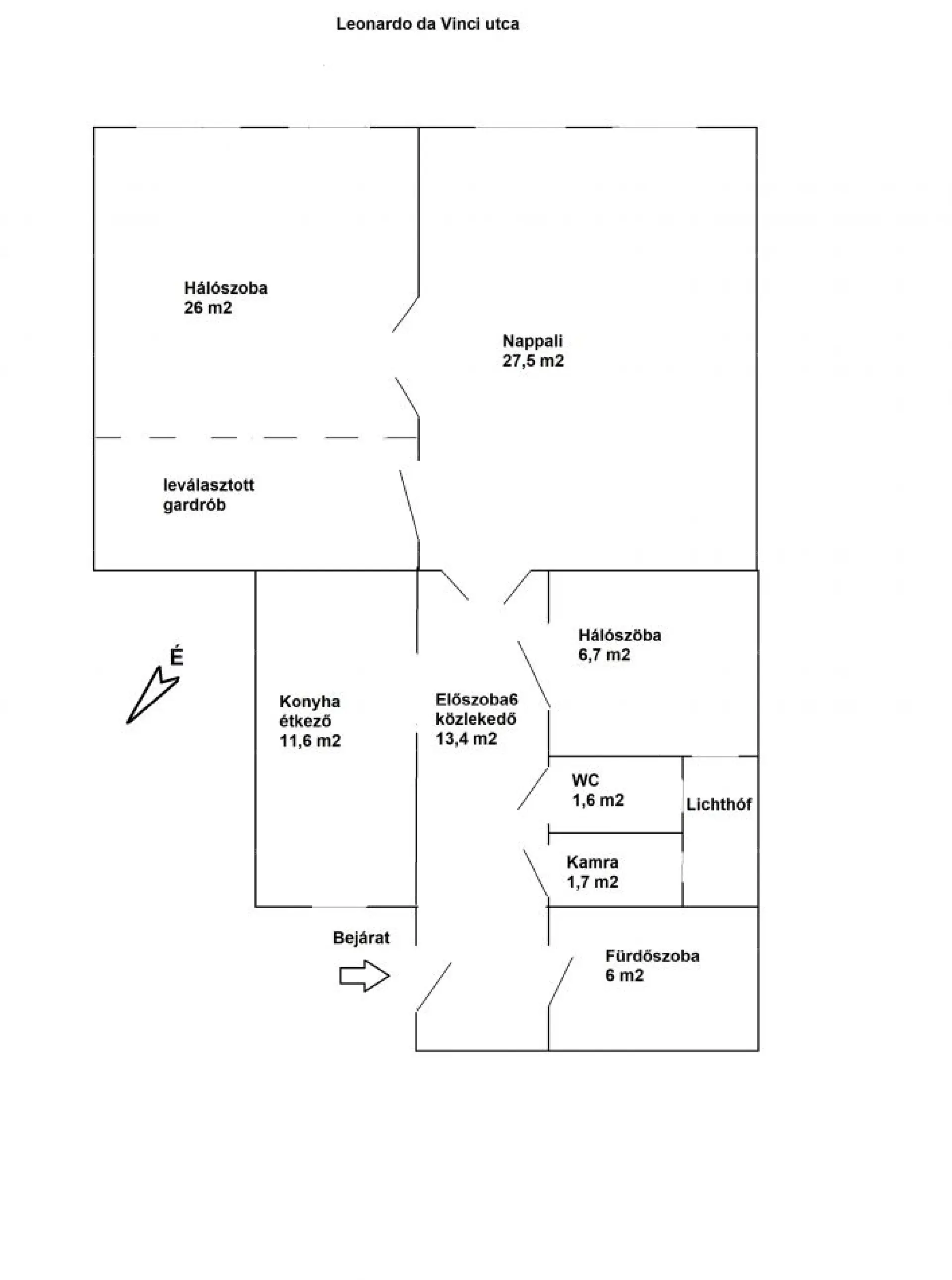
Tágas polgári lakás a belváros szívében, ahol a tér, a fény és a karakter találkozik
Budapest VIII. kerületének egyik legjobb adottságú utcájában, a Leonardo da Vinci utcában kínáljuk megvételre ezt az első emeleti, 94 m²-es, gázcirkó fűtéses lakást, azoknak, akik nem érik be a hétköznapival.
A lakás klasszikus polgári hangulatot áraszt: 370 cm-es belmagasság, tágas nappali (27,5 m²), két hálószoba, külön fürdő és WC, valamint eredeti fa ablakok, fa tokozással. A nagyobbik hálószoba 26 m²-es, melynek egy részét gardróbszobaként választották le, praktikus és elegáns megoldás. A kisebbik hálószoba 6,7 m²-es, korábban fürdőszoba volt, de így egy második, szeparált hálóhelyiség is rendelkezésre áll. A két hálószoba diszkréten a nappali két oldalán helyezkedik el, így a lakás belső elrendezése ideális családok számára is.
A konyha ablaka a belső udvarra néz, míg a két nagyobbik szoba az utcára – így a lakás világos, jól szellőző, mégis csendes. A gépészet modern: rézvezetékes elektromos hálózat, bélelt kémény, gázcirkó fűtés radiátorokon keresztül, amely a meleg vizet is biztosítja. A lakás esztétikailag felújítandó, de szerkezetileg és gépészetileg jó állapotban van – így egyéni ízlés szerint könnyedén alakítható.

Alacsony fenntartási költségek, kiváló elhelyezkedés
A közös költség mindössze 25.000 Ft havonta, a fűtés pedig csupán 10.000 Ft körül alakul – köszönhetően a vastag falaknak és a lakás kedvező pozíciójának, amelyet minden irányból szomszédos lakások határolnak. Ez nemcsak energiatakarékos, hanem gazdaságos is.

Környezet és közlekedés, a város lüktetése karnyújtásnyira
A Leonardo da Vinci utca a Palotanegyed és a Klinikák határán fekszik, egy dinamikusan fejlődő, mégis nyugodt városrészben. A környék infrastruktúrája kiváló: egyetemek, kórházak, boltok, éttermek, kávézók, kulturális intézmények mind elérhetők gyalogosan. A közlekedés kiemelkedő: pár perc sétára található a 3-as metró (Corvin negyed), valamint több villamos- és buszjárat is biztosítja a gyors kapcsolatot a belváros és más kerületek felé.

Ez az ingatlan ideális választás lehet családoknak, akik értékelik a tágas tereket, a nagy belmagasságot, és nem szeretnének magas fenntartási költségeket vállalni. De befektetőknek, fiatal pároknak vagy akár diákoknak is remek lehetőség, akik a belváros szívében keresnek karakteres, jól alakítható otthont.
Ha szeretné megtapasztalni, milyen érzés lehet itt élni, szívesen megmutatom, és garantálom, hogy már az első pillanatban otthon fogja érezni magát.
Irányár: 102.000.000 Ft
Elérhetőség: +36703833318

Térkép

Budapest, VIII. kerület

Bűnügyi térkép

Szimeth Norbert Referens
Telefonszám +3670383
abcd