https://minositettingatlanok.hu/hu/ingatlan/8498167
Ingatlancorner Kft Referens
36703911136
QR kód

Budapest, XXIII. kerület

107 millió Ft

1 182 320 Ft/m²
Alapterület
88m2
Telek
350 m²
Szobák
5

Eladó ház (ikerház)

Alapterület
88 m²
Telekterület
350 m²
Erkély terület
5 m²
Tartozik hozzá kert
Van
Szobák száma
5
Fűtés
Hőszivattyú
Ingatlan állapota
Új építésű
Építés éve
2026
Épület szintjei
2 szintes
Pince
Nincs
Tetőtér
Beépített
Lift
Nincs
Napelem
Nincs
Szigetelés
Van
Parkolóhely
Udvari beálló
Kilátás
Kertre néző
Légkondicionált
Igen
Tájolás
Dél-nyugati
Panelprogramos
Nem

Leírás

Budapest XXIII. kerületében, kiváló közlekedéssel és gyorsan fejlődő környezetben kínáljuk eladásra ezt az új építésű, magas műszaki tartalommal rendelkező ikerházat, megbízható, referenciákkal rendelkező kivitelezőtől.

Két különálló, saját telekrésszel rendelkező lakás vásárolható:

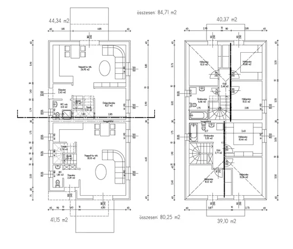
▪ Hátsó lakás: 88 m² + 5 m² erkély, telekrész: 350 m² – 107 M Ft
▪ Első lakás: 86 m² + 5 m² erkély, telekrész: 244 m² – 104 M Ft

Főbb jellemzők:
• Amerikai konyhás nappali + 4 hálószoba
• Fürdőszoba WC-vel + külön WC
• 30 N+F Porotherm falazat, 10 cm homlokzati hőszigetelés
• 20 cm födémszigetelés
• Ytong válaszfalak
• Bramac tetőcserép
• 6000 Ft/m² értékig választható hideg–meleg burkolatok
• Választható szaniterek
• Hőszivattyús fűtésrendszer padlófűtéssel

Az ingatlan céges kivitelezésben készül, igényes, gondos munkával.
Átadás várható ideje: 2026 nyár vége.

Pénzügyi előnyök:
Elérhető 3% FIX kamatozású első lakásvásárlói hitel, CSOK és CSOK Plusz konstrukciók.
Irodánk teljes körű ügyintézéssel – ügyvéd, hitelügyintéző – áll rendelkezésre.

A környék kiváló infrastruktúrával rendelkezik, a HÉV-megálló és vásárlási lehetőségek néhány percen belül elérhetők. Budapest belvárosa akár 15 perc alatt megközelíthető.

Hívjon bizalommal, akár hétvégén is! Ne maradjon le erről a kivételes lehetőségről! +36-70-409-4182
https://www.ingatlancorner.hu/Elado_ikerhaz_Budapest_XXIII_kerulet/107003694/