https://minositettingatlanok.hu/hu/ingatlan/8206625
Szimeth Norbert Referens
36703833318
QR kód

Budapest, XVIII. kerület

99.9 millió Ft

868 696 Ft/m²
Alapterület
115m2
Telek
555 m²
Szobák
4

Eladó ház (családi ház)

Alapterület
115 m²
Telekterület
555 m²
Tartozik hozzá kert
Van
Szobák száma
4
Fűtés
Gázkazán
Energetikai tanúsítvány
G
Ingatlan állapota
Felújítandó
Építés éve
1955
Épület szintjei
2 szintes
Pince
Van
Tetőtér
Beépített
Lift
Nincs
Napelem
Nincs
Szigetelés
Nincs
Parkolóhely
Udvari beálló
Kilátás
Utcai
Légkondicionált
Nem
Tájolás
Nyugati
Panelprogramos
Nem

Leírás

Bókaytelepen, a nyugalom és inspiráció szigetén, eladó egy különleges családi ház, amely nem csupán élettér, hanem egy valódi művészi menedék.

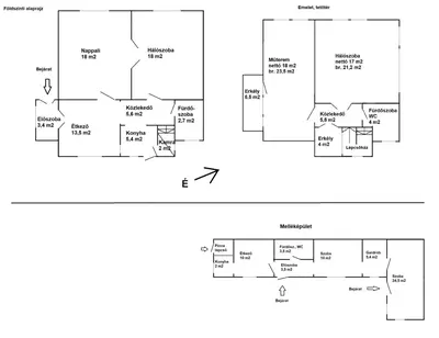
A 115 m²-es főépület tágas tereivel és egyedi atmoszférájával tökéletes környezetet biztosít az alkotáshoz és a feltöltődéshez. Négy szoba, étkező, két fürdőszoba, két erkély – mind úgy lett kialakítva, hogy harmóniát és fényt adjon a mindennapoknak.

A tetőtér igazi kincs egy festőművész által berendezett műterem, ahol a hatalmas ablakfelületeken át egész nap beáradó napfény tökéletes közeget teremt a kreatív alkotáshoz. A hálószoba pedig nem csupán pihenőhely, hanem maga a nyugodt inspiráció forrása.

A 556 m²-es, összközműves telek igazi oázis a természet szerelmeseinek: ásott kút biztosítja a kert varázsát, és a két erkélyről megcsodálhatók az évszakok festői váltakozásai. A ház 1954-ben épült masszív betonalapokra, majd 1987-ben tetőtér-beépítéses bővítésen esett át.

2017-ben egy melléképület fejlesztése is megvalósult, amely a nyári konyhát és a garázst foglalja magában, létrehozva egy kétszobás, gázkonvektoros fűtésű lakrészt – tökéletes műhelynek, vendégháznak vagy saját kis kreatív zugnak.

A kertben két gépkocsi számára elegendő parkolóhely biztosított, hogy az otthon kényelmét semmi se zavarja. A kerti eszközök és bútorok tárolására két tágas fészer áll rendelkezésünkre.

Két villanymérő és egy gázmérő gondoskodik a praktikus energiagazdálkodásról, akár gáz, akár elektromos fűtést preferálja. Jelenleg egy kombinált gázcirkó biztosítja a főépületben a ház melegét és meleg vizét.

Környezet
A Bókaytelep a kerület egyik legrégebbi városrésze, ahol jellemzően kertes házak épültek, elvétve egy-egy kisebb társasházat is lehet találni. A városrészen belül található a 16 hektáros Bókay-kert, amely a kerület egyik kedvelt, jól karban tartott közparkja Ezen a területen számos sportolásra, kikapcsolódásra, illetve szórakozásra alkalmas intézmény működik a tenisz- és focipályáktól kezdve a szabadtéri színpadon át a fedett és szabadtéri medencével rendelkező uszodáig.
Gyalogszerrel percekre több szupermarket, piac, egészségügyi intézmény, gyógyszertár, cukrászda, étterem és számos kisbolt érhető el. A kerületben bölcsődék, óvodák, általános- és középiskolák széles választéka lelhető fel.
A közeli Péterhalmi erdő nem csak kiránduláshoz, de a sportoláshoz is hatalmas teret kínál.

Közlekedés
Az ingatlan központi helyzetéből eredően nem csak a gépjárművel csatlakozhatunk gyorsan a város vérkeringésébe az Üllői úton vagy a Nagykőrösi úton keresztül, illetve az M5-ös autópálya vagy az M0-s autóút felé, de a tömegközlekedési csomópont, azaz a Szarvascsárda tér is egy-két perces sétára van csak. Ott az 50-es villamossal vagy a 136E buszjárattal érhetjük el a 3-as metrót, illetve számos más buszjárattal érhetjük el a kerület fontosabb csomópontjait, pl. a vasútállomásokat, vagy juthatunk el szomszédos kerületekbe, vagy akár Gyálra, Vecsésre is.

Ha egy inspiráló térre vágyik, ahol a művészet és az élet összefonódik, akkor ez az ingatlan Önre vár!