Budapest, XIII. kerület

44.9 millió Ft
1 548 276 Ft/m²
Alapterület
29m2
Szobák
1

Prémium hitelajánlat

Önrész
info
8 980 000 Ft
+
Hitelösszeg
info
35 920 000 Ft
=
Havi törlesztő
info
278 980 Ft/hó

Eladó lakás (tégla építésű)

Alapterület
29 m²
Tartozik hozzá kert
Nincs
Szobák száma
1
Fűtés
Gázkazán
Ingatlan állapota
Felújított
Építés éve
1950
Épület szintjei
4 szintes
Emelet
4. emelet
Pince
Nincs
Lift
Van
Napelem
Nincs
Szigetelés
Nincs
Parkolóhely
Utca, közterület
Kilátás
Udvari
Légkondicionált
Igen
Tájolás
Déli
Panelprogramos
Nem

Leírás

𝐔𝐣𝐥𝐢𝐩𝐨́𝐭𝐯𝐚́́𝐫𝐨𝐬𝐛𝐚𝐧, 𝐚 𝐕𝐢𝐬𝐞𝐠𝐫𝐚́́𝐝𝐢 𝐮𝐭𝐜𝐚́́𝐛𝐚𝐧 𝐞𝐥𝐚𝐝𝐨́ 𝐞𝐠𝐲 29 𝐦²-𝐞𝐬, 𝐟𝐞𝐤𝐯𝐨̋ 𝐠𝐚𝐥𝐞́𝐫𝐢𝐚́́𝐯𝐚𝐥 𝐤𝐢𝐚𝐥𝐚𝐤𝐢́𝐭𝐨𝐭𝐭, 𝐟𝐞𝐥𝐮́𝐣𝐢́𝐭𝐨𝐭𝐭, 𝐤𝐥𝐢𝐦𝐚𝐭𝐢𝐳𝐚́́𝐥𝐭, 𝐭𝐞𝐥𝐣𝐞𝐬𝐞𝐧 𝐛𝐮́𝐭𝐨𝐫𝐨𝐳𝐨𝐭𝐭 𝐞́𝐬 𝐠𝐞́𝐩𝐞𝐬𝐢́𝐭𝐞𝐭𝐭 𝐬𝐭𝐮́𝐝𝐢𝐨́𝐥𝐚𝐤𝐚́́𝐬, 𝐞𝐠𝐲 𝐫𝐞𝐧𝐝𝐞𝐳𝐞𝐭𝐭, 𝐥𝐢𝐟𝐭𝐞𝐬, 𝐭𝐞́𝐠𝐥𝐚𝐞́𝐩𝐢́𝐭𝐞́𝐬𝐮̋ 𝐭𝐚́́𝐫𝐬𝐚𝐬𝐡𝐚́́𝐳 4. 𝐞𝐦𝐞𝐥𝐞𝐭𝐞́𝐧.

Az ingatlan belső udvarra néz, így csendes, mégis városi környezetet biztosít, a galériás kialakításnak köszönhetően jól kihasznált, élhető terekkel rendelkezik, gázcirkó fűtéssel felszerelt, a teljes berendezés a vételár részét képezi, ezért azonnal költözhető vagy bérbe adható.

A lakás egy négyemeletes, karbantartott társasházban található, fenntartási költségei kedvezőek, a közös költség 11.000 Ft havonta, a rezsi fogyasztás szerint alakul, átlagosan körülbelül 15.000 Ft.

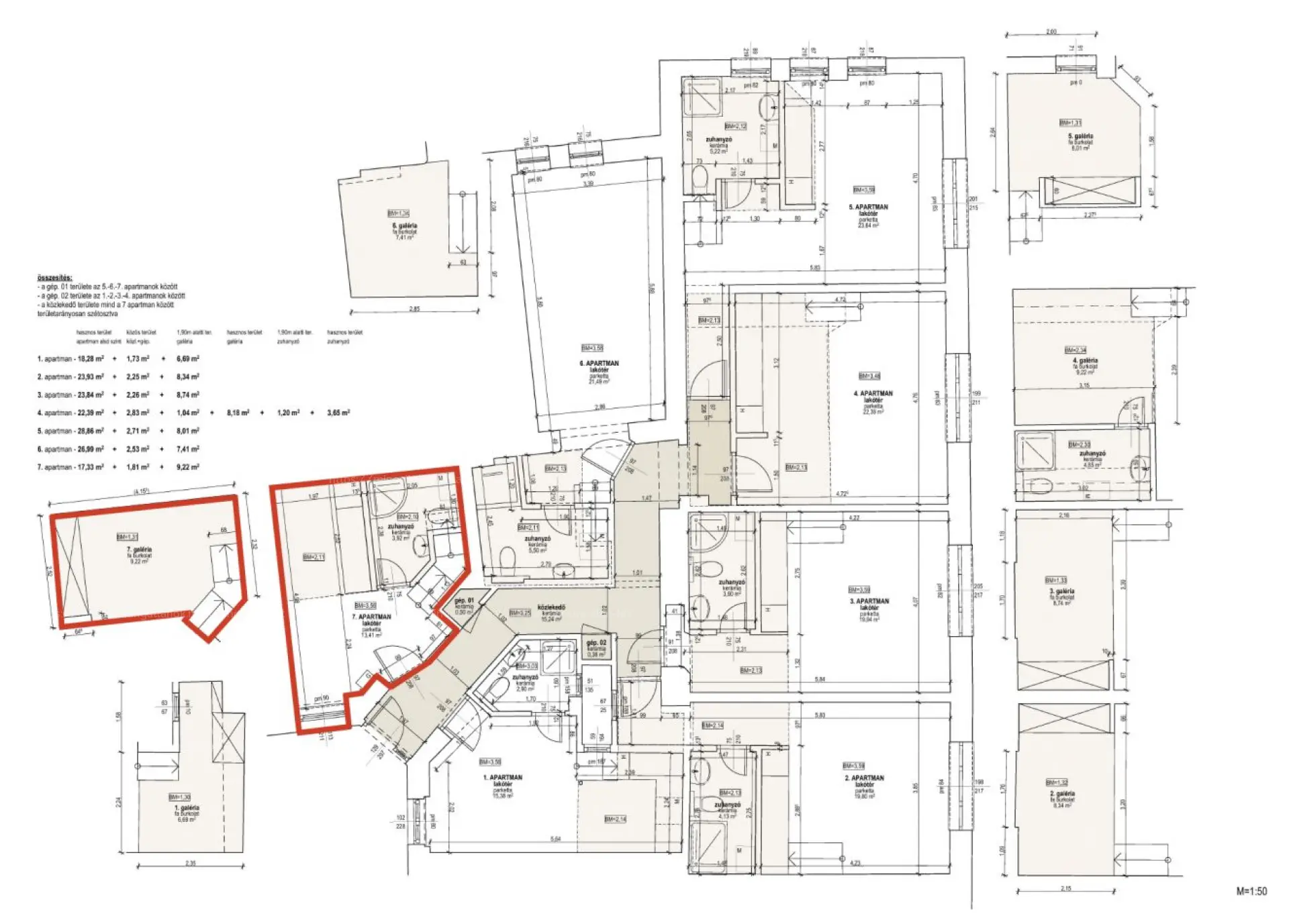
Az ingatlan 1/1 tulajdonú, tehermentes, osztatlan közös tulajdon, ügyvédi megosztással, két nagyobb lakásból kialakított, összesen hétlakásos kialakítás részeként jött létre, az alaprajzon pirossal jelölve egyértelműen beazonosítható, hogy pontosan melyik lakás kerül értékesítésre.

Elhelyezkedése kiváló, a közelben metró, villamos, a Nyugati pályaudvar, bevásárlóközpont, parkok és piac is rövid sétával elérhető, a parkolás az utcán, fizetős övezetben megoldott.

Elsősorban azoknak ajánlom, akik biztos helyen szeretnék tudni a pénzüket, akár befektetésnek, akár saját otthonként képzelik el ezt az ingatlant.

Térkép

Budapest, XIII. kerület

Bűnügyi térkép

Szentgyörgyvölgyi Ruben Referens
Telefonszám +3620400
abcd