Szolnok

36.8 millió Ft
593 548 Ft/m²
Alapterület
62m2
Szobák
3

Prémium hitelajánlat

Önrész
info
7 360 000 Ft
+
Hitelösszeg
info
29 440 000 Ft
=
Havi törlesztő
info
228 652 Ft/hó

Eladó lakás (csúszózsalus)

Alapterület
62 m²
Tartozik hozzá kert
Nincs
Szobák száma
3
Fűtés
Távfűtés egyedi méréssel
Ingatlan állapota
Jó állapotú
Építés éve
1986
Épület szintjei
5 szintes
Emelet
Földszint
Pince
Nincs
Lift
Van
Napelem
Nincs
Szigetelés
Van
Parkolóhely
Utca, közterület
Kilátás
Utcai
Légkondicionált
Igen
Tájolás
Déli
Panelprogramos
Nem

Leírás

FIX 3%-os hitel Magyarország Kormányának támogatásával.

Szolnok belvárosában, a város pezsgő, mégis élhető részén kínálunk megvételre egy 62 m²-es, földszinti lakást egy csúszózsalus, szigetelt társasházban. Az épület rendezett, akadálymentesített, lifttel felszerelt, a szintenként zárt, biztonsági ráccsal ellátott folyosók pedig biztonságos lakókörnyezetet teremtenek.

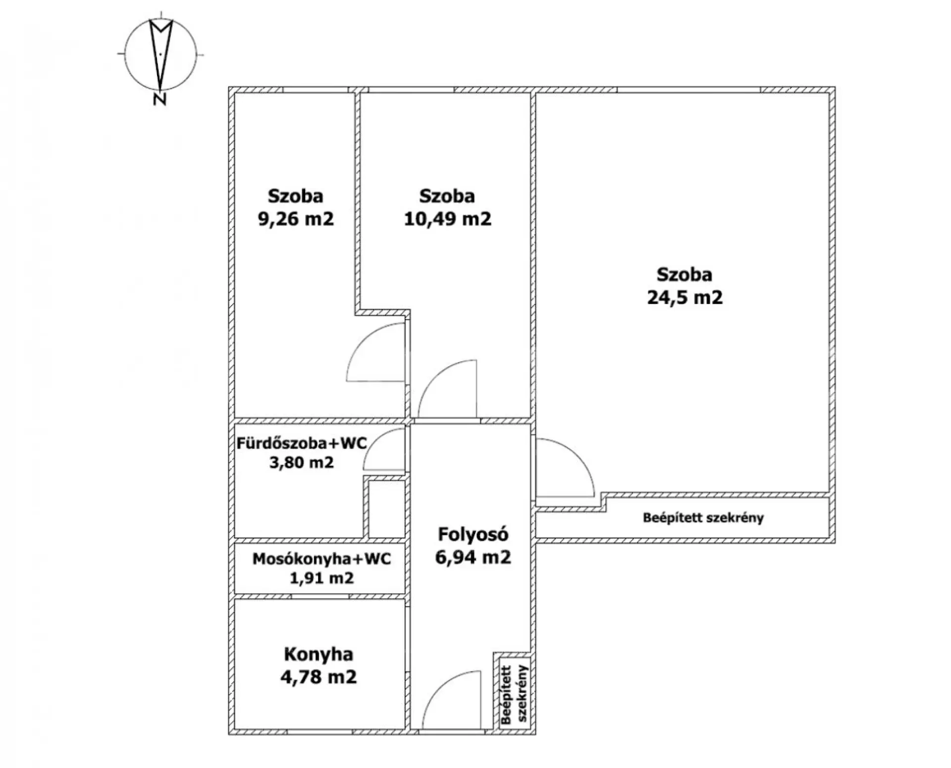
A lakás eredetileg két egész szobás volt, azonban az egyik helyiség gipszkarton fallal két félszobára lett osztva, így most egy tágas nappali/szoba és két kisebb háló áll rendelkezésre. A fürdőszoba toalettel egy helyiségben található, a konyha mellett pedig külön mosókonyha kapott helyet, amely szintén saját WC-vel rendelkezik – praktikus elrendezés mindennapi használatra.

A fűtést távfűtés egyedi mérővel biztosítja, így a fogyasztás jól követhető és szabályozható. A lakás műanyag külső nyílászárókkal szerelt, melyek szúnyoghálóval, a szobákban pedig redőnnyel is el vannak látva. A villany- és vízvezetékek cseréje megtörtént. A nappali és az egyik félszoba franciaerkélyes, mindkettőben hűtő-fűtő klíma gondoskodik a kellemes hőmérsékletről télen-nyáron.

A lakáshoz közös biciklitároló és kukatároló helyiség is tartozik. A parkolás közterületen, fizetős övezetben lehetséges, de a közvetlen szomszédságban mindig elérhető fedett, zárt parkoló bérlési lehetőség is.

A központi elhelyezkedésnek köszönhetően minden, ami a mindennapokhoz kellhet – boltok, piac, kormányablak, éttermek, buszpályaudvar, park, kulturális központ, bankok, stb. – néhány perc sétára elérhető.

Akár családok számára, akár befektetési célra keres új tulajdonosa lakást Szolnok belvárosában, ez az ingatlan kiváló választás: praktikus elrendezés, jó állapot és remek lokáció egyaránt mellette szólnak.

Az ingatlan per-, teher-, és igénymentes. Azonnal birtokba vehető.

Felkeltette érdeklődését? Hívjon bizalommal és egy előre egyeztetett időpontban, közösen meg tudjuk tekinteni az ingatlant! Finanszírozásban is tudok segíteni!

Fekete GeoRGINA
0670-316-4554

Térkép

Szolnok

Bűnügyi térkép

Fekete Sándorné Referens
Telefonszám +3670316
abcd