Eger

37.7 millió Ft
679 279 Ft/m²
Alapterület
52m2
Szobák
2
Erkély
7m2

Prémium hitelajánlat

Önrész
info
7 540 000 Ft
+
Hitelösszeg
info
30 160 000 Ft
=
Havi törlesztő
info
234 244 Ft/hó

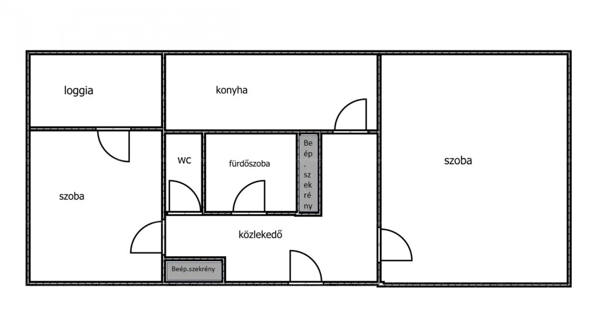
Eladó lakás (csúszózsalus)

Alapterület
52 m²
Erkély terület
7 m²
Tartozik hozzá kert
Nincs
Szobák száma
2
Fűtés
Távfűtés egyedi méréssel
Energetikai tanúsítvány
C
Ingatlan állapota
Közepes állapotú
Építés éve
1978
Épület szintjei
9 szintes
Emelet
8. emelet
Pince
Nincs
Lift
Van
Napelem
Nincs
Szigetelés
Van
Parkolóhely
Utca, közterület
Kilátás
Panorámás
Légkondicionált
Igen
Tájolás
Keleti
Panelprogramos
Nem

Leírás

Egerben a Fesővárosban, Vízimolnár utcai helyen jól szigetelt, megújított lift rendszerű épületben, két szobával rendelkező, tágas erkéllyel ellátott, széles rálátású lakás eladó.
Az otthon eredeti állapotban megőrzött, karbantartott, a kisebb szobába klíma lett telepítve.
A lakás kedvező fűtését hőmennyiségmérős, távhő biztosítja.
Figyelem, a lakás hatalmas előnye hogy a lift a földszintről indul, akár kerekésszékeseknek is jó lehetőség.

Térkép

Eger

Bűnügyi térkép

Takács Attila (MEDIUS INGATLAN) Referens
Telefonszám +3620807
abcd