Debrecen

64.9 millió Ft
781 928 Ft/m²
Alapterület
82m2
Szobák
2
Erkély
2m2

Prémium hitelajánlat

Önrész
info
12 980 000 Ft
+
Hitelösszeg
info
51 920 000 Ft
=
Havi törlesztő
info
403 248 Ft/hó

Eladó lakás (tégla építésű)

Alapterület
82 m²
Erkély terület
2 m²
Tartozik hozzá kert
Nincs
Szobák száma
2
Fűtés
Gázkonvektor
Ingatlan állapota
Felújított
Építés éve
1940
Épület szintjei
3 szintes
Emelet
1. emelet
Pince
Nincs
Lift
Nincs
Napelem
Nincs
Szigetelés
Nincs
Parkolóhely
Udvari beálló
Kilátás
Utcai
Légkondicionált
Igen
Tájolás
Déli
Panelprogramos
Nem

Leírás

Belváros közeli, 82 nm-es, erkélyes téglalakás kedvező áron SOS eladó!

Kizárólag nálunk! Kiváló ár/érték arány!

Debrecen Belváros közelében SÜRGŐSEN eladó egy 2017-ben felújított, 82 nm-es, 3 szobás, konyhaétkezős, külön fürdőszoba/wc-s kialakítású, gázkonvektoros fűtésű, műanyag nyílászáróval, 2 db hűtő-fűtő klímával felszerelt, első emeleten lévő, erkélyes téglalakás, 2 db 10 nm-es saját használatú tárolóval! A lakás fenntartási költsége minimális, a közös költség:10000 Ft.
A lakótérben felújításra kerültek a víz-, villanyvezetékek, új konvektorok, illetve új gépesített konyha lett beszerelve.
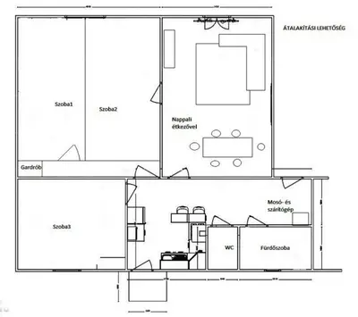
A szobák méreteiből adódóan, kis ráfordítással átalakítható Nappali + 3 szobássá.
A TH 9 lakásos, csendes, kis létszámú lakóközösséggel. Parkolás a társasház udvarán lehetséges.

Befektetésre vagy saját részre kiváló vételi lehetőség!
Az ingatlan CSOK, HITEL igénybevételével is megvásárolható, amelyhez INGYENES, teljes körű tájékoztatással állunk rendelkezésre!
BANKFÜGGETLEN HITELTANÁCSADÓNK segítségével könnyedén megtalálhatja a legjobb pénzügyi megoldást!
Az ügyintézés során BIZTONSÁGOS JOGI HÁTTERET biztosítunk SZAKIRÁNYÚ ÜGYVÉDÜNK segítségével!
Irányár: 69.9 Mft. Elérhetőségem: +36307682625

Térkép

Debrecen

Bűnügyi térkép

Tété Tünde Referens
Telefonszám +3630768
abcd