Debrecen

185 millió Ft
Telek
535 m²

Prémium hitelajánlat

Önrész
info
37 000 000 Ft
+
Hitelösszeg
info
148 000 000 Ft
=
Havi törlesztő
info
1 107 809 Ft/hó

Eladó telek (lakóövezeti telek)

Alapterület
0 m²
Telekterület
535 m²
Beépíthetőség
60%
Tartozik hozzá kert
Nincs
Pince
Nincs
Lift
Nincs
Napelem
Nincs
Szigetelés
Nincs
Légkondicionált
Nem
Panelprogramos
Nem
Villany
Telken belül
Víz
Telken belül
Gáz
Telken belül
Csatorna
Telken belül

Leírás

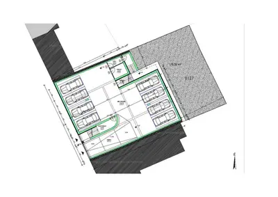
DEBRECEN, KÜLSŐVÁSÁRTÉR – 535 NM FEJLESZTÉSI TELEK 8 LAKÁSOS PROJEKTLEHETŐSÉGGEL

BERUHÁZÓI KÖRNYEZETBEN eladó egy 535 nm-es, 8 LAKÁSOS LAKÓINGATLAN építésére ALKALMAS telek. A terület előkészítettsége és a meglévő ENGEDÉLYEZÉSI STÁTUSZ racionális alapot ad egy új fejlesztéshez. A célcsoport MINDENKI, aki átlátható paraméterekkel, tényszerű keretek között keres PROJEKTINDÍTÁSI lehetőséget Debrecenben.

Főbb paraméterek:
- Telekméret: 535 nm
- Beépítési mód: ZÁRT SORÚ
- Beépíthetőség: 60%
- Legnagyobb építménymagasság: 9,5 m
- Utcafront: 17 m
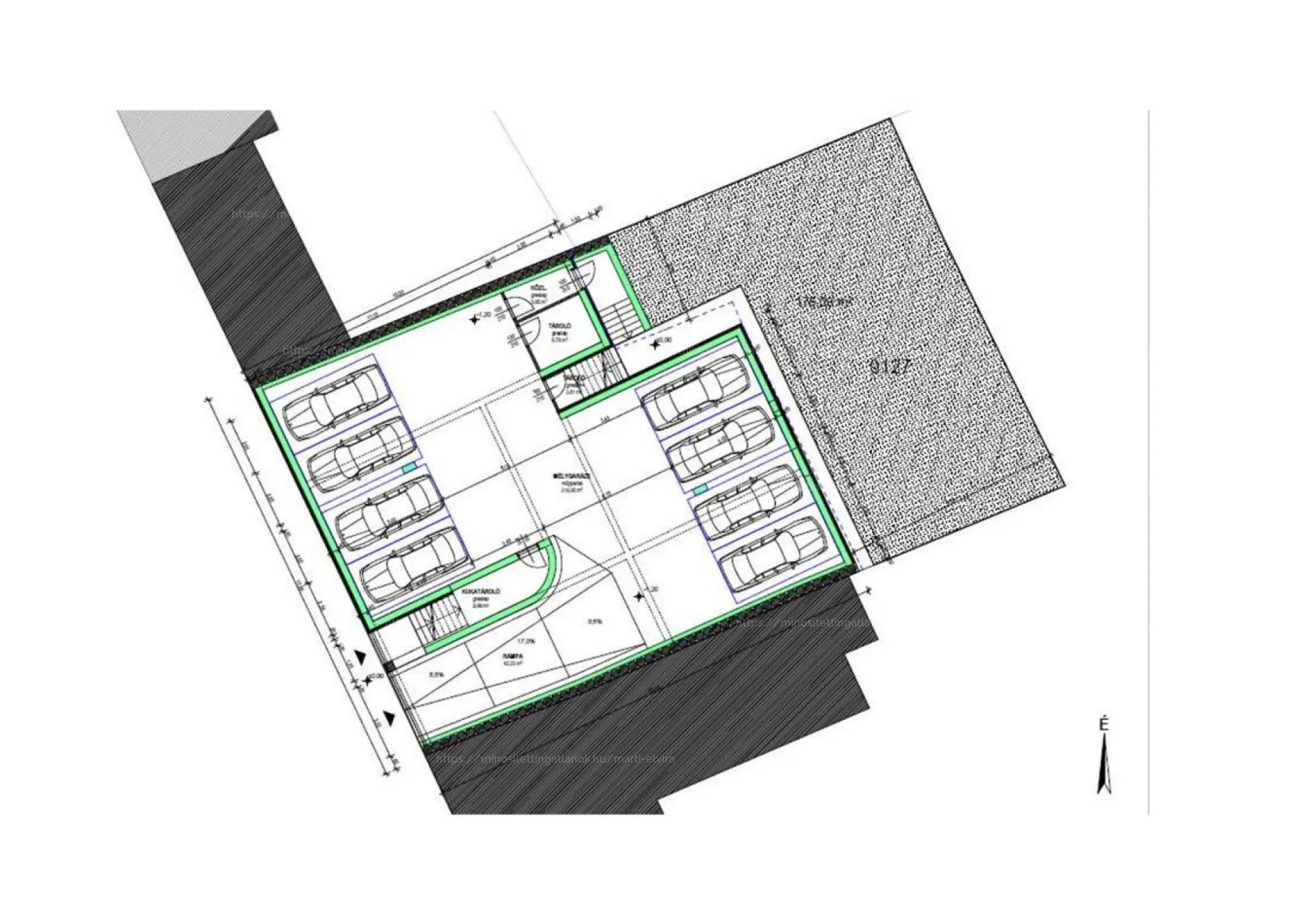
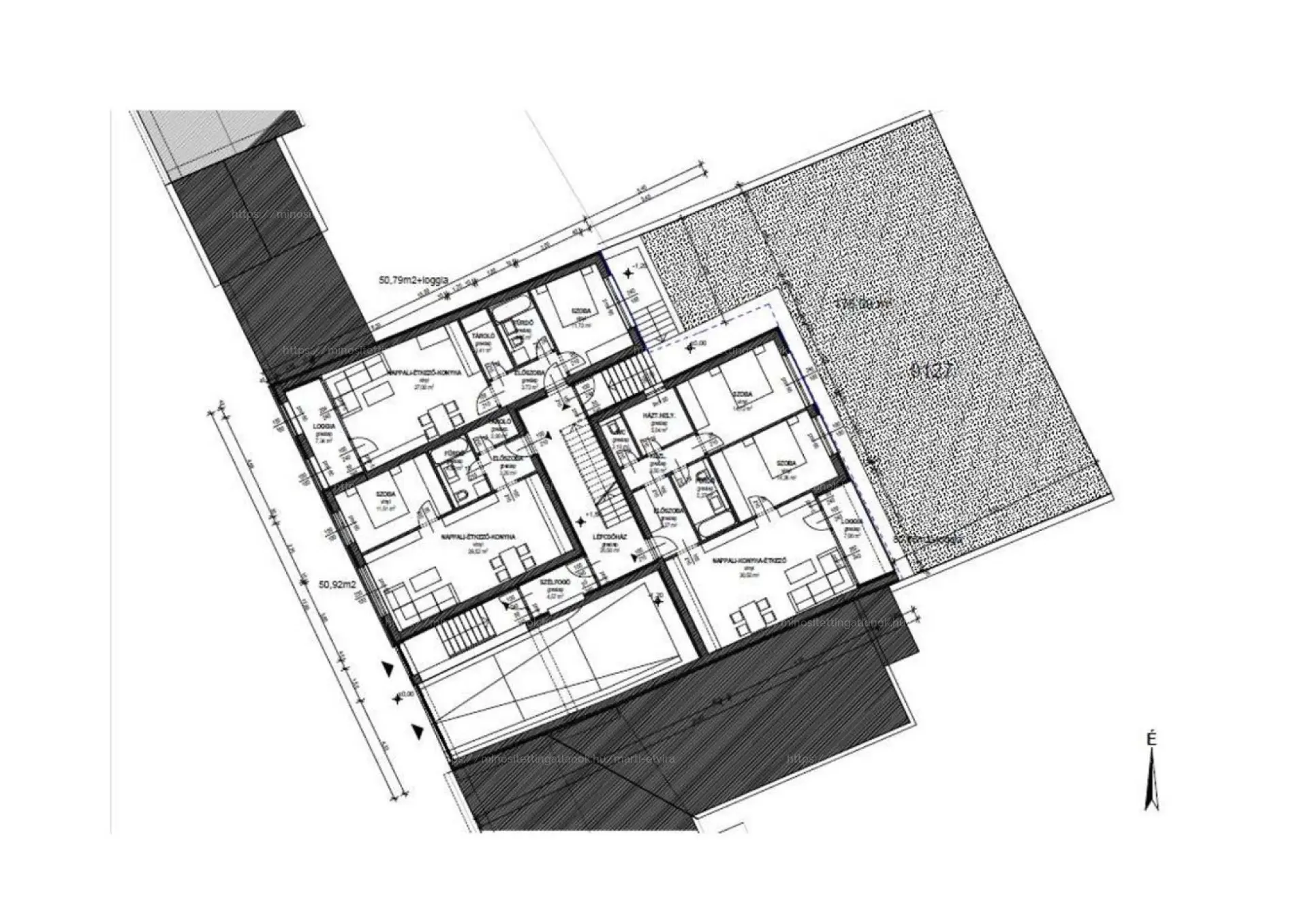
- Jelenlegi beépítés: több egységből álló, összesen 210 nm alapterületű, LEBONTANDÓ épületegyüttes
- Főépület: 120 nm, szinte teljesen ALÁPINCÉZETT, 80 nm SZUTERÉN
- Jogi helyzet: RENDEZETT TULAJDONI VISZONYOK
- AZONNAL BIRTOKBA VEHETŐ

Engedélyezési státusz és tervezés:
- TELEPÜLÉSKÉPI ENGEDÉLYEZÉS megtörtént
- BONTÁSI ENGEDÉLY rendelkezésre áll
- 8 lakásos ÉPÍTÉSZETI TERV engedélyezése FOLYAMATBAN
- STATIKAI TERV készül

A helyszín Debrecen külsővásártéren található, a telek adottságai és a SZABÁLYOZÁSI KERETEK egy 8 LAKÁSOS LAKÓÉPÜLET kialakítását teszik lehetővé. A meglévő engedélyek és a folyamatban lévő tervek a FEJLESZTÉSRE ELŐKÉSZÍTETT állapotot támogatják, a birtokbavetel pedig AZONNALI.

További információért és megtekintés egyeztetéséhez keressen az elérhetőségen:
+36 30 339 1481

Térkép

Debrecen

Bűnügyi térkép

Marti Elvira Referens
Telefonszám +3630339
abcd