https://minositettingatlanok.hu/hu/ingatlan/7596333
Szentgyörgyvölgyi Ruben Referens
36204006247
QR kód

Budapest, XIII. kerület

53.5 millió Ft

1 528 571 Ft/m²
Alapterület
35m2
Szobák
1

Eladó lakás (tégla építésű)

Alapterület
35 m²
Tartozik hozzá kert
Nincs
Szobák száma
1
Fűtés
Gázkazán
Ingatlan állapota
Felújított
Építés éve
1950
Épület szintjei
4 szintes
Emelet
4. emelet
Pince
Nincs
Lift
Van
Napelem
Nincs
Szigetelés
Nincs
Parkolóhely
Utca, közterület
Kilátás
Utcai
Légkondicionált
Igen
Tájolás
Déli
Panelprogramos
Nem

Leírás

𝐔́𝐣𝐥𝐢𝐩𝐨́𝐭𝐯𝐚́́𝐫𝐨𝐬𝐛𝐚𝐧, 𝐚 𝐕𝐢𝐬𝐞𝐠𝐫𝐚́́𝐝𝐢 𝐮𝐭𝐜𝐚́́𝐛𝐚𝐧 𝐞𝐥𝐚𝐝𝐨́ 𝐞𝐠𝐲 35 𝐦²-𝐞𝐬, 𝐟𝐞𝐤𝐯𝐨̋ 𝐠𝐚𝐥𝐞́𝐫𝐢𝐚́́𝐯𝐚𝐥 𝐤𝐢𝐚𝐥𝐚𝐤𝐢́𝐭𝐨𝐭𝐭, 𝐟𝐞𝐥𝐮́𝐣𝐢́𝐭𝐨𝐭𝐭, 𝐤𝐥𝐢𝐦𝐚𝐭𝐢𝐳𝐚́́𝐥𝐭, 𝐭𝐞𝐥𝐣𝐞𝐬𝐞𝐧 𝐛𝐮́𝐭𝐨𝐫𝐨𝐳𝐨𝐭𝐭 𝐞́𝐬 𝐠𝐞́𝐩𝐞𝐬𝐢́𝐭𝐞𝐭𝐭 𝐬𝐭𝐮́𝐝𝐢𝐨́𝐥𝐚𝐤𝐚́́𝐬, 𝐞𝐠𝐲 𝐫𝐞𝐧𝐝𝐞𝐳𝐞𝐭𝐭, 𝐥𝐢𝐟𝐭𝐞𝐬, 𝐭𝐞́𝐠𝐥𝐚𝐞́𝐩𝐢́𝐭𝐞́𝐬𝐮̋ 𝐭𝐚́́𝐫𝐬𝐚𝐬𝐡𝐚́́𝐳 4. 𝐞𝐦𝐞𝐥𝐞𝐭𝐞́𝐧.

Az ingatlan belső udvarra néz, így csendes, mégis városi környezetet biztosít, a galériás kialakításnak köszönhetően jól kihasznált, élhető terekkel rendelkezik, gázcirkó fűtéssel felszerelt, a teljes berendezés a vételár részét képezi, ezért azonnal költözhető vagy bérbe adható.

A lakás egy négyemeletes, karbantartott társasházban található, fenntartási költségei kedvezőek, a közös költség 11.000 Ft havonta, a rezsi fogyasztás szerint alakul, átlagosan körülbelül 15.000 Ft.

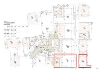
Az ingatlan 1/1 tulajdonú, tehermentes, osztatlan közös tulajdon, ügyvédi használati megosztással, két nagyobb lakásból kialakított, összesen hétlakásos kialakítás részeként jött létre, az alaprajzon pirossal jelölve egyértelműen beazonosítható, hogy pontosan melyik lakás kerül értékesítésre.
Banki hitel is felvehető rá.

Elhelyezkedése kiváló, a közelben metró, villamos, a Nyugati pályaudvar, bevásárlóközpont, parkok és piac is rövid sétával elérhető, a parkolás az utcán, fizetős övezetben megoldott.

Elsősorban azoknak ajánlom, akik biztos helyen szeretnék tudni a pénzüket, akár befektetésnek, akár saját otthonként képzelik el ezt az ingatlant.