https://minositettingatlanok.hu/hu/ingatlan/7509127
Fekete Sándorné Referens
36703163964
QR kód

Orosháza

79.9 millió Ft

205 398 Ft/m²
Alapterület
360m2
Telek
536 m²
Szobák
7

Eladó ház (családi ház)

Alapterület
360 m²
Telekterület
536 m²
Erkély terület
58 m²
Tartozik hozzá kert
Van
Szobák száma
7
Fűtés
Gázkazán
Ingatlan állapota
Jó állapotú
Építés éve
1998
Épület szintjei
Földszintes
Pince
Nincs
Tetőtér
Beépített
Lift
Nincs
Napelem
Nincs
Szigetelés
Van
Parkolóhely
Önálló garázs
Kilátás
Kertre néző
Légkondicionált
Igen
Tájolás
Keleti
Panelprogramos
Nem

Leírás

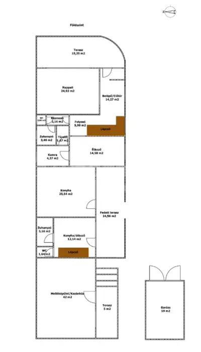
Eladásra kínáljuk ezt az Orosháza központi részén, a Móricz Zsigmond utcában található két generációs otthont vagy üzleti célú hasznosításra alkalmas ingatlant, melyben akár leendő tulajdonosa több lakást is kialakíthat.

Az ingatlan 536 m2-es telken helyezkedik el. A főépület és a vele közvetlenül egybeépített további lakrész is kétszintes, a melléképület/kazánház alatt pedig egy pince is található, valamint a kazánház tetőre is beépíthető.

A 165 m2-es főépületben 4 szoba, tágas konyha, kamra, 2 fürdőszoba, 2 különálló WC helyiség, nappali és közlekedő található. Az emeletre való feljutást a kézzel faragott fa lépcső biztosítja. A fenti két szobából nyílik a közel 9 m2-es erkély. Az épülethez egy előkertre és egy udvarra néző terasz is tartozik, melyek összes alapterülete 44 m2.

Az udvari teraszról nyílik a második, 62 m2-es lakrész, melyben lent egy konyha, WC, fürdőszoba; az emeleten pedig 2 szoba áll rendelkezésre. A jelenleg melléképületként/kazánházként funkcionáló rész pedig 80 m2 a pinceszinttel együtt.

A masszív szerkezetű, erős alapokon álló családi ház a 80-as évek közepén épült szigetelt blokktéglából (minden téglába építkezéskor nikecell lett rakva). Gyönyörű terméskő burkolatot, illetve 2023 nyarán nemesvakolatot kapott, valamint a tetőmosás is megtörtént. Az ingatlan teljeskörű belső festésen esett át és a kerítés is új.

Villanyóraszekrény felújítása megtörtént, ideértve kis megszakítók, fi relé, stb. A teljes ingatlanban termosztátos központi fűtés biztosítja a ház melegét gázkazánról, illetve van vegyes tüzelésű kazán is. A fő ház földszintjén a hűtéséről klíma gondoskodik.

Elektromos nagykapu biztosítja az autóval történő beállást és egy zárt garázs is rendelkezésre áll.

Az ingatlantól 20m-re található az óvoda, 500m méterre a Penny és több élelmiszerbolt, üzlet.

Ez az ingatlan remek lehetőség akár többgenerációs otthonra vágyó nagy családosoknak, vagy hosszú távú hozamot kereső befektetőknek is.

Felkeltette az érdeklődését? Hívjon bizalommal és egy előre egyeztetett időpontban közösen meg tudjuk tekinteni az ingatlant. A finanszírozásban is tudok segíteni!

A Fundamenta Ingatlan kínálatában megtalálható ingatlanok finanszírozásához, úgy mint ehhez az ingatlanhoz is, a vevők részére a piacinál kedvezőbb kölcsönt tudunk biztosítunk, melynek ügyintézésében állok rendelkezésére.

Irányár 79.900.000 ft

Fekete Georgina
0670/316-4554