Budapest

73.9 millió Ft
1 086 765 Ft/m²
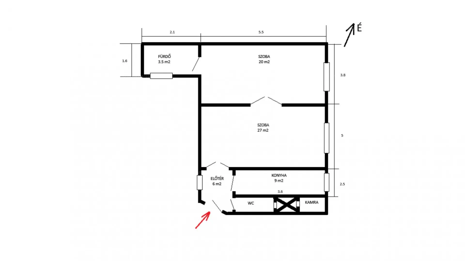
Alapterület
68m2
Szobák
2

Prémium hitelajánlat

Önrész
info
14 780 000 Ft
+
Hitelösszeg
info
59 120 000 Ft
=
Havi törlesztő
info
459 168 Ft/hó

Eladó lakás (tégla építésű)

Alapterület
68 m²
Tartozik hozzá kert
Nincs
Szobák száma
2
Fűtés
Gázkonvektor
Ingatlan állapota
Felújítandó
Építés éve
1935
Épület szintjei
4 szintes
Emelet
3. emelet
Pince
Nincs
Lift
Van
Napelem
Nincs
Szigetelés
Nincs
Parkolóhely
Utca, közterület
Kilátás
Utcai
Légkondicionált
Nem
Tájolás
Észak-keleti
Panelprogramos
Nem

Leírás

BEFEKTETŐK, FELÚJÍTÓK ez a TI lakásotok!

VIII. Népszínház utcában, liftes társasház 3. emeleti FELÚJÍTANDÓ, 68 m2-es 2 szobás lakását ajánlom figyelmébe.

Nézze meg a videót!
https://www.youtube.com/watch?v=Qp-Aeaj7nmg

Az ingatlan hitelre is megvehető, éljen a lehetőséggel, hívjon most! 0670/456-1140

Az ablakokat és a bejárati ajtót kb. 2015-ben lecserélték, fűtése gázkonvektor és Héra.
A konyha-kamra átalakításával, remek nappali + 2 szobás lakást lehet kialakítani.

A társasház folyamatosan karbantartott, gondos lakóközösséggel.

Tehermentes, jogilag rendezett, azonnal birtokba vehető! 0670-456-1140

Térkép

Budapest

Bűnügyi térkép

Siklói György
Siklói György Referens
Telefonszám +3670456
abcd