https://minositettingatlanok.hu/hu/ingatlan/6789355
V&H KFT Referens
36309941783
QR kód

Siófok

145.9 millió Ft

1 122 308 Ft/m²
Alapterület
130m2
Szobák
5

Eladó lakás (tégla építésű)

Alapterület
130 m²
Tartozik hozzá kert
Van
Szobák száma
5
Fűtés
Hőszivattyú
Energetikai tanúsítvány
A
Ingatlan állapota
Új építésű
Építés éve
2025
Épület szintjei
2 szintes
Emelet
Földszint
Pince
Nincs
Lift
Nincs
Napelem
Nincs
Szigetelés
Van
Parkolóhely
Udvari beálló
Kilátás
Kertre néző
Légkondicionált
Igen
Tájolás
Nyugati
Panelprogramos
Nem

Leírás

Új tulajdonosára vár egy Családi ikerház Siófok, legfrekventáltabb kertvárosi részén.

A kivitelező több évtizedes múlttal rendelkezik Siófokon, mely referenciák megtekinthetőek, kiváló minőségben és magas műszaki tartalommal építi házait.

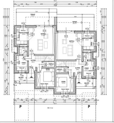
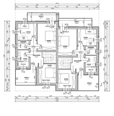
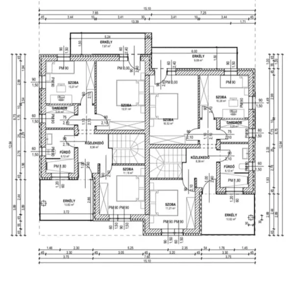
A kétszintes családi ház jellemzői:

- 130 m2 alapterület, 20 m2 terasz, 2 erkély az emeleten
- 4 teljes értékű hálószoba, 1 méretes amerikai-konyhás nappali, 2 fürdőszoba tusolóval és WC-vel,
- háztartási helyiség, gardrób, tároló, közlekedő
- A ház fűtése hőszivattyús padlófűtéssel megoldva, plusz fan-coil felszerelve.

Műszaki tartalom:
Falazat 30-NF Leier tégla 15cm Grafitos Dryvit, műgyantás vakolat,1,5mm.
Födém: Tűzálló gipszkarton, mennyezet 30cm Hőszigetelés.
Tető: Lapos tető, szigetelve
Csatorna – színes horganyzott lemez csatorna, lefolyókkal
Ablakok: Rehau, műanyag, 0,6 kw 3rétegű üvegezés/ Fehér/
Párkányok: szürkés gránit párkány: belsőpárkány műanyag fehér párkány.
Ajtók: belső ajtók fóliázott, utólag beépített (bruttó 48.000FT/db.-ig.
Burkolatok: fürdő ajtó magasságig burkolva, bruttó 5,000ft/m2, (laminált és hidegburkolat is) A Bruttó ár 27% áfatartalmat jelent)
Festés. Glettelt falak, és fehér diszperziós festés.
Villanyszerelés: 4db aljzat minden szobában, külső villany. oldalt, és hátul.
Fűtés, meleg víz: , Daikin, vagy Mitsubishi levegő Hőszivattyú meleg víz tartállyal padló fűtéssel és 1db Fan-coil hűtéssel. (H-méréssel.)
Fürdő szerelvény: Alföldi WC és Geberit tartály
Fürdőben zuhany kabin vagy kád.
Alföldi Mosdó (nem szekrényes),

Kert és udvar: Nem Parkosított (letisztított)

Természetesen jelenlegi állapotban még választható burkolatok, szerelvények !

Opció:
Konyha bútort, konyhai csaptelepet, lámpákat, beépített szekrényt, az ár nem tartalmaz. Lámpák felszerelése 5.500 ft/db.,
Alumínium Redőny (motoros): Ablakokra és erkélyajtóra: 1.400 000 Ft
Szúnyogháló: Igény szerint felmérés után fenti ár nem tartalmazza!
Lámpák, kapcsolók felszerelése: 5000 Ft/db


- Az ingatlan alkalmas az állami támogatások (CSOK, Babaváró) igénybevételére.

- Az ingatlan elhelyezkedése kiváló, hiszen zöldövezeti helyen, Siófok nyugodt részen található. Intézmények (iskola, óvoda), gyógyszertár, bevásárlási lehetőség és a Balaton-part is pár perc alatt elérhető.

Kiválóan alkalmas állandó lakhatásra és nyaralónak is.

- Az ingatlan 2025 év tavaszán birtokba vehető!

Jöjjön el és győződjen meg róla, hogy ez a legkiválóbb otthon lehet az Ön számára!
Ár:134,9 Millió Forint

Várom megkeresését a hét minden napján!

+36 70 454 1267