Nyíregyháza

125 millió Ft
360 231 Ft/m²
Alapterület
347m2

Prémium hitelajánlat

Önrész
info
25 000 000 Ft
+
Hitelösszeg
info
100 000 000 Ft
=
Havi törlesztő
info
776 672 Ft/hó

Eladó Üzlet (egyéb üzlethelyiség)

Alapterület
347 m²
Tartozik hozzá kert
Nincs
Fűtés
Gázkazán
Ingatlan állapota
Jó állapotú
Építés éve
2000
Épület szintjei
2 szintes
Emelet
Földszint
Pince
Nincs
Lift
Nincs
Napelem
Nincs
Szigetelés
Nincs
Légkondicionált
Igen
Panelprogramos
Nem

Leírás

Kivételes befektetési lehetőség Nyíregyházán!

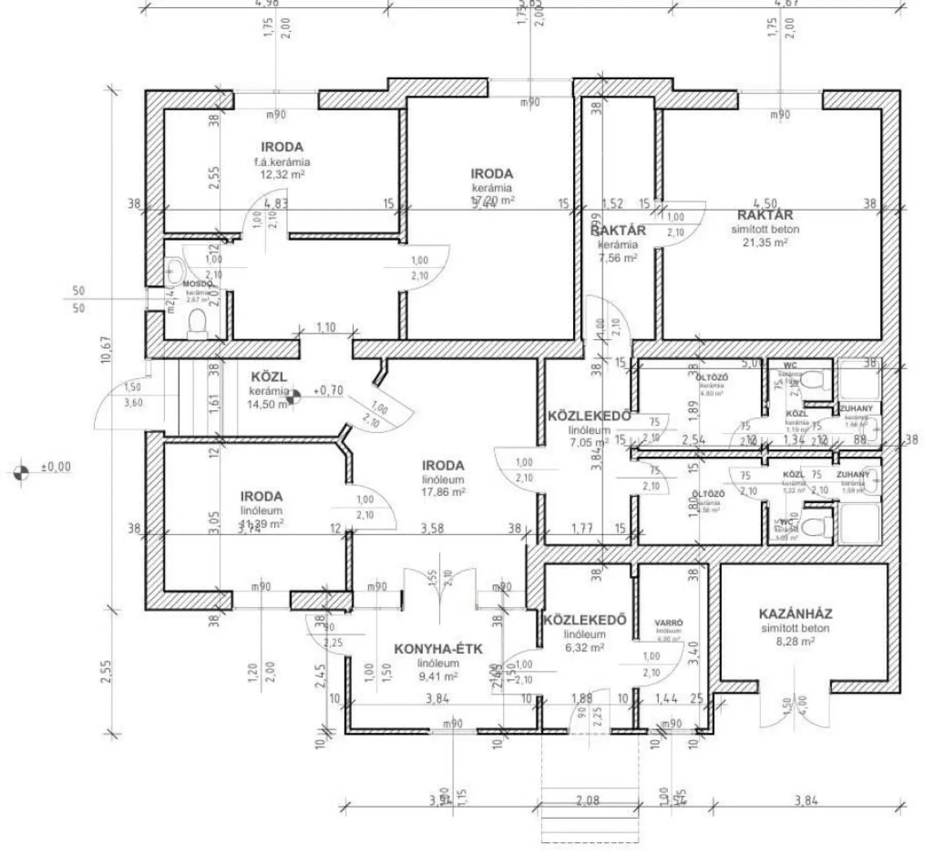
Eladó egy 1032 m2-es telken álló, 347 m2 hasznos alapterületű, többcélú üzleti ingatlan a Megyei Kórház közelében, belvárosközeli elhelyezkedéssel.

A telek 40%-ban beépíthető, 7,5 m építménymagasságig, így a jövőben akár ~1300 m2 új épület is kialakítható.

Az udvarban több autó parkolására van lehetőség.

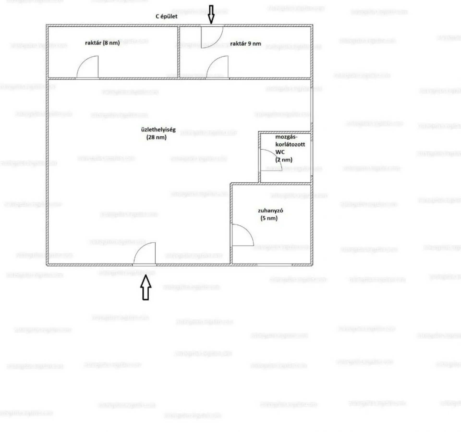
Az ingatlan három külön épületből áll:
• Utcafronti főépület (165 m2): irodahelyiségek, rendelő, tárgyaló, öltözők, váró, teakonyha, étkező, raktár
• Udvari épület (52 m2): üzlet, kiszolgálóhelyiség, akadálymentes WC, raktár
• Hátsó épület (130 m2): jelenleg műhelyként funkcionál
Igény esetén a több mint 20 éves múlttal rendelkező, tiszta, hitel- és pályázatképes céggel együtt is megvásárolható.
Felhasználási lehetőségek:
Magánklinika
Egészség- vagy rekreációs központ
Irodaház vagy szolgáltató központ

Irányár: 125 millió Ft
Érdeklődni: + 36 30 5676676

Ez az ingatlan nemcsak jelenleg értékes, hanem jelentős fejlesztési potenciált is kínál.

Térkép

Nyíregyháza

Bűnügyi térkép

Kristóf-Képes Dóra Lilla Referens
Telefonszám +3630567
abcd