Bátonyterenye

41.9 millió Ft
147 018 Ft/m²
Alapterület
260m2
Telek
1238 m²
Szobák
4

Prémium hitelajánlat

Önrész
info
8 380 000 Ft
+
Hitelösszeg
info
33 520 000 Ft
=
Havi törlesztő
info
260 340 Ft/hó

Eladó ház (családi ház)

Alapterület
260 m²
Telekterület
1238 m²
Erkély terület
50 m²
Tartozik hozzá kert
Van
Szobák száma
4
Energetikai tanúsítvány
C
Ingatlan állapota
Újszerű
Építés éve
1995
Épület szintjei
2 szintes
Pince
Van
Tetőtér
Beépíthető
Lift
Nincs
Napelem
Nincs
Szigetelés
Van
Parkolóhely
Önálló garázs
Kilátás
Udvari
Légkondicionált
Igen
Tájolás
Déli
Panelprogramos
Nem

Leírás

Bátonyterenyén, a Rákóczi utcában eladó:
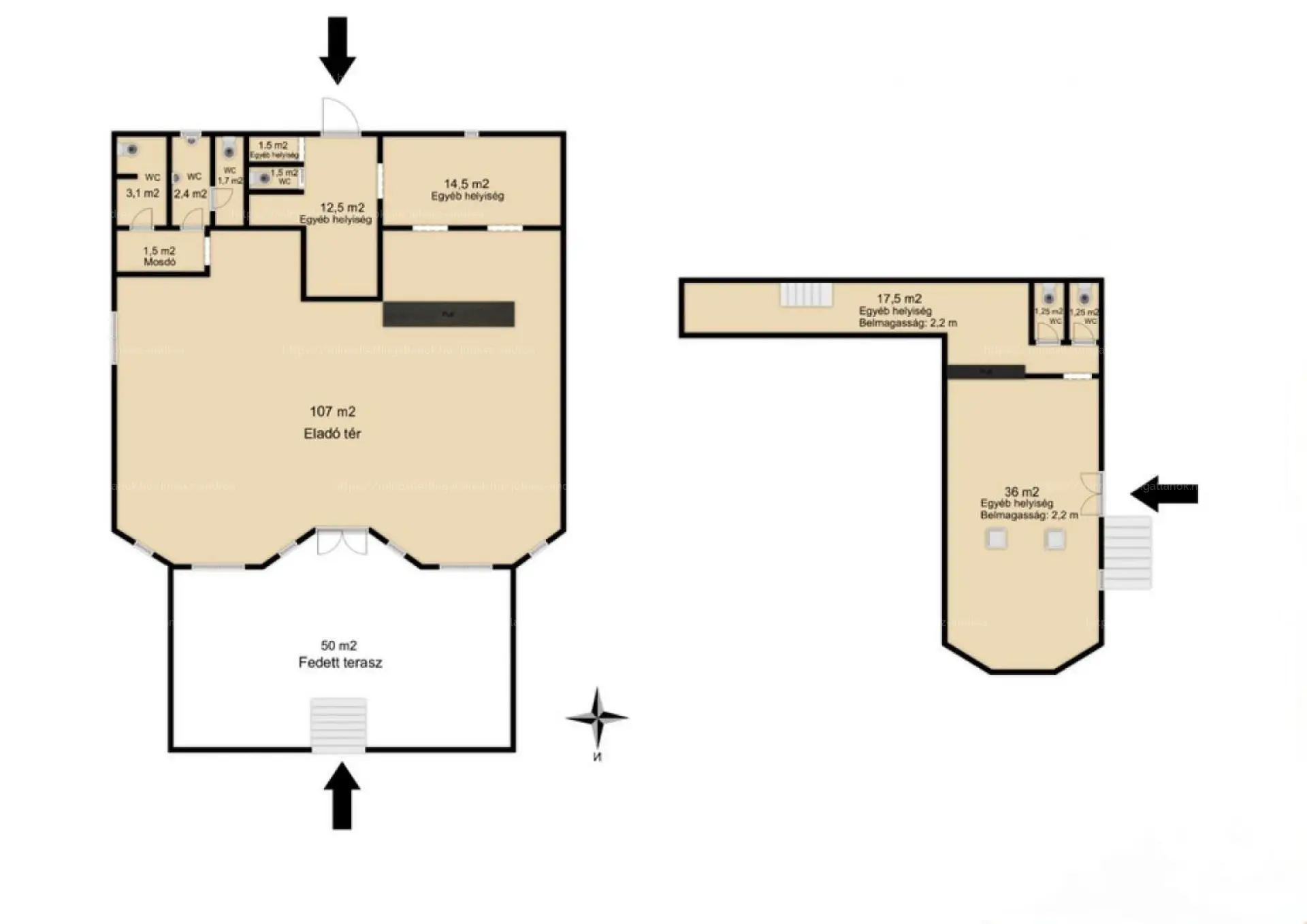
-210 m²-es családi ház
-50 m²-es terasz,
-54 m²-es félszuterén wellness résszé alakítható helyiség
-20 m²-es garázs
-180 m²-es beton alapon nyugvó több funkciós csarnok
-A teljes hasznos alapterület összesen 260 m², így a ház tágas életteret biztosít akár nagyobb családok részére is.

Felszereltség és műszaki jellemzők:
-Padlófűtés és gáz (cirkó) fűtési rendszer
-5,6 kW teljesítményű hűtő/fűtő klíma
-3 elszívó nyílással rendelkező levegőztető rendszer
-10 cm-es hőszigetelés, műanyag nyílászárók, cseréptető
-Térkövezett kert és udvar, amely rendezett megjelenésű és könnyen karbantartható.

Belmagasság:
-Fő szint: 2,5 m – kényelmes, világos terek
-Szuterén: 2,2 m – ideális munkaterület vagy tároló

Lokáció
Az ingatlan Bátonyterenye egyik jól megközelíthető részén, a Rákóczi utcában található, kiváló közlekedési adottságokkal:
-buszmegálló néhány méterre,
-vasútállomás kb. 5 perc sétára.
-A környék csendes, mégis közel van minden fontos szolgáltatáshoz.
-A kastélykert pár perces sétával elérhető, tökéletes hely a kikapcsolódásra és családi sétákra.

Sokoldalú lehetőségek – otthon és vállalkozás egy helyen

Irodánk minden kedves új és régi ügyfelének szakszerű hitelügyintézést biztosít.

Ha felkeltettem érdeklődését, hívjon bizalommal és nézzük meg együtt az ingatlant.

Térkép

Bátonyterenye

Bűnügyi térkép

Juhász Andrea Referens
Telefonszám +3670662
abcd