Vácrátót

89.9 millió Ft
1 033 333 Ft/m²
Alapterület
87m2
Telek
1025 m²
Szobák
3

Prémium hitelajánlat

Önrész
info
17 980 000 Ft
+
Hitelösszeg
info
71 920 000 Ft
=
Havi törlesztő
info
558 582 Ft/hó

Eladó ház (családi ház)

Alapterület
87 m²
Telekterület
1025 m²
Tartozik hozzá kert
Van
Szobák száma
3
Fűtés
Gázkazán
Ingatlan állapota
Jó állapotú
Építés éve
1950
Épület szintjei
Földszintes
Pince
Nincs
Tetőtér
Beépíthető
Lift
Nincs
Napelem
Van
Szigetelés
Van
Parkolóhely
Önálló garázs
Kilátás
Kertre néző
Légkondicionált
Igen
Tájolás
Déli
Panelprogramos
Nem

Leírás

Szereti a KERTET és a TISZTA levegőt? Várjuk Vácrátóton, a BOTANIKUS KERT közelében!
Hitellel is megvehető, éljen most a lehetőséggel!!!

Nézze meg a videót!
https://www.youtube.com/watch?v=1C35O93phmI

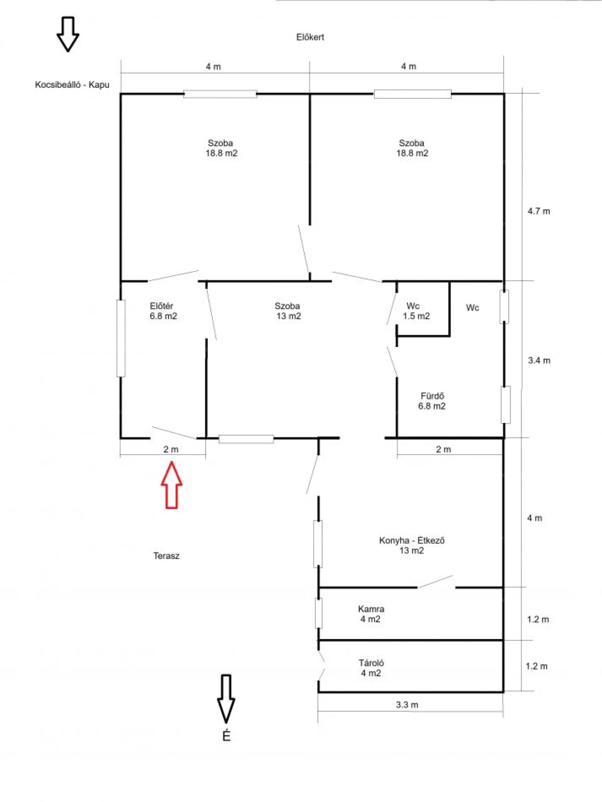
Budapesttől kb. 30 km-re, könnyen megközelíthető Vácrátót, ahol eladásra kerül ez a részben felújított CSALÁDI HÁZ, közvetlen a Botanikus Kert mellett.

1025 m2-es telken található az 60-as években épült „Kádár-kocka” ház, mely felújítása 2017-ben kezdődött. A felújítás során újjáépítették a konyhát, kamrát és garázst. A konyha 6 cm szigetelést is kapott és a ház lábazat szigetelése is megtörtént, csapadék elvezetéssel együtt.

Egyszintes, 87 m2-es, 3 szoba, étkezős konyha, fürdőszoba + wc és külön wc, előtér, kamra és tároló elosztással.
A kb. 60 m2-es 2 állásos garázs tetejére 5.5 Kwh-os NAPELEM került 2020-ban. Azóta csak az elszámolás értesítő jön, fizetni nem kell az áramért!

Új elektromos-víz-gáz vezetékeket továbbá KOMBICIRKÓT is kapott, mely biztosítja a PADLÓFŰTÉST és a meleg víz ellátást is. A komfort fokozása érdekében radiátorokat és hűtő-fűtő KLÍMÁKAT (2 db) is felszereltek.

A ház betonalapon nyugszik, falai 75 cm-es vályogból készültek, tégla sarkokkal, fafödémmel. A kapuk elektromos nyitással rendelkeznek, a ház megvilágítását alkonykapcsoló biztosítja.

Az ingatlan tehermentes, jogilag rendezett, CSOK+ hitellel is megvehető! Hívjon a 0670-456-1140 telefonon.

Térkép

Vácrátót

Bűnügyi térkép

Siklói György
Siklói György Referens
Telefonszám +3670456
abcd