Budapest, III. kerület, Zemplén Győző utca

Minősített Ingatlan
65.9 millió Ft
1 209 174 Ft/m²
Alapterület
54m2
Szobák
2
Erkély
1m2

Prémium hitelajánlat

Önrész
info
13 180 000 Ft
+
Hitelösszeg
info
52 720 000 Ft
=
Havi törlesztő
info
409 461 Ft/hó

Eladó lakás (panel)

Rezsiköltség
20 ezer Ft/hó
Közös költség
16 Ft/hó
Alapterület
54 m²
Erkély terület
1 m²
Tartozik hozzá kert
Nincs
Szobák száma
2
Fűtés
Távfűtés egyedi méréssel, Hűtő-fűtő klíma
Energetikai tanúsítvány
C
Ingatlan állapota
Felújított
Építés éve
2001-2010
Épület szintjei
10 szintes
Emelet
9. emelet
Komfort
Összkomfortos
Lift
Van
Akadálymentesített
Részben
Szigetelés
Van
Szigetelés vastagsága
15 cm
Parkolóhely
Utca, közterület
Parkoló használata
Ingyenes övezet
Kilátás
Panorámás
Fürdő és WC
Külön
Belmagasság
3 méternél alacsonyabb
Légkondicionált
Igen
Tájolás
Déli
Panelprogramos
Igen

Leírás

Figyelem! Az ingatlan várható birtokbaadási ideje 2026.11.30-a. Szerződni, foglalózni lehet a mostani áron, de az átadás várhatóan 2026.11.30-án lesz.

III. ker. Békásmegyer hegy felöli oldalán a Zemplén győző utcában eladó egy szépen felújított 9. emeleti 1+2 szobás, étkezős, 56 m2-es panorámás lakás.

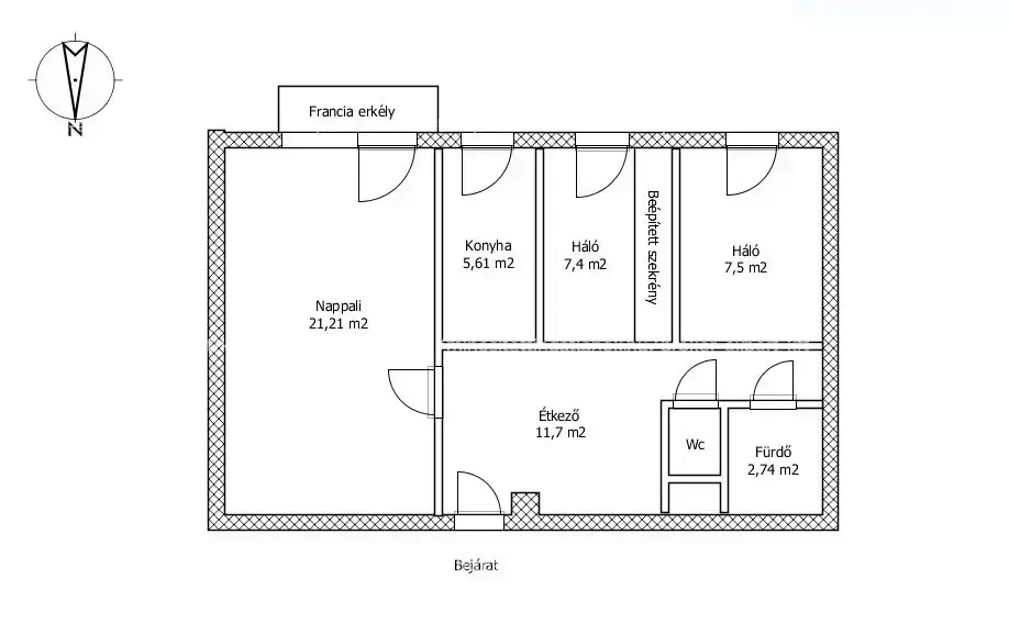
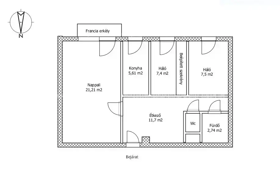
Helyiségek

Nappali: 21,21 m2
2 hálószoba: 7,4 és 7,5 m2
Étkező: 11,7 m2
Konyha: 5,61 m2
Fürdőszoba: 2,74 m2
Wc

Burkolatok: járólap, csempe

A ház a panelprogramban részt vett, a falak le lettek szigetelve.
Az ablakokon alumínium szerkezetű redőnyök vannak, szúnyoghálókkal. A fűtés hőleadók alumínium lapradiátorok. A fűtési költség 8.300 Ft/hónap

A nyári hűvös hőmérsékletet egy Mitsubishi 3,5 Kw-os klíma biztosítja a nappaliban.
A négy darab hideg és meleg vízórák le lettek cserélve, így azzal 2033-ig nincs gond.
Tájolás: D-i

Világos, déli fekvésű lakás, panorámás kilátással a Budai-hegységre. A nap reggeltől késő délelőttig beragyogja a helyiségeket, így egész évben kellemes, természetes fényárban élhet.
Télen is napfényes, nyáron pedig a forró délutáni napsütés nem terheli a lakást. Nyugodt, zöld környezet, akadálytalan kilátással.

Közös költség: 16 eft

Az ingatlan tehermentes, megtekintés rugalmas.

Miért jó Békásmegyeren lakni?

Kiváló levegőminőség

A hegy felőli oldalról fújó uralkodó szelek miatt a levegő friss és tiszta, ami lényegesen jobb életminőséget biztosít, különösen családok számára.

Zöld környezet és kirándulási lehetőségek

A hegyhez közeli fekvés lehetőséget ad gyakori szabadtéri programokra. A környéken a Róka-hegy, a Mocsaras-dűlő természetvédelmi területei könnyen elérhetők, a környék kiváló piknikezésre, sétára, túrázásra.

Kiváló infrastruktúra, szolgáltatások közelsége

A hegy felőli területek infrastruktúrája fejlett: a helyi piac, óvodák, orvosi rendelők, és a Duna-part mind pár perces távolságra találhatók.
Egy vevőm szerint:
„Szép hely, közel van minden... Orvosi rendelő, iskolák, óvodák, cukrászda, kisbolt, nagy bolt, piac, minden egy-két percre tőled.”

Közlekedés és elérhetőség

Békásmegyer jól ellátott tömegközlekedéssel: a HÉV (H5) kényelmes városi és elővárosi kapcsolódást biztosít, a buszok rendszeresen közlekednek, még éjszakai járatok is elérhetők, így akár késő esti órákban is könnyedén megközelíthető a belváros. Egy helyi lakos ezt írta:
„A HÉV jól jár, könnyű és gyors vele bejutni a városba… rengeteg busz, ami bevisz a központba.”

Családbarát környezet

A fiatal családok körében népszerű ez a környék, részben kiváló lakhatási lehetőségek miatt. A 70-es években kezdődött lakótelep-építés eleve vonzott családokat, és ma már modern, hőszigetelt épületek állnak rendelkezésre.

Biztonságos, nyugodt lakókörnyezet

A hegy felőli oldal – több beszámoló szerint – „szebb” és biztonságosabb, kevésbé zsúfolt, nyugodt, barátságos közösségi tér jellemzi

Saját Otthon Ingatlan és Hiteliroda

Bemutató videó

Virtuális séta

Térkép

Budapest, III. kerület, Zemplén Győző utca

Bűnügyi térkép

Tóth Róbert
Tóth Róbert Referens
Telefonszám +3670611
abcd