https://minositettingatlanok.hu/hu/ingatlan/6196725
Szimeth Norbert Referens
36703833318
QR kód

Budapest, XVI. kerület

135 millió Ft

1 184 211 Ft/m²
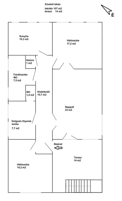
Alapterület
107m2
Szobák
4
Erkély
14m2

Eladó lakás (tégla építésű)

Alapterület
107 m²
Erkély terület
14 m²
Tartozik hozzá kert
Van
Szobák száma
4
Fűtés
Gázkazán
Energetikai tanúsítvány
D
Ingatlan állapota
Jó állapotú
Építés éve
1970
Épület szintjei
2 szintes
Emelet
1. emelet
Pince
Nincs
Lift
Nincs
Napelem
Nincs
Szigetelés
Nincs
Parkolóhely
Udvari beálló
Kilátás
Kertre néző
Légkondicionált
Igen
Tájolás
Dél-nyugati
Panelprogramos
Igen

Leírás

Van egy otthon, ahol a Nap minden szakaszában beköszön az ablakon, ahol a tér lélegzik, a stílus pedig időtálló. A XVI. kerület egyik csendes, mégis kiváló közlekedésű részén, egy kis forgalmú főút mentén kínáljuk ezt az egyedi karakterű, Bauhaus-szerű stílusban épült kétszintes ház emeleti lakását, azoknak, akik nem érik be a hétköznapival.
A ház egy 710 m²-es, 25 méter széles utcafrontú telken áll, szabadon, körbejárható módon, a kert jelenleg közös, de igény szerint használati megosztással elkülöníthető. A kert mérete lehetőséget ad arra, hogy ne csak pihenésre, hanem akár saját zöldségesre is használjuk, egy család számára bőven elegendő termőterület áll rendelkezésre.

A lakás, ahol a fény, a tér és a nyugalom találkozik
Az emeleti lakás 107 m²-es lakóterülettel és egy 14 m²-es, déli és nyugati irányból nyitott terasszal rendelkezik. A nappali + 3 hálószobás elrendezés ideális családoknak, alkotóknak, vagy azoknak, akik szeretik, ha van helyük lélegezni. A konyha különálló, étkezős kialakítású, így a nappali valóban a pihenés és a közös pillanatok tere maradhat.
A lakás 2020-ban teljes körű felújításon esett át: új elektromos hálózat (3×16A), víz- és csatornarendszer, gépészet, aljzatbeton, burkolatok, konyhabútor, gáztűzhely, villanysütő, szagelszívó, belső és külső nyílászárók, sőt, még a tető is megújult. Itt valóban minden új, minden készen áll.
A lakás különlegesen világos: a nagyméretű ablakok és a kedvező tájolás miatt a nap minden szakaszában természetes fény tölti meg a tereket. A hálószobák keleti, északi és nyugati irányba néznek, az árnyékolásról redőnyök gondoskodnak.

A tető, egy rejtett lehetőség az ég alatt
A ház lapos teteje 120 m²-nyi kihasználatlan lehetőséget rejt. Egy panorámás tetőterasz, egy zöld oázis, egy nyári nappali, bármi megvalósítható, ha Ön nem tériszonyos, és szereti a 360 fokos kilátást. Ez a tér nemcsak extra, hanem inspiráció is lehet.

Ez az otthon azoknak szól, akik értékelik az egyedi építészeti karaktert, a tágas tereket, a természetes fényt, és a kertvárosi nyugalmat, mindezt úgy, hogy a város sosem kerül túl messzire. Ha szeretné megtapasztalni, milyen érzés lehet itt élni, szívesen megmutatom, és garantálom, hogy már az első pillanatban otthon fogja érezni magát.
Környezet
A XVI. kerület egyik csendes, kertvárosi részén található ez a barátságos környék, ahol a nyugalom és a praktikum kéz a kézben jár. A környezet rendezett, családbarát, sok zöldfelülettel és kis forgalmú utcákkal, amelyek ideálisak sétához, biciklizéshez vagy akár gyerekeknek biztonságos játékhoz.
A közlekedés
kiváló: több buszjárat és a HÉV is könnyen elérhető, így a belváros vagy az Örs vezér tere gyorsan megközelíthető. Autóval az M0-s közelsége miatt a városból való kijutás is egyszerű és gyors.
A környék infrastruktúrája jól kiépített: a közelben óvodák, iskolák, gyógyszertárak, kisebb boltok és nagyobb bevásárlóközpontok is megtalálhatók. A környék ideális választás lehet családoknak, természetkedvelőknek és mindazoknak, akik egy nyugodt, mégis jól kapcsolódó lakókörnyezetben szeretnének élni.
Irányár: 135.000.000 Ft
Elérhetőség: +36703833318