https://minositettingatlanok.hu/hu/ingatlan/6157880
Molnár Tamás Referens
36306189880
QR kód

Szombathely

38 millió Ft

622 951 Ft/m²
Alapterület
59m2
Szobák
2
Erkély
4m2

Eladó lakás (csúszózsalus)

Alapterület
59 m²
Erkély terület
4 m²
Tartozik hozzá kert
Nincs
Szobák száma
2
Fűtés
Távfűtés
Energetikai tanúsítvány
F
Ingatlan állapota
Közepes állapotú
Építés éve
1980
Épület szintjei
4 szintes
Emelet
Földszint
Pince
Nincs
Lift
Nincs
Napelem
Nincs
Szigetelés
Van
Parkolóhely
Utca, közterület
Kilátás
Utcai
Légkondicionált
Nem
Tájolás
Dél-nyugati
Panelprogramos
Igen

Leírás

FIX 3%-os hitel Magyarország Kormányának támogatásával
Kevés olyan lakás van jelenleg a szombathelyi ingatlanpiacon, amely fölszinti, magasföldszinti, vagy első emeleti.
Most került kínálatunkba egy 4 emeletes, szigetelt qutinor társasház magasföldszintjén ez a belvároshoz közeli, világos, tágas terekkel rendelkező modernizálásra szoruló lakás. Felújítás után jelentős értéknövekedés várható.
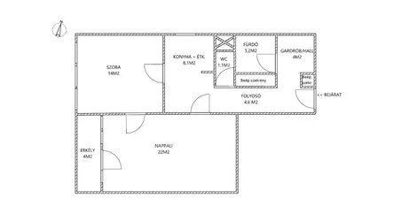
Helyiségek:
-nappali
-hálószoba
-konyha+ étkező
-gardrob / hall
-fürdőszoba
-mellékhelyiség
-közlekedő
-fedett erkély (4m2)

Műszaki adatok:
Fűtés: távhő, egyedi mérőóra
Közművek: összközműves (gáz főzéshez használt)
Nyílászárók: fa, jó állapotúak, redőnnyel szereltek (szobákban)
Épület: szigetelt
Rezsije kedvező.
Kiváló a közlekedés, a közelben minden megtalálható: bolt, vásárcsarnok, orvosi rendelő, iskola, óvoda, bölcsőde, parkok..stb
A lakásra korábbi lakója gondosan vigyázott, tiszta és rendezett, de felújítást igényel, hogy a mai kor igényeit kielégítse.
A lépcsőház csendes és tiszta. A lakáshoz tartozik egy közös pincerekesz, amelyet 3 család használ.

Az ingatlannak egy tulajdonosa van, per-, teher- és igénymentes, azonnal birtokba vehető.

Ajánlom időseknek, befektetőknek, vagy gyermekes családoknak.
2 gyermekes CSOK Plusz is lehívható az OSP mellé – hogy illetékmentes legyen a vásárlás.

További információ és időpontegyeztetés:
Molnár Tamásné Dóra
+3630-5334833