Nemesgörzsöny

27.9 millió Ft
310 000 Ft/m²
Alapterület
90m2
Telek
1327 m²
Szobák
3

Prémium hitelajánlat

Önrész
info
5 580 000 Ft
+
Hitelösszeg
info
22 320 000 Ft
=
Havi törlesztő
info
173 353 Ft/hó

Eladó ház (családi ház)

Alapterület
90 m²
Telekterület
1327 m²
Tartozik hozzá kert
Nincs
Szobák száma
3
Fűtés
Házközponti
Ingatlan állapota
Felújítandó
Építés éve
1970
Épület szintjei
Földszintes
Pince
Nincs
Tetőtér
Beépíthető
Lift
Nincs
Napelem
Nincs
Szigetelés
Nincs
Parkolóhely
Udvari beálló
Kilátás
Utcai
Légkondicionált
Nem
Tájolás
Dél-nyugati
Panelprogramos
Nem

Leírás

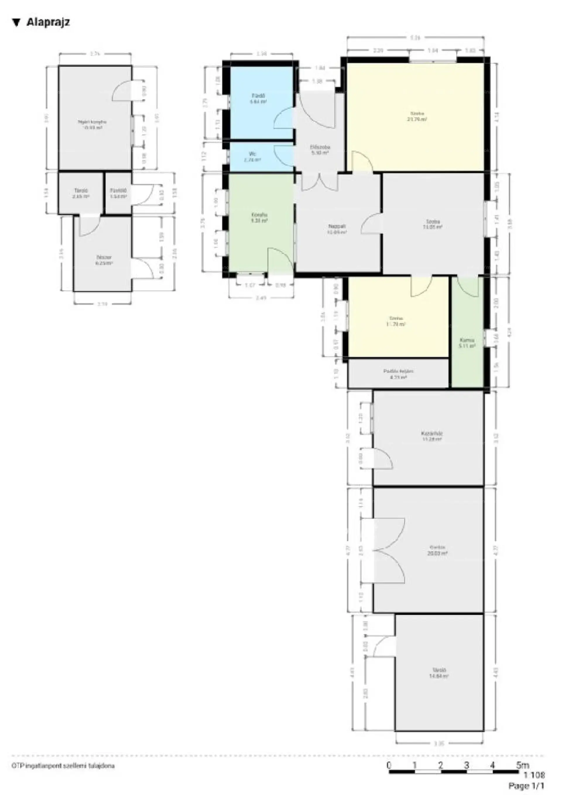
Nemesgörzsönyben ELADÓ egy FELÚJÍTANDÓ, 90 m2-es, 2+1 SZOBÁS, NAPPALIS családi ház PRAKTIKUS ELOSZTÁSSAL.

Ára: 27.900.000.- Ft
További tudnivalókért: Molnár Márk 06 30 265 5725
Referenciaszám:M320640

Az ingatlan olyan alapokat kínál, amelyeket bárki a saját igényei szerint alakíthat, átlátható, funkcionális térkapcsolatokkal. A helyiségek kiosztása: 2 nagy szoba, 1 félszoba, nappali, konyha, kamra, előtér, fürdőszoba és különálló mosdó. A kialakítás jól használható, LOGIKUS elrendezést biztosít a mindennapokhoz. A fűtésről központi fűtési rendszer gondoskodik vegyes tüzelésű kazán segítségével, RADIÁTOROS HŐLEADÁSSAL.

Emellett rendelkezésre áll KÉT KANDALLÓ is, a meleg vizet pedig elektromos bojlerrel oldják meg. Ezek a megoldások stabil és rugalmas rendszert tesznek lehetővé a felújítás után. A 1327 m2-es, körbekerített udvarral rendelkező, SAROKTELEK két utcáról is MEGKÖZELÍTHETŐ. Az udvaron több melléképületet alakítottak ki: NYÁRI KONYHA, FÜSTÖLŐ, TÁROLÓ, KAZÁNHÁZ és GARÁZS. A telken ásott kutat is található, amely TÖBBOLDALÚ felhasználást tehet lehetővé.

A felújítandó állapot testreszabható opciókat támogat, a nagy telekkel és számos melléképülettel pedig széleskörű használati módokat biztosít. Praktikus elrendezés, hatékony fűtési lehetőségek, saroktelek, kétféle megközelítés – kiváló kiindulási pont lehet egy TUDATOS BEFEKTETÉS vagy saját célú, lépésről lépésre történő megújítás számára Nemesgörzsönyben. Amennyiben felkeltette a figyelmét ez az ingatlan keressen bizalommal!

Ez az ingatlan eleget tesz a fix 3%-os Otthon Start Hitelprogram feltételeinek!

Térkép

Nemesgörzsöny

Bűnügyi térkép

Molnár Márk István Referens
Telefonszám +3630265
abcd