https://minositettingatlanok.hu/hu/ingatlan/5780268
Molnár Márk István Referens
36302655725
QR kód

Pápa

25 millió Ft

657 895 Ft/m²
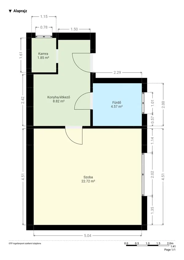
Alapterület
38m2
Szobák
1

Eladó lakás (tégla építésű)

Alapterület
38 m²
Tartozik hozzá kert
Van
Szobák száma
1
Fűtés
Gázkonvektor
Ingatlan állapota
Felújítandó
Építés éve
1950
Épület szintjei
2 szintes
Emelet
2. emelet
Pince
Nincs
Lift
Nincs
Napelem
Nincs
Szigetelés
Nincs
Parkolóhely
Udvari beálló
Kilátás
Udvari
Légkondicionált
Nem
Tájolás
Dél-nyugati
Panelprogramos
Nem

Leírás

ÁRCSÖKKENÉS!!

(Pápán, a Törökbálint utcában a II. emeleten, 38 m2-es garzonlakás eladóII. emeleti, 38 m2-es garzonlakás Pápán, a Törökbálint utcában ELADÓ

Pápán, a Törökbálint utcában ELADÓ egy 38 m2-es, II. EMELETI, egy szobás GARZON lakás, egy 16 lakásos társasházban. PRAKTIKUS választás lehet a lokáció és a méret együttessége mindazoknak, akik JÓ ELOSZTÁSÚ, személyre szabható ingatlant keresnek.

Az ára: 24.990.000. Ft. Érdeklődni: Molnár Márknál lehet érdeklődni 06 30 265 5725-ön.

Az ingatlan felújítási munkákat igényel, ugyanakkor JÓ ALAP: a fűtés gáz konvektor biztosítja a meleget a hideg téli napokon, a meleg vizet VILLANY BOJLER biztosítja. Az elosztás ÁTGONDOLT: külön KONYHA/EBÉDLŐ, KAMRA, egy tágas szoba, valamint FÜRDŐSZOBA, ahonnan mindkét irányba a szobába és a konyhába is elérhető. A II. emeleti pozíciója kényelmes, a zárt lépcsőházban KAMERA növeli a lakók biztonságát.

A társasházi közös költségei kedvező. A ház mögött található UDVAR, melynek EGY RÉSZE A VÉTELÁR RÉSZE. Az udvarra autóval lehet beállni, a háztömb előtt az utcán az ingyen parkolhat. A lakóépületbe két bejáraton is biztosított a bejárás: a FŐBEJÁRATON és az UDVAR FELŐL, ami kényelmes megoldás a napi használatban.

Az ingatlan RUGALMASAN SZEMÉLYRE SZABHATÓ, a mérete és elosztása, valamint a kedvező közös költség miatt széles körű felhasználásra nyílik lehetőség.

Amennyiben a fent leírtaknak megfelel a lakás és érdekli ez a garzon, melynek jó elosztása van és felújításra szorul, vagy éppen befektetési célból érdeklődik, kérem, keressen bizalommal további információért, vagy egy megtekintés egyeztetése érdekében.