https://minositettingatlanok.hu/hu/ingatlan/5566831
Dékány Alexandra Referens
36302770622
QR kód

Szekszárd

1,000 millió Ft

1 307 190 Ft/m²
Alapterület
765m2

Kiadó Üzlet (egyéb üzlethelyiség)

Alapterület
765 m²
Tartozik hozzá kert
Nincs
Fűtés
Hőszivattyú
Ingatlan állapota
Felújított
Építés éve
1990
Épület szintjei
Földszintes
Emelet
Földszint
Pince
Nincs
Lift
Nincs
Napelem
Nincs
Szigetelés
Nincs
Légkondicionált
Igen
Panelprogramos
Nem

Bérlési adatok

Költözhető
Dátum megadása
Költözhető dátum
.

Leírás

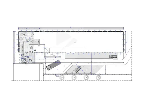
Felújított raktár kiadó Szekszárdon – bővítési lehetőséggel

- Szekszárdi ipari parkban, de a városközpont mellett;
- Az M6-os autópálya közelében;
- Összesen 765,27 m2-es ingatlan, melyből 614,15 m2 raktár;
- Helységlista: raktár (584,84 m2), raktár (29,31 m2), iroda (11,75 m2), iroda (32,13 m2), közlekedő (3,53 m2), konyha (17,70 m2), ügyféltér (50,06 m2), előtér (10,35 m2), szélfogó (6,77 m2), vill. kapcsoló (2,38 m2), gépészet (2,80 m2), öltözők (6,90 m2), mosdó + WC (6,75 m2);
- 2022-ben teljeskörűen fel lett újítva;
- Az épület vasbeton vázas, betonpanel oldalfalakkal, tetején új bitumenes lemez van, az iroda részén a mennyezet szigetelésre került;
- A fűtést klímák biztosítják hőszivattyú segítségével;
- Elektromos ellátása közműhálózatról 3x36A, víz, szennyvíz hálózatra rácsatlakozva;
- Riasztó és kamerarendszer elő van készítve, így csak a készülékek szükségesek a működtetéshez;
- A melegvíz ellátást villanybojler szolgáltatja;
- A padlózat anyaga a raktárban beton, az iroda és egyéb helységekben laminált padló és kerámialap;
- A nyílászárók új műanyagok;
-Szilárd burkolatú útról tehergépkocsival is közvetlenül, könnyen megközelíthető;
- Parkolás a telken belül kialakított parkolóban;
- Az udvar saját kerítéssel körülvett, így csak a jogosultak tudnak bejutni;
- Szomszédos telkek üresek, így közvetlen környezete csendes;
- Költözés 1 havi kaució megfizetésével azonnal lehetséges;
- Bérleti díj: 1.000.000, - Ft + ÁFA/hó.

Dékány Ügyvédi Iroda Ingatlaniroda

[biztonságos jogi háttér