Székesfehérvár

85.1 millió Ft
1 181 944 Ft/m²
Alapterület
72m2
Szobák
3

Prémium hitelajánlat

Önrész
info
17 020 000 Ft
+
Hitelösszeg
info
68 080 000 Ft
=
Havi törlesztő
info
531 388 Ft/hó

Eladó lakás (tégla építésű)

Alapterület
72 m²
Tartozik hozzá kert
Nincs
Szobák száma
3
Fűtés
Hőszivattyú
Ingatlan állapota
Új építésű
Építés éve
2026
Épület szintjei
3 szintes
Emelet
2. emelet
Pince
Nincs
Lift
Van
Napelem
Nincs
Szigetelés
Van
Parkolóhely
Utca, közterület
Kilátás
Utcai
Légkondicionált
Nem
Tájolás
Keleti
Panelprogramos
Nem

Leírás

Vásároljon a belvárosban lakást és fejezze be igényeinek megfelelően!

Székesfehérváron a Kégl György utcában, belvárostól néhány perc sétára épülő 8 lakásos társasházában kínálok még 3 db lakás eladásra. A lakások a jelenlegi, megtekintett állapotában is megvásárolhatóak vagy igény esetén a kivitelező befejezi.

A társasház 3 emeletes, mégis lifttel rendelkezik. Földszintjén kerülnek kialakításra a garázsok és a tároló helyiségek valamint a gépészeti helyiség. Fűtése központi hőszivattyú, lakásonkénti egyedi mérőórával, padló fűtés mennyezeti hűtés. Gáz az épületbe nem kerül bekötésre. Az ingatlan főfal szerkezete valamint belső válaszfalai már készen vannak, így a burkolatok, szaniterek, beltéri ajtók, festés, valamint a beépített bútorok hiányoznak. Bejárás előre egyeztetett időpontba lehetséges.
Részletesebb műszaki leírást e-mailben küldök.
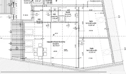
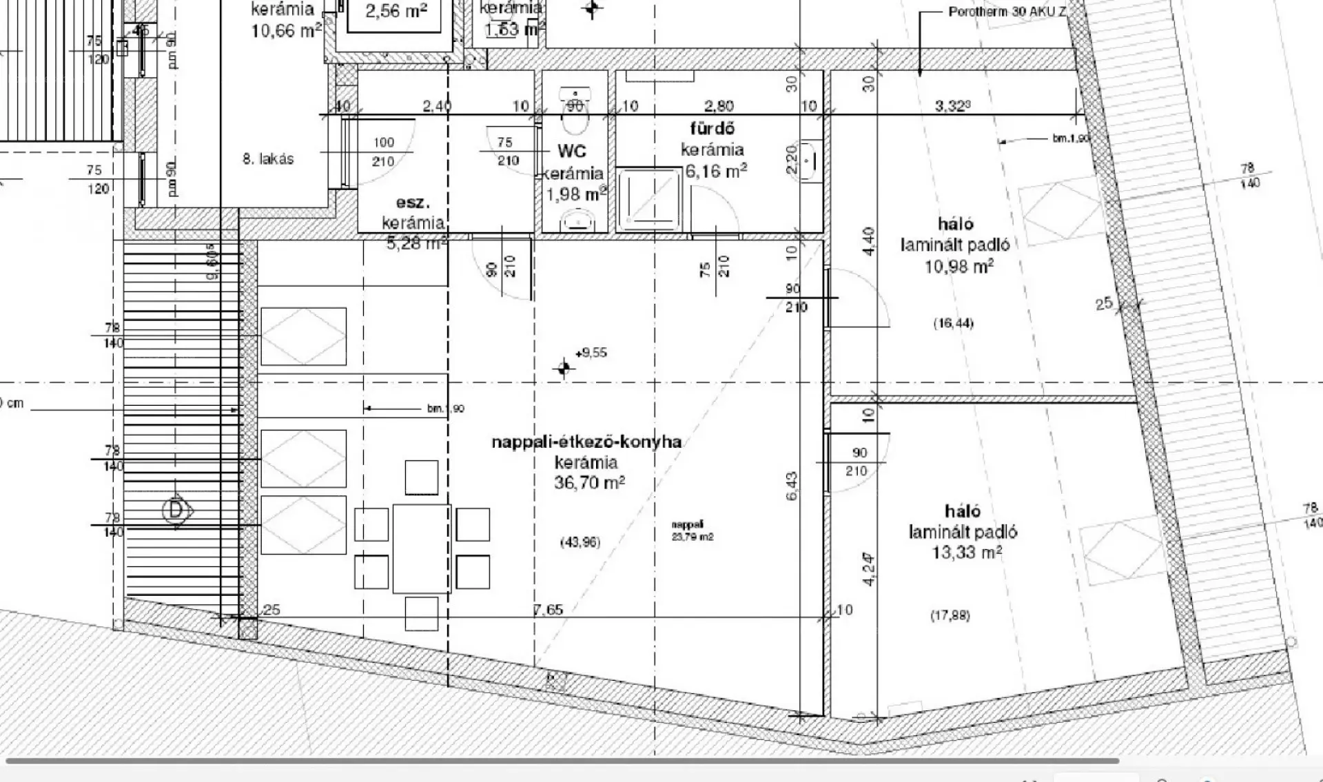
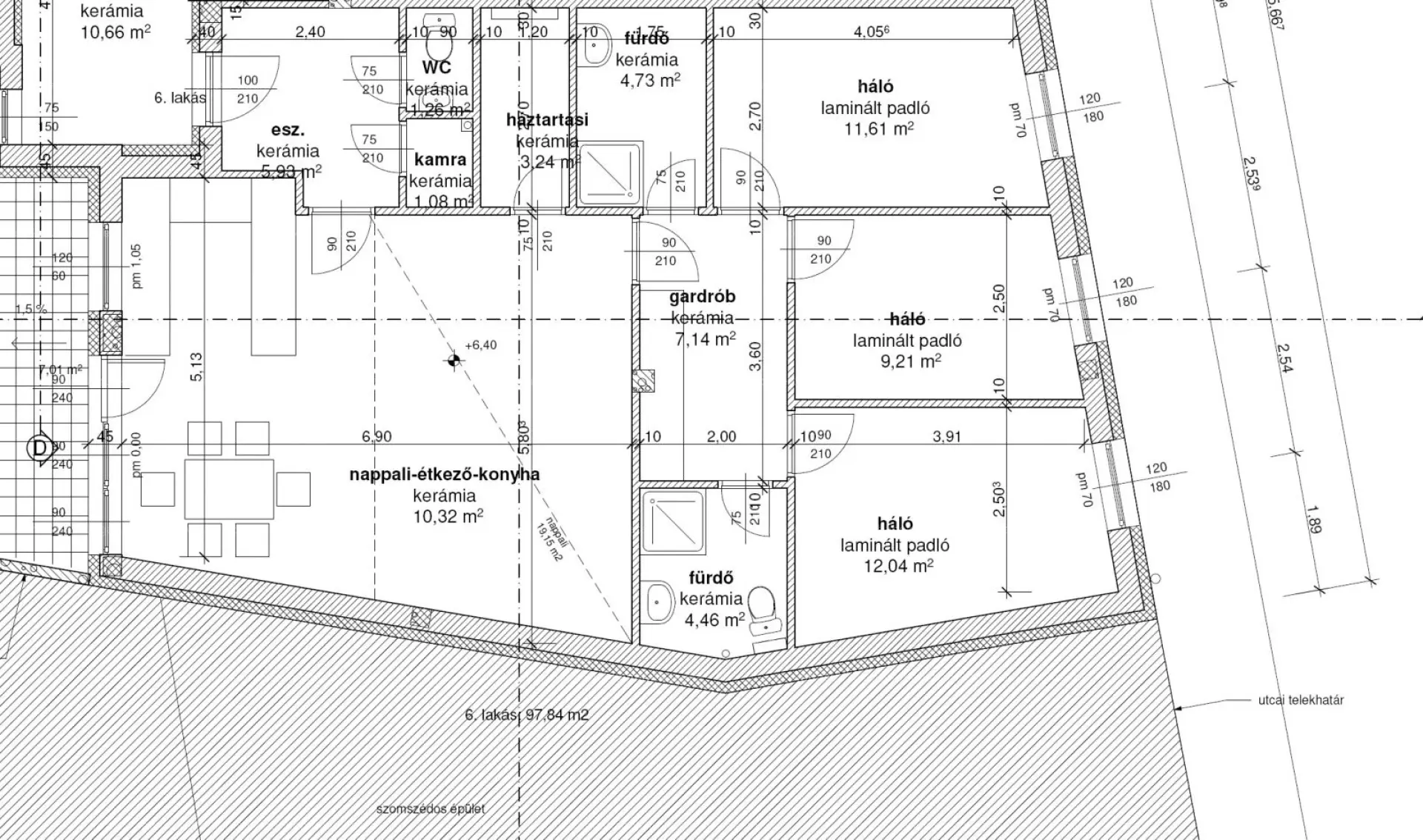
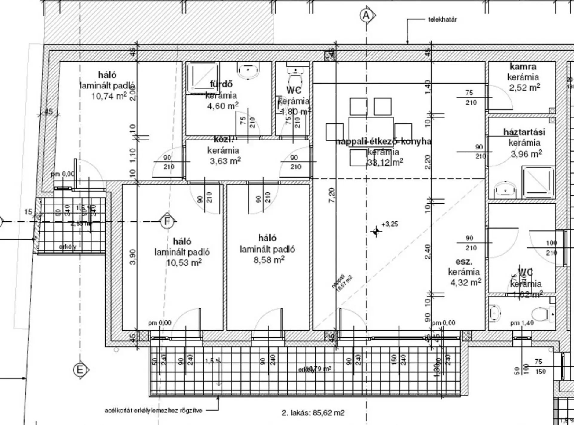
Szabad lakások árai: jelenleg megtekintett állapotokban:

5. lakás 2. emeleten található 85,62 nm-es N+3 félszoba +kamra+házt.helyiség 99,7 M Ft
6. lakás 2. emeleten található 97,84 nm-es + 7,08 nm erkély, 2 +2 félszobás+ gardrob dél keleti fekvésű 110,95 M
8.lakás 3 .emeleten található Tetőtér, 72,13 nm-es, 2 + 1 félszobás lakás 85,1 M Ft

Tárolók, saját mérőórával nm-től függetlenül 1 mill. Ft / db, Garázs: 12,7 mill .Ft/db
Tervezett átadás: 2026. év vége
Fizetési ütemezés.: 10 % foglaló + 10 % előleg többi egyedi megbeszélés kérdése.
Ne hagyja ki a lehetőséget és költözzön be idén karácsonyra!

Ha kész állapotban kerül megvásárlásra a lakás OSP, CSOK+ támogatás felvehető rá.

Érdeklődni: Köműves Beáta vagy a komuves.beata@beropex.hu 06703310696

Térkép

Székesfehérvár

Bűnügyi térkép

Köműves Beáta Referens
Telefonszám +3670331
abcd